20% off ALL House Plans Sitewide
20% off ALL House Plans Sitewide

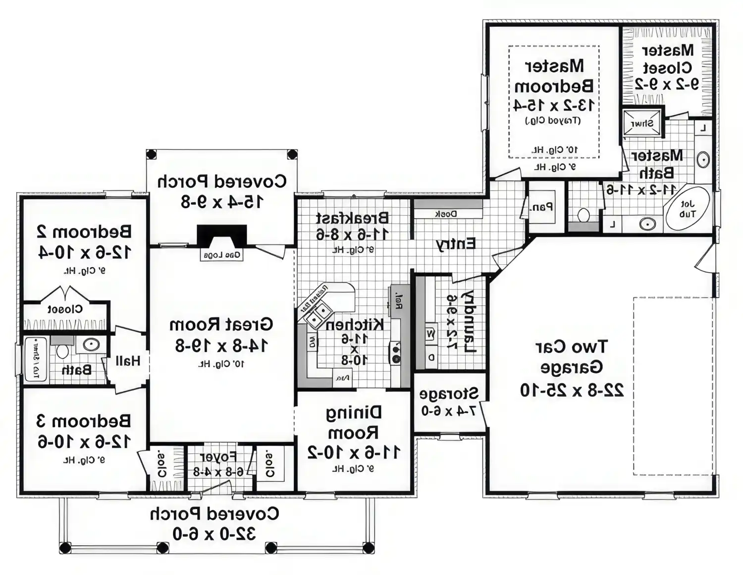
House Plan: DFD-11653

See All 2 Photos > (photographs may reflect modified homes)
© copyright by designer
SQ FT
1,804
BEDS
3
BATHS
2
STORIES
1
CARS
2
HOUSE PLANS SALE 
START AT  $1,040.00
For questions and help, live chat, email or call us at 877-895-5299
Floor Plans
Click to Zoom In on Floor Plan
 
About House Plan 11653:
House Plan 11653 delivers classic curb appeal and a smart ranch layout ideal for both families and empty-nesters. Inside, the great room features a vaulted ceiling and opens directly to the kitchen and breakfast area for seamless flow. The primary bedroom includes a spacious walk-in closet and a well-appointed bath with a separate tub and shower. Two additional bedrooms are located on the opposite side of the home, creating a comfortable split-bedroom design. A formal dining room, pantry, laundry room, and hallway storage offer everyday convenience. Outdoor living shines with a wide covered front porch and a covered rear porch just off the great room. A side-entry 2-car garage enhances curb appeal while providing easy access to the interior.
House Plan Pricing
STEP 1 Select Your Package

Study Set - Printed


One printed set of house plans stamped NOT FOR CONSTRUCTION". This set is intended for review purposes and are mailed to you. To build from the plans, you need to upgrade to a licensed set.
Study Set - Printed $1,150
One Printed Set - Not for Construction

PDF Single Build


Digital plans emailed to you in PDF format that allows for printing copies and sharing electronically with contractors, subs, decorators, and more. This package includes a license to build the home one time.

PDF Single Build $1,300
Most recommended package

5 Printed Sets


Five Printed Sets of Residential Construction Drawings are typically 24” x 36” documents and come with a license to construct a single residence shipped to a physical address. Keep in mind PDF Plan Packages are our most popular choice which allows you to print as many copies as you need and to electronically send files to your builder, subcontractors, etc.

5 Printed Sets $1,400
Five printed sets of house plans

5 Printed Sets + PDF


Digital plan emailed to you in PDF format that allows for printing copies on a home printer or local print shop and sharing with contractors, subs, decorators, and more. PLUS five printed sets shipped and delivered 3-5 business days.

5 Printed Sets + PDF $1,600
Digital plans plus 5 printed sets

CAD + PDF Single Build


CAD files are a complete set of construction drawings delivered electronically. They can be used for any type of modification—including major design changes and engineering—and include a release granting permission to modify the plan. Most CAD plan orders are emailed the same or next business day.
 
This package also comes with a PDF set of plans and a copyright release for making modifications and printing unlimited copies.
 
CAD files are provided in .dwg format. For details on the specific CAD program used, please refer to the PLAN DETAILS section located above the floor plan on each plan’s page.

CAD + PDF Single Build $1,950
2D electronic editable computer files
STEP 2 Need To Reverse This Plan?
STEP 3 CHOOSE YOUR FOUNDATION
STEP 4 OPTIONAL ADD-ONS
Subtotal:
$1300
FREE SHIPPING
 
Plan Details
See All Details
Finished Square Footage
1,804 Sq. Ft.
Main Level:
1,804 Sq. Ft.
Total:
Room Details
3
Bedrooms:
2
Full Baths:
General House Information
1
Number of Stories:
70' 8"
Width:
53' 10"
Depth:
Single
Dwelling Number:
Unfinished Square Footage
641 Sq. Ft.
Garage:
192 Sq. Ft.
Front Porch:
133 Sq. Ft.
Rear Porch:
GARAGE
Side
Garage Location:
2
Garage Size:
Exterior Style
Farmhouse
Ranch
Traditional
Collections
Affordable
Budget
Builders
Empty Nester
First Home
Split Bedroom
Foundation
Crawlspace
Slab
Framing Information
Stick
Roof Framing:
2x4
Exterior Wall Framing:
Roof Pitch
10 in 12 & 14 in 12
Primary:
12:12
Secondary:
Roof Load
30
Live:
10
Dead:
40
Wind:
Insulation (R)
15
Exterior Wall:
38
Interior Wall:
19
Ceiling:
19
Floor:
House And Ceiling Heights
9
First Floor Ceiling:
25' 2"
Maximum House Height:
Key Features
Attached
Covered Front Porch
Covered Rear Porch
Dining Room
Double Vanity Sink
Fireplace
Foyer
Great Room
Home Office
Laundry 1st Fl
Library/Media Rm
Primary Bdrm Main Floor
Nook / Breakfast Area
Oversized
Pantry
Peninsula / Eating Bar
Separate Tub and Shower
Split Bedrooms
Storage Space
Suited for view lot
U-Shaped
Vaulted Ceilings
Walk-in Closet
Walk-in Pantry

Our Guarantees

  • Only the highest quality plans
  • Int’l Residential Code Compliant
  • Full structural details on all plans
  • Best plan price guarantee
  • Free modification Estimates
  • Builder-ready construction drawings
  • Expert advice from leading designers
  •  PDFs NOW!™ plans in minutes
  • 100% satisfaction guarantee
  • Free Home Building Organizer