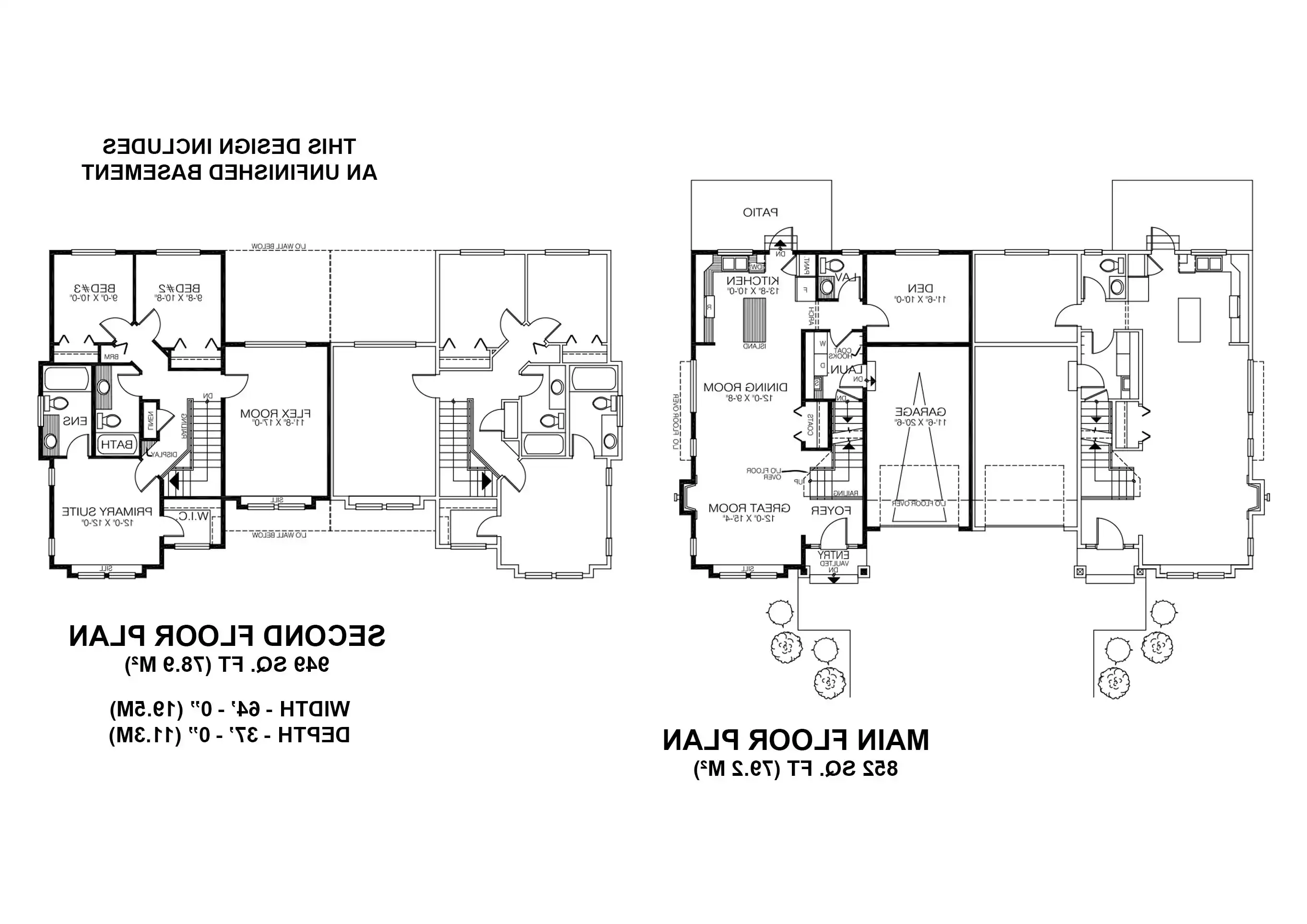
House Plan 11661 delivers modern duplex appeal with sharp rooflines and a streamlined front facing garage that sets a contemporary tone. Inside each 1,782 square foot unit, an open concept main level connects the great room, dining area, and L shaped kitchen, with easy access to a rear patio for everyday living and entertaining. A den located behind the garage provides a versatile space for working from home, paired with a convenient half bath nearby. The second floor hosts a comfortable primary suite with a full bathroom, along with two secondary bedrooms that share a full bath. A generously sized flex room rounds out the upper level, offering adaptable space to suit changing needs over time.
House Plan 11661 delivers modern duplex appeal with sharp rooflines and a streamlined front facing garage that sets a contemporary tone. Inside each 1,782 square foot unit, an open concept main level connects the great room, dining area, and L shaped kitchen, with easy access to a rear patio for everyday living and entertaining. A den located behind the garage provides a versatile space for working from home, paired with a convenient half bath nearby. The second floor hosts a comfortable primary suite with a full bathroom, along with two secondary bedrooms that share a full bath. A generously sized flex room rounds out the upper level, offering adaptable space to suit changing needs over time.