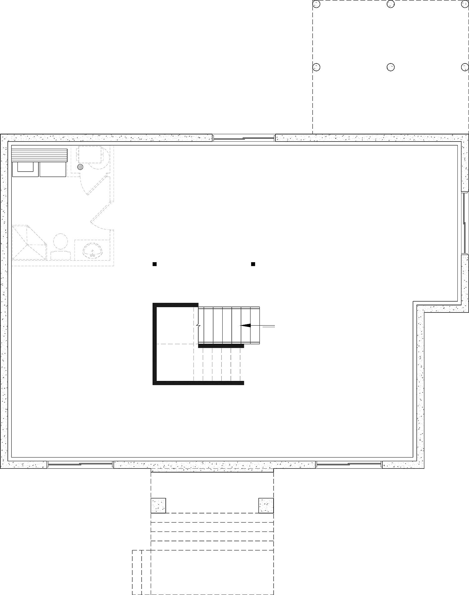
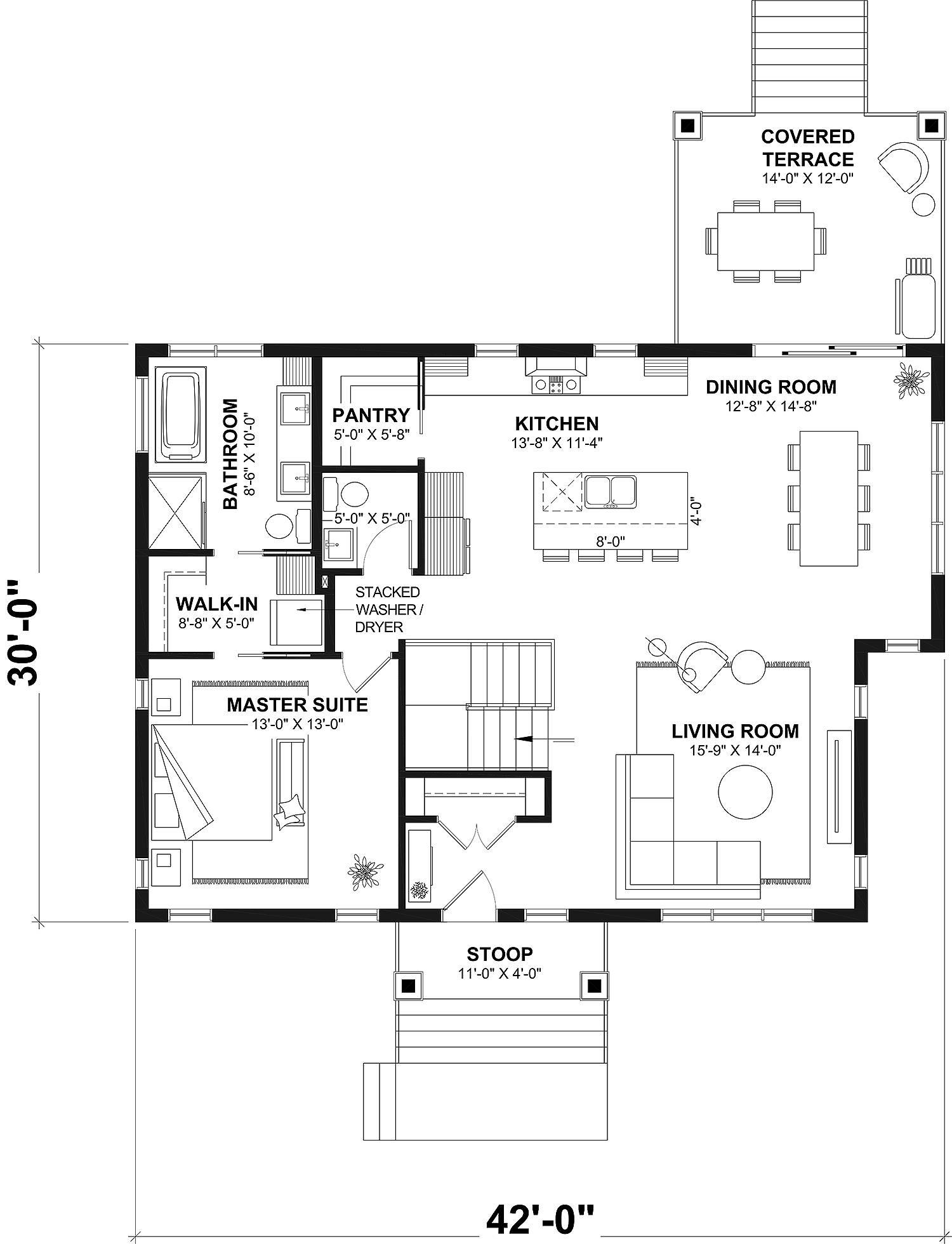
House Plan 11736 is a compact bungalow design that balances efficient living with long-term potential. The main level features an open-concept kitchen, dining, and living area that feels spacious and easy to navigate. A kitchen island and walk-in pantry support daily cooking and storage needs, while the main-floor primary bedroom offers comfort and privacy. The layout includes a full bathroom plus a half bath for guests. Covered outdoor spaces add everyday livability and enhance the home’s connection to the outdoors. An unfinished basement provides ample opportunity to add living space, storage, or hobby areas in the future.
House Plan 11736 is a compact bungalow design that balances efficient living with long-term potential. The main level features an open-concept kitchen, dining, and living area that feels spacious and easy to navigate. A kitchen island and walk-in pantry support daily cooking and storage needs, while the main-floor primary bedroom offers comfort and privacy. The layout includes a full bathroom plus a half bath for guests. Covered outdoor spaces add everyday livability and enhance the home’s connection to the outdoors. An unfinished basement provides ample opportunity to add living space, storage, or hobby areas in the future.