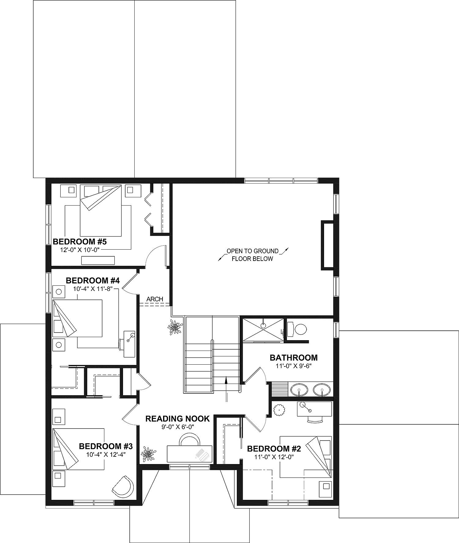
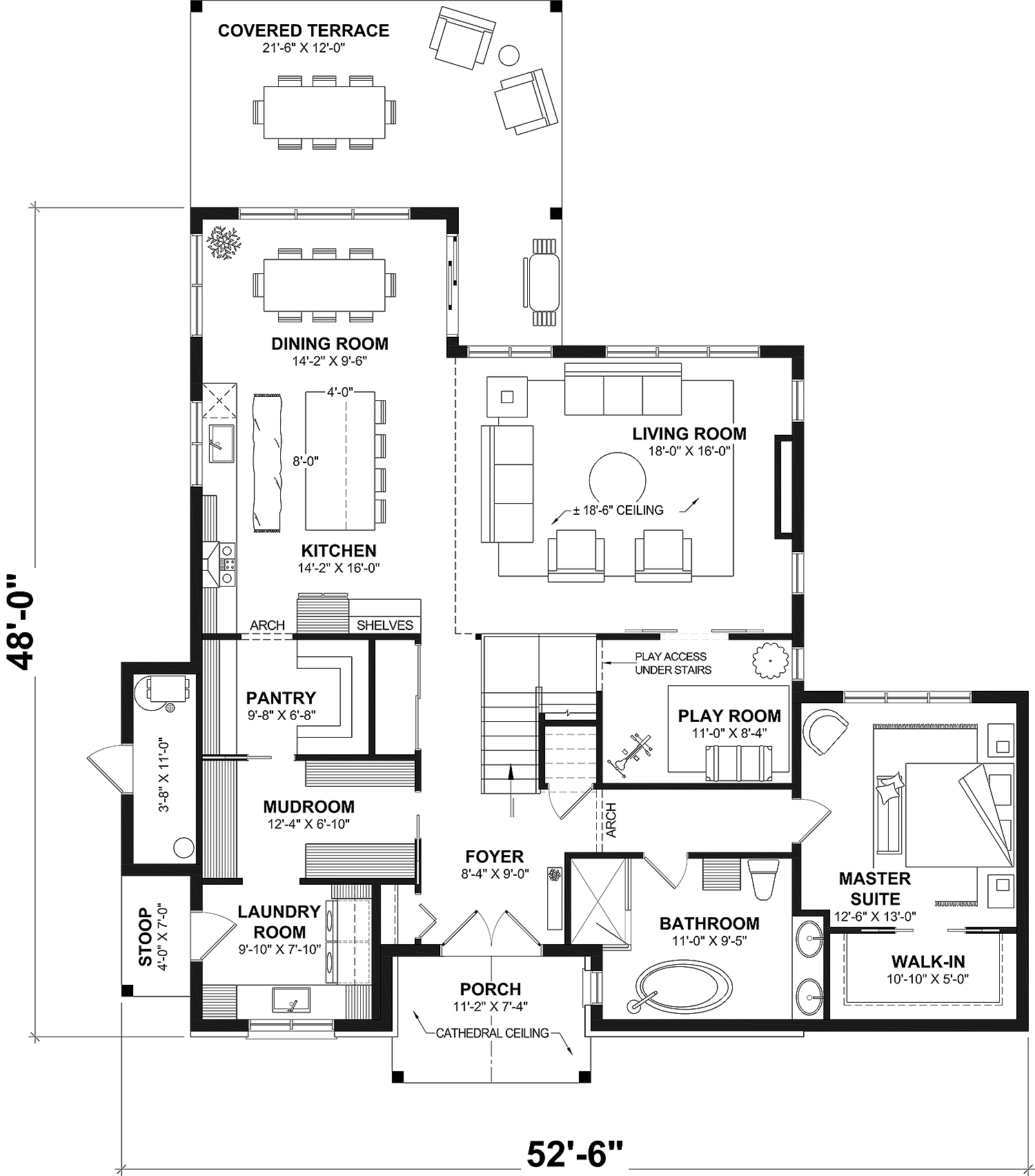
Offering 2,820 square feet of heated living space, this home includes 5 bedrooms and 2 baths with a layout that balances openness and privacy. The main living area features a two-story volume family room anchored by a fireplace, creating a warm gathering space filled with natural light. An L-shaped kitchen with an island, walk-in pantry, and butler’s pantry supports both daily routines and entertaining with ease. The main-floor primary suite serves as a private retreat, complete with his and hers closets, double vanities, and a separate tub and shower. Additional bedrooms are positioned to provide flexibility for family, guests, or workspace needs. Covered porches, a functional mud room, and an outdoor deck complete a home that feels spacious, welcoming, and thoughtfully planned.