House Plan: DFD-11759

See All 37 Photos > (photographs may reflect modified homes)
© copyright by designer
SQ FT
1,880
BEDS
4
BATHS
2
STORIES
1
CARS
2
PLANS FROM $1,395
For questions and help, live chat, email or call us at 877-895-5299
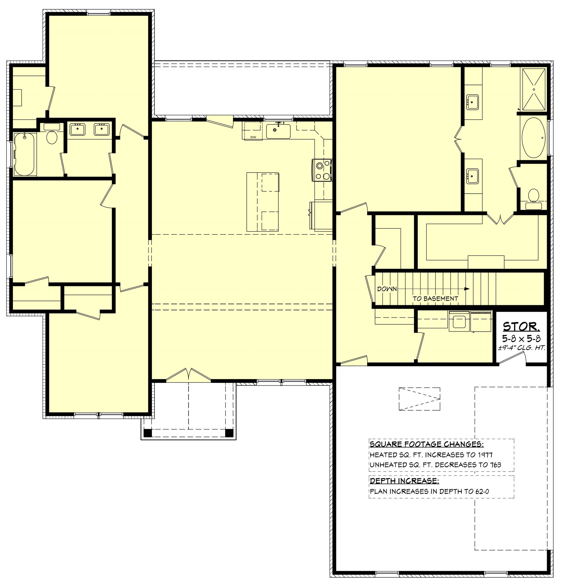
Floor Plans
Click to Zoom In on Floor Plan
 
About House Plan 11759:
This charming 1,880 square feet home blends comfort with a layout that supports both gathering and privacy. The spacious vaulted great room forms the heart of the home, connecting naturally to the dining area and a well-appointed kitchen featuring a pantry, peninsula, and generous island. The primary bedroom sits on the main floor, offering a peaceful retreat enhanced by a double vanity, walk-in closet, and soothing bath design. Three secondary bedrooms are positioned separately to maintain a quiet, split-bedroom arrangement. A dedicated mud room keeps daily routines tidy, while the rear porch invites relaxed outdoor living. Thoughtful storage solutions add to the home's livability, making organization simple. This welcoming design brings together classic comfort and modern flow, creating a home that feels inviting from the moment you step inside.
House Plan Pricing
STEP 1 Select Your Package

PDF Single Build


Digital plans emailed to you in PDF format that allows for printing copies and sharing electronically with contractors, subs, decorators, and more. This package includes a license to build the home one time.

PDF Single Build $1,395
Most recommended package

5 Printed Sets + PDF


Includes 5 physical printed blueprint sets, shipped free via UPS within the U.S. Printed sets ship within 1 business day and are delivered within 3 – 5 business days. A complimentary PDF plan set is also emailed within 1 business day for easy sharing and local printing. These plans may be used to construct one home.

5 Printed Sets + PDF $1,645
5 Printed Sets + PDF

PDF Unlimited Build


Digital plans with an unlimited build license emailed in PDF format, that allows for printing copies on a home printer or local print shop and sharing with contractors, subs, decorators and more 

PDF Unlimited Build $2,095
Digital plans including unlimited build license

CAD + PDF Unlimited Build


This plan package is created in AutoCAD and delivered in .DWG format. CAD files are intended for use by design professionals, structural engineers, and builders to update plans for local building codes or to make revisions based on specific needs, lot requirements, and budget considerations. A complimentary PDF copy is included with this package for reference. CAD packages are delivered within 1 to 2 business days.
 
This package also comes with a multi-use building license, granting permission to construct the home an unlimited number of times, along with a copyright release for making revisions and printing unlimited copies.
 
For details on the specific CAD program used, please refer to the PLAN DETAILS section located above the floor plan on each plan page.

CAD + PDF Unlimited Build $2,495
2D electronic editable computer files
STEP 2 Need To Reverse This Plan?
STEP 3 CHOOSE YOUR FOUNDATION
STEP 4 OPTIONAL ADD-ONS
Subtotal:
$1395
FREE SHIPPING
 
Plan Details
See All Details
Finished Square Footage
1,880 Sq. Ft.
Main Level:
1,880 Sq. Ft.
Total:
Room Details
4
Bedrooms:
2
Full Baths:
General House Information
1
Number of Stories:
59' 8"
Width:
58' 0"
Depth:
Single
Dwelling Number:
Unfinished Square Footage
550 Sq. Ft.
Garage:
38 Sq. Ft.
Storage:
176 Sq. Ft.
Porch:
56 Sq. Ft.
Front Porch:
120 Sq. Ft.
Rear Porch:
GARAGE
Front
Garage Location:
2
Garage Size:
Exterior Style
Modern Farmhouse
Ranch
Traditional
Collections
First Home
Open Floor Plan
Split Bedroom
Foundation
Basement
Crawl Space
Slab
Walkout Basement
Framing Information
Stick
Roof Framing:
2x4
Exterior Wall Framing:
Roof Pitch
10/12
Primary:
4/12
Secondary:
Insulation (R)
House And Ceiling Heights
9
First Floor Ceiling:
24' 8"
Maximum House Height:
Key Features
Attached
Butler's Pantry
Covered Front Porch
Dining Room
Double Vanity Sink
Great Room
Kitchen Island
Laundry 1st Fl
L-Shaped
Primary Bdrm Main Floor
Mud Room
Open Floor Plan
Peninsula / Eating Bar
Rear Porch
Separate Tub and Shower
Side-entry
Split Bedrooms
Storage Space
Suited for corner lot
Vaulted Great Room/Living
Walk-in Closet

Our Guarantees

  • Only the highest quality plans
  • Int’l Residential Code Compliant
  • Full structural details on all plans
  • Best plan price guarantee
  • Free modification Estimates
  • Builder-ready construction drawings
  • Expert advice from leading designers
  •  PDFs NOW!™ plans in minutes
  • 100% satisfaction guarantee
  • Free Home Building Organizer