20% off ALL House Plans Sitewide
20% off ALL House Plans Sitewide

House Plan: DFD-11775

See All 10 Photos > (photographs may reflect modified homes)
© copyright by designer
SQ FT
1,515
BEDS
3
BATHS
2
STORIES
2
CARS
2
HOUSE PLANS SALE 
START AT  $916.00
For questions and help, live chat, email or call us at 877-895-5299
Floor Plans
Click to Zoom In on Floor Plan
 
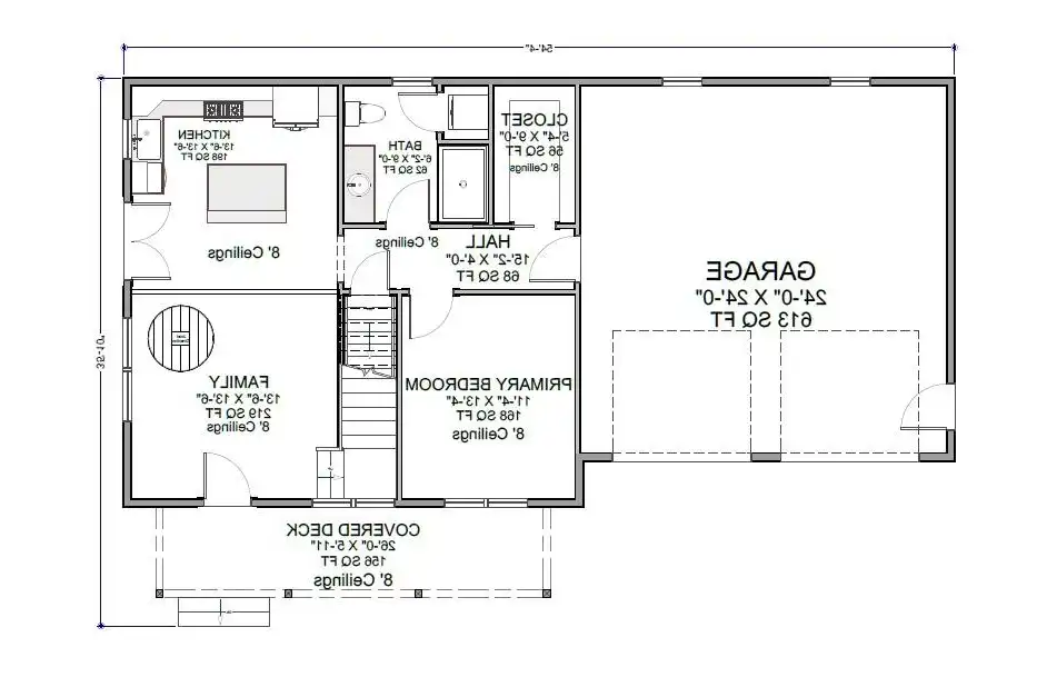
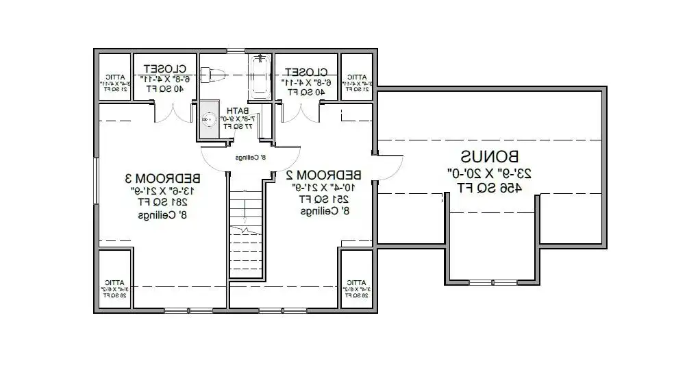
About House Plan 11775:
This home is designed with an easy, comfortable rhythm, beginning with a covered front porch that sets a welcoming tone. Inside, the main-floor layout flows naturally, placing the primary bedroom in a quiet corner for added privacy. The kitchen forms the heart of the home, with its L-shaped layout, center island, and peninsula seating encouraging everyday connection. The Family Room sits close by, offering a relaxed spot for unwinding at the end of the day. Upstairs, the bonus room adds a flexible escape that can grow and change along with the household. The secondary bedrooms share this level, keeping the main floor open and uncluttered. With storage placed throughout and a practical garage arrangement, the overall layout feels intuitive and easy to live in.
House Plan Pricing
STEP 1 Select Your Package

PDF Single Build


Digital plans emailed to you in PDF format that allows for printing copies and sharing electronically with contractors, subs, decorators, and more. This package includes a license to build the home one time.

PDF Single Build $1,145
Most recommended package

PDF Unlimited Build


Digital plans with an unlimited build license emailed in PDF format, that allows for printing copies on a home printer or local print shop and sharing with contractors, subs, decorators and more 

PDF Unlimited Build $1,645
Digital plans including unlimited build license

CAD + PDF Unlimited Build


CAD files are a complete set of construction drawings delivered electronically. They can be used for any type of modification—including major design changes and engineering—and include a release granting permission to modify the plan. Most CAD plan orders are emailed the same or next business day.
 
This package also comes with a PDF set of plans and a multi-use building license, granting permission to construct the home an unlimited number of times, along with a copyright release for making modifications and printing unlimited copies.
 
CAD files are provided in .dwg format. For details on the specific CAD program used, please refer to the PLAN DETAILS section located above the floor plan on each plan’s page.

CAD + PDF Unlimited Build $2,145
2D electronic editable computer files
STEP 2 Need To Reverse This Plan?
STEP 3 CHOOSE YOUR FOUNDATION
STEP 4 OPTIONAL ADD-ONS
Subtotal:
$1145
FREE SHIPPING
 
Plan Details
See All Details
Finished Square Footage
805 Sq. Ft.
Main Level:
710 Sq. Ft.
Upper Level:
840 Sq. Ft.
Lower Level:
1,515 Sq. Ft.
Total:
Room Details
3
Bedrooms:
2
Full Baths:
General House Information
2
Number of Stories:
54' 4"
Width:
28' 0"
Depth:
Single
Dwelling Number:
2nd Floor
Bonus Access:
Unfinished Square Footage
613 Sq. Ft.
Garage:
156 Sq. Ft.
Porch:
156 Sq. Ft.
Front Porch:
147 Sq. Ft.
Deck:
456 Sq. Ft.
Bonus Room:
GARAGE
Side
Garage Location:
2
Garage Size:
Exterior Style
Country
Farmhouse
Modern Farmhouse
Traditional
Collections
Affordable
First Home
Split Bedroom
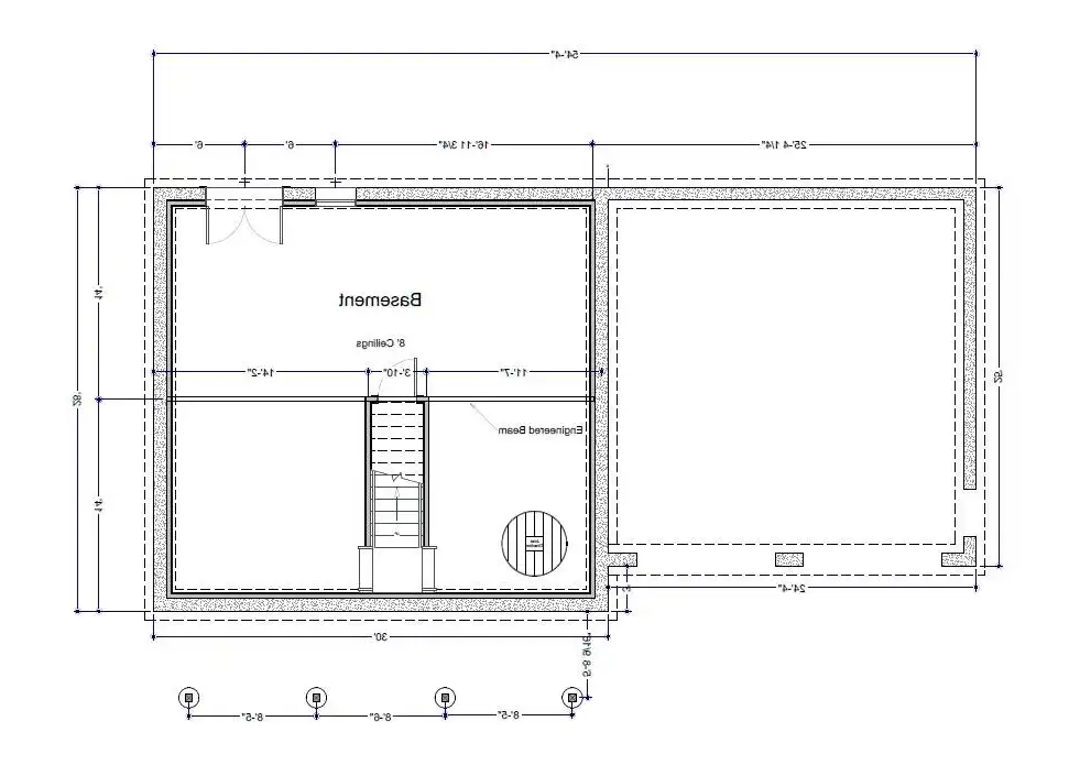
Foundation
Basement
Crawl Space
Daylight Basement
Monolithic Slab
Slab
Stem Wall Slab
Walkout Basement
Framing Information
Stick
Roof Framing:
2x4
Exterior Wall Framing:
Roof Pitch
12/12
Primary:
7/12
Secondary:
Insulation (R)
House And Ceiling Heights
8
First Floor Ceiling:
8
Second Floor Ceiling:
24' 1"
Maximum House Height:
Key Features
Attached
Bonus Room
Covered Front Porch
Family Room
Front-entry
Kitchen Island
Laundry 1st Fl
L-Shaped
Primary Bdrm Main Floor
Peninsula / Eating Bar
Split Bedrooms
Suited for corner lot
Walk-in Closet

Our Guarantees

  • Only the highest quality plans
  • Int’l Residential Code Compliant
  • Full structural details on all plans
  • Best plan price guarantee
  • Free modification Estimates
  • Builder-ready construction drawings
  • Expert advice from leading designers
  •  PDFs NOW!™ plans in minutes
  • 100% satisfaction guarantee
  • Free Home Building Organizer