20% off ALL House Plans Sitewide
20% off ALL House Plans Sitewide

House Plan: DFD-11786

See All 16 Photos > (photographs may reflect modified homes)
© copyright by designer
SQ FT
1,522
BEDS
3
BATHS
2.5
STORIES
2
CARS
0
HOUSE PLANS SALE 
START AT  $916.00
For questions and help, live chat, email or call us at 877-895-5299
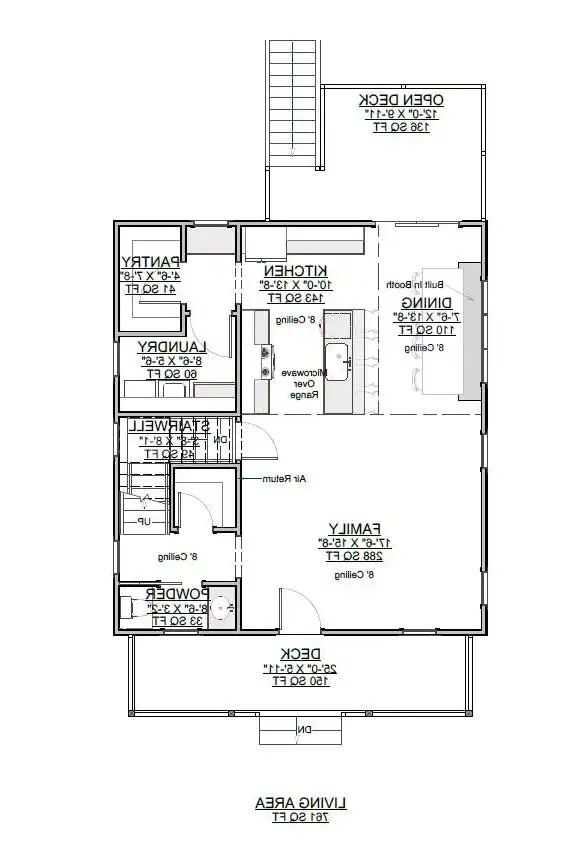
Floor Plans
Click to Zoom In on Floor Plan
 
About House Plan 11786:
This thoughtfully arranged home greets you with a comfortable main floor that blends gathering spaces and practical features. The family room sits at the heart of the layout, connecting smoothly to the kitchen where the island, peninsula bar, and butler’s pantry support both everyday meals and special occasions. The dining room is positioned close by, offering a welcoming place for family dinners. A first-floor laundry room helps keep things organized and within easy reach. Upstairs, the primary bedroom offers a private escape with a walk-in closet and well-appointed bath, while two secondary bedrooms share the remaining space. The balanced layout provides room for both quiet moments and family activities. A rear deck rounds out the home with an easy outdoor spot for relaxing and enjoying fresh air.
House Plan Pricing
STEP 1 Select Your Package

PDF Single Build


Digital plans emailed to you in PDF format that allows for printing copies and sharing electronically with contractors, subs, decorators, and more. This package includes a license to build the home one time.

PDF Single Build $1,145
Most recommended package

PDF Unlimited Build


Digital plans with an unlimited build license emailed in PDF format, that allows for printing copies on a home printer or local print shop and sharing with contractors, subs, decorators and more 

PDF Unlimited Build $1,645
Digital plans including unlimited build license

CAD + PDF Unlimited Build


CAD files are a complete set of construction drawings delivered electronically. They can be used for any type of modification—including major design changes and engineering—and include a release granting permission to modify the plan. Most CAD plan orders are emailed the same or next business day.
 
This package also comes with a PDF set of plans and a multi-use building license, granting permission to construct the home an unlimited number of times, along with a copyright release for making modifications and printing unlimited copies.
 
CAD files are provided in .dwg format. For details on the specific CAD program used, please refer to the PLAN DETAILS section located above the floor plan on each plan’s page.

CAD + PDF Unlimited Build $2,145
2D electronic editable computer files
STEP 2 Need To Reverse This Plan?
STEP 3 CHOOSE YOUR FOUNDATION
STEP 4 OPTIONAL ADD-ONS
Subtotal:
$1145
FREE SHIPPING
 
Plan Details
See All Details
Finished Square Footage
761 Sq. Ft.
Main Level:
761 Sq. Ft.
Upper Level:
810 Sq. Ft.
Lower Level:
1,522 Sq. Ft.
Total:
Room Details
3
Bedrooms:
2
Full Baths:
1
Half Baths:
General House Information
2
Number of Stories:
27' 0"
Width:
46' 0"
Depth:
Single
Dwelling Number:
Unfinished Square Footage
150 Sq. Ft.
Porch:
136 Sq. Ft.
Deck:
GARAGE
0
Garage Size:
Exterior Style
Country
Farmhouse
Modern Farmhouse
Traditional
Collections
Affordable
First Home
Open Floor Plan
Foundation
Basement
Crawl Space
Monolithic Slab
Slab
Stem Wall Slab
Walkout Basement
Framing Information
Stick
Roof Framing:
2x4
Exterior Wall Framing:
Roof Pitch
10/12
Primary:
6/12
Secondary:
Insulation (R)
House And Ceiling Heights
8
First Floor Ceiling:
8
Second Floor Ceiling:
26' 8"
Maximum House Height:
Key Features
Butler's Pantry
Deck
Dining Room
Double Vanity Sink
Family Room
Family Style
Kitchen Island
Laundry 1st Fl
L-Shaped
Primary Bdrm Upstairs
Peninsula / Eating Bar
Suited for corner lot
Walk-in Closet

Our Guarantees

  • Only the highest quality plans
  • Int’l Residential Code Compliant
  • Full structural details on all plans
  • Best plan price guarantee
  • Free modification Estimates
  • Builder-ready construction drawings
  • Expert advice from leading designers
  •  PDFs NOW!™ plans in minutes
  • 100% satisfaction guarantee
  • Free Home Building Organizer