20% off ALL House Plans Sitewide
20% off ALL House Plans Sitewide

House Plan: DFD-11788

See All 13 Photos > (photographs may reflect modified homes)
© copyright by designer
SQ FT
2,973
BEDS
4
BATHS
4
STORIES
2
CARS
0
HOUSE PLANS SALE 
START AT  $996.00
For questions and help, live chat, email or call us at 877-895-5299
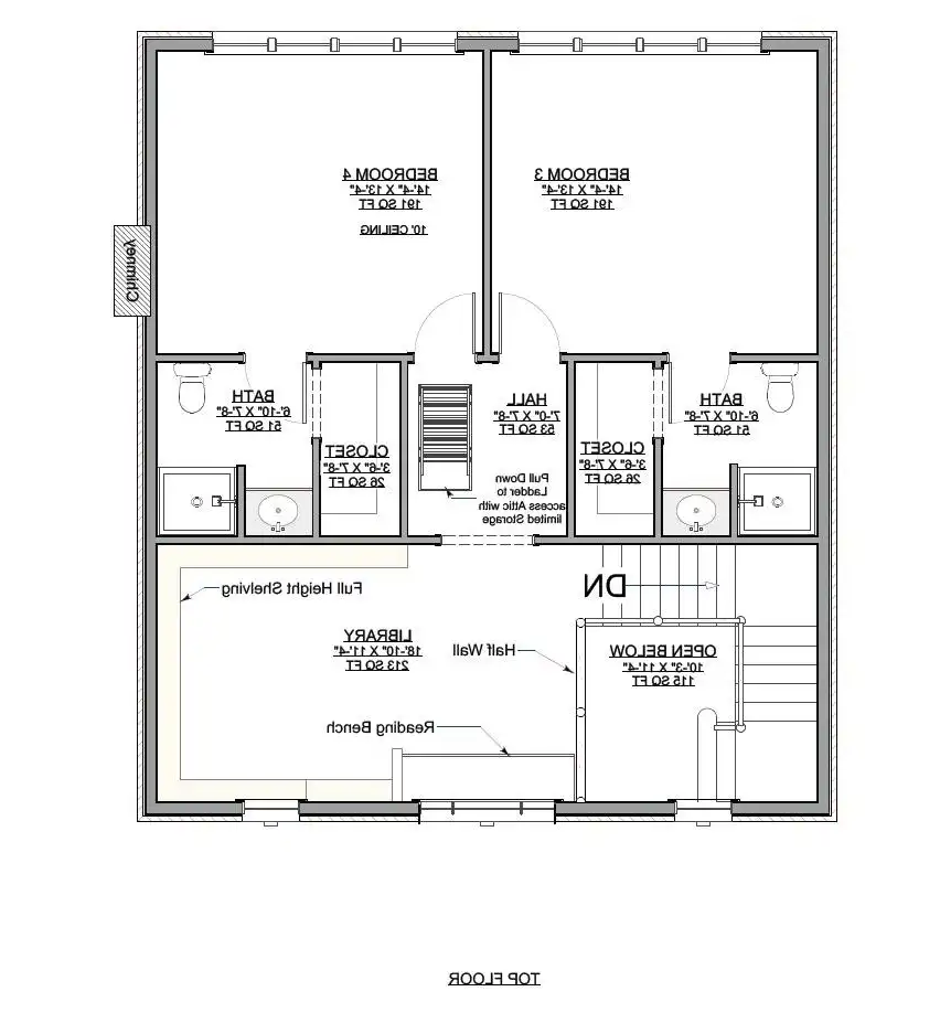
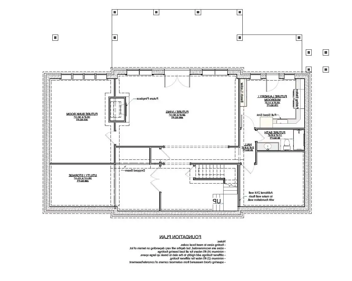
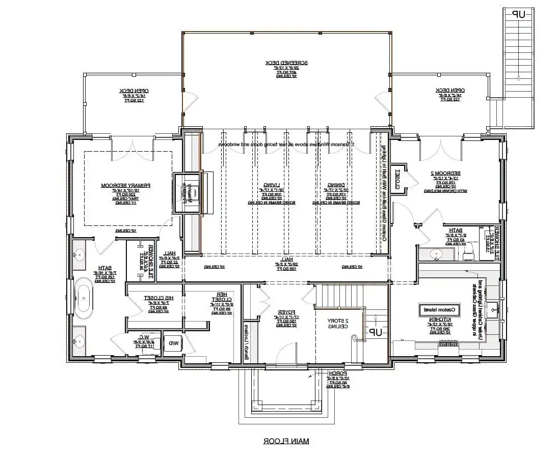
Floor Plans
Click to Zoom In on Floor Plan
 
About House Plan 11788:
Offering 2,973 sq ft of heated space, this plan balances open living with defined private zones. The front porch leads into a welcoming foyer that frames views through the dining and family rooms. The kitchen’s layout supports efficient movement, and the peninsula seating helps connect cooking and gathering. The main-floor primary suite includes generous closet space and a well-planned bath for comfort and privacy. Secondary bedrooms are set apart for quiet, daily functionality. The upper floor provides expanded living flexibility, accommodating hobbies, media, or additional work-from-home needs. Outdoor living is supported by both a front porch and a rear deck, extending the home’s usability across seasons.
House Plan Pricing
STEP 1 Select Your Package

PDF Single Build


Digital plans emailed to you in PDF format that allows for printing copies and sharing electronically with contractors, subs, decorators, and more. This package includes a license to build the home one time.

PDF Single Build $1,245
Most recommended package

PDF Unlimited Build


Digital plans with an unlimited build license emailed in PDF format, that allows for printing copies on a home printer or local print shop and sharing with contractors, subs, decorators and more 

PDF Unlimited Build $1,745
Digital plans including unlimited build license

CAD + PDF Unlimited Build


CAD files are a complete set of construction drawings delivered electronically. They can be used for any type of modification—including major design changes and engineering—and include a release granting permission to modify the plan. Most CAD plan orders are emailed the same or next business day.
 
This package also comes with a PDF set of plans and a multi-use building license, granting permission to construct the home an unlimited number of times, along with a copyright release for making modifications and printing unlimited copies.
 
CAD files are provided in .dwg format. For details on the specific CAD program used, please refer to the PLAN DETAILS section located above the floor plan on each plan’s page.

CAD + PDF Unlimited Build $2,245
2D electronic editable computer files
STEP 2 Need To Reverse This Plan?
STEP 3 CHOOSE YOUR FOUNDATION
STEP 4 OPTIONAL ADD-ONS
Subtotal:
$1245
FREE SHIPPING
 
Plan Details
See All Details
Finished Square Footage
2,044 Sq. Ft.
Main Level:
893 Sq. Ft.
Upper Level:
2,040 Sq. Ft.
Lower Level:
2,973 Sq. Ft.
Total:
Room Details
4
Bedrooms:
4
Full Baths:
General House Information
2
Number of Stories:
62' 0"
Width:
54' 4"
Depth:
Single
Dwelling Number:
Unfinished Square Footage
179 Sq. Ft.
Porch:
139 Sq. Ft.
Front Porch:
GARAGE
0
Garage Size:
Exterior Style
Colonial
Traditional
Collections
Kitchens
Luxury
Primary Suites
Open Floor Plan
Outdoor Living
Split Bedroom
Foundation
Basement
Crawl Space
Monolithic Slab
Slab
Stem Wall Slab
Walkout Basement
Framing Information
Stick
Roof Framing:
2x4
Exterior Wall Framing:
Roof Pitch
8/12
Primary:
6/12
Secondary:
Insulation (R)
House And Ceiling Heights
10
First Floor Ceiling:
9
Second Floor Ceiling:
32' 7"
Maximum House Height:
Key Features
Deck
Dining Room
Double Vanity Sink
Fireplace
Foyer
Front Porch
His and Hers Primary Closets
Kitchen Island
Laundry 1st Fl
Library/Media Rm
Primary Bdrm Main Floor
Mud Room
Open Floor Plan
Peninsula / Eating Bar
Separate Tub and Shower
Split Bedrooms
Storage Space
Suited for corner lot
Unfinished Space
U-Shaped
Walk-in Closet

Our Guarantees

  • Only the highest quality plans
  • Int’l Residential Code Compliant
  • Full structural details on all plans
  • Best plan price guarantee
  • Free modification Estimates
  • Builder-ready construction drawings
  • Expert advice from leading designers
  •  PDFs NOW!™ plans in minutes
  • 100% satisfaction guarantee
  • Free Home Building Organizer