20% off ALL House Plans Sitewide
20% off ALL House Plans Sitewide

House Plan: DFD-11824

See All 6 Photos > (photographs may reflect modified homes)
© copyright by designer
SQ FT
1,693
BEDS
2
BATHS
2
STORIES
1
CARS
2
HOUSE PLANS SALE 
START AT  $1,344.00
For questions and help, live chat, email or call us at 877-895-5299
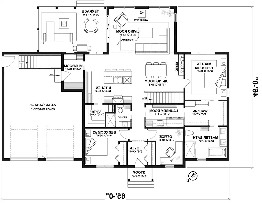
Floor Plans
Click to Zoom In on Floor Plan
 
About House Plan 11824:
Designed with efficiency and livability in mind, this 1693 square feet single story home plan includes 2 bedrooms and 2 baths arranged within a welcoming open layout. The vaulted family room connects naturally to the dining area and kitchen, creating a cohesive gathering space centered around a cozy fireplace. The kitchen’s island and walk-in pantry support both daily routines and entertaining with ease. The main level primary suite offers privacy and comfort, complete with dual closets and a bath featuring double vanities and a separate tub and shower. A secondary bedroom accommodates guests while maintaining separation from the primary suite. A home office, mud room, and first-floor laundry enhance everyday functionality. The attached garage with front-entry access completes this thoughtfully designed home.
House Plan Pricing
STEP 1 Select Your Package

PDF Single Build


Digital plans emailed to you in PDF format that allows for printing copies and sharing electronically with contractors, subs, decorators, and more. This package includes a license to build the home one time.

PDF Single Build $1,680
Most recommended package

3 Printed Sets + PDF


Includes 3 physical printed blueprint sets, shipped free via UPS within the U.S. Printed sets ship within 1 business day and are delivered within 3 – 5 business days. A complimentary PDF plan set is also emailed within 1 business day for easy sharing and local printing. These plans may be used to construct one home.

3 Printed Sets + PDF $1,820
3 Printed Sets + PDF

CAD + PDF Single Build


This plan package is created in AutoCAD and delivered in .DWG format. CAD files are intended for use by design professionals, structural engineers, and builders to update plans for local building codes or to make revisions based on specific needs, lot requirements, and budget considerations. A complimentary PDF copy is included with this package for reference. CAD packages are delivered within 1 to 2 business days.
 
This package also comes with a copyright release for making revisions and printing unlimited copies.

For details on the specific CAD program used, please refer to the PLAN DETAILS section located above the floor plan on each plan page.

CAD + PDF Single Build $2,680
2D electronic editable computer files
STEP 2 Need To Reverse This Plan?
STEP 3 CHOOSE YOUR FOUNDATION
STEP 4 OPTIONAL ADD-ONS
Subtotal:
$1680
FREE SHIPPING
Please allow 3-5 business days for delivery of this plan Please check our PDFs NOW collection for plans that can be downloaded and received immediately or live chat us to help you find a similar plan available now.
 
Plan Details
See All Details
Finished Square Footage
1,693 Sq. Ft.
Main Level:
1,693 Sq. Ft.
Lower Level:
1,693 Sq. Ft.
Total:
Room Details
2
Bedrooms:
2
Full Baths:
General House Information
1
Number of Stories:
65' 0"
Width:
46' 0"
Depth:
Single
Dwelling Number:
Unfinished Square Footage
641 Sq. Ft.
Garage:
GARAGE
Front
Garage Location:
2
Garage Size:
Exterior Style
Bungalow
Country
Ranch
Traditional
Transitional
Collections
Architects Choice
Canada
Kitchens
Primary Suites
Open Floor Plan
Outdoor Living
Split Bedroom
Foundation
Crawlspace
Floating slab
Full Unfinished Basement (included)
Monolithic slab
Framing Information
Truss
Roof Framing:
2x6
Exterior Wall Framing:
Roof Pitch
10/12
Primary:
Insulation (R)
House And Ceiling Heights
9
First Floor Ceiling:
26' 11"
Maximum House Height:
Key Features
Attached
Dining Room
Double Vanity Sink
Family Room
Fireplace
His and Hers Primary Closets
Home Office
Kitchen Island
Laundry 1st Fl
L-Shaped
Primary Bdrm Main Floor
Mud Room
Open Floor Plan
Separate Tub and Shower
Suited for corner lot
Vaulted Ceilings
Walk-in Closet
Walk-in Pantry

Our Guarantees

  • Only the highest quality plans
  • Int’l Residential Code Compliant
  • Full structural details on all plans
  • Best plan price guarantee
  • Free modification Estimates
  • Builder-ready construction drawings
  • Expert advice from leading designers
  •  PDFs NOW!™ plans in minutes
  • 100% satisfaction guarantee
  • Free Home Building Organizer

See terms opt out anytime