House Plan: DFD-11837

See All 12 Photos > (photographs may reflect modified homes)
© copyright by designer
SQ FT
1,503
BEDS
3
BATHS
2.5
STORIES
2
CARS
1
PLANS FROM $1,145
For questions and help, live chat, email or call us at 877-895-5299
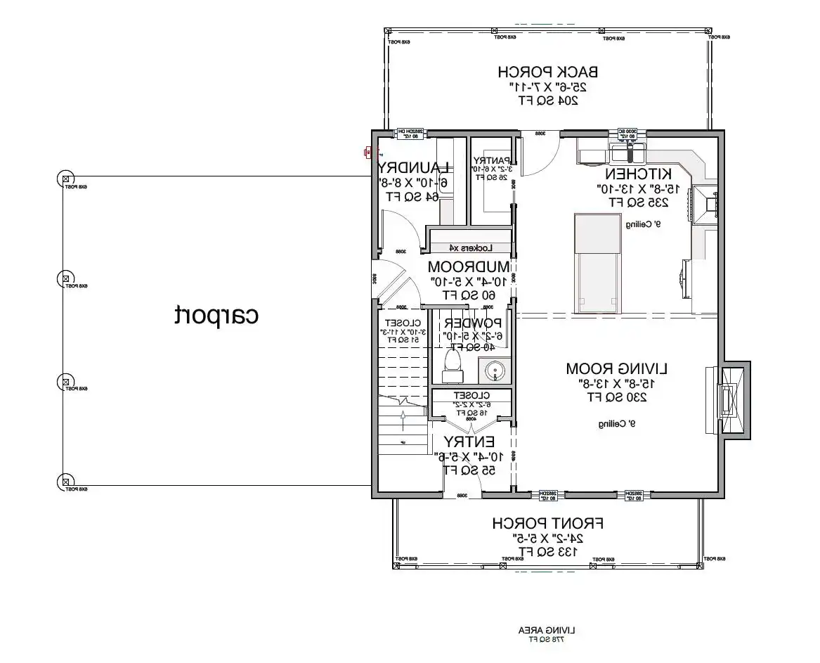
Floor Plans
Click to Zoom In on Floor Plan
 
About House Plan 11837:
This charming 1,503 square foot plan blends functional design with relaxed comfort for a home that suits the needs of a busy household. The kitchen’s island, peninsula, and generous pantry support both cooking and gathering, opening directly into a bright living area enhanced by a cozy fireplace. All bedrooms are situated upstairs, where the primary suite includes a spacious walk-in closet and a restful sense of privacy. The first-floor laundry room, mud room, and well-organized layout ensure that daily tasks are simple and efficient. A covered front porch welcomes guests, while the covered rear porch creates a calm outdoor escape for meals or quiet moments. With its inviting features and balanced design, this home offers a warm and family-friendly environment that feels comfortable from the moment you step inside.
House Plan Pricing
STEP 1 Select Your Package

PDF Single Build


Digital plans emailed to you in PDF format that allows for printing copies and sharing electronically with contractors, subs, decorators, and more. This package includes a license to build the home one time.

PDF Single Build $1,145
Most recommended package

PDF Unlimited Build


Digital plans with an unlimited build license emailed in PDF format, that allows for printing copies on a home printer or local print shop and sharing with contractors, subs, decorators and more 

PDF Unlimited Build $1,645
Digital plans including unlimited build license

CAD + PDF Unlimited Build


This plan package is created in AutoCAD and delivered in .DWG format. CAD files are intended for use by design professionals, structural engineers, and builders to update plans for local building codes or to make revisions based on specific needs, lot requirements, and budget considerations. A complimentary PDF copy is included with this package for reference. CAD packages are delivered within 1 to 2 business days.
 
This package also comes with a multi-use building license, granting permission to construct the home an unlimited number of times, along with a copyright release for making revisions and printing unlimited copies.
 
For details on the specific CAD program used, please refer to the PLAN DETAILS section located above the floor plan on each plan page.

CAD + PDF Unlimited Build $2,145
2D electronic editable computer files
STEP 2 Need To Reverse This Plan?
STEP 3 CHOOSE YOUR FOUNDATION
STEP 4 OPTIONAL ADD-ONS
Subtotal:
$1145
FREE SHIPPING
 
Plan Details
See All Details
Finished Square Footage
778 Sq. Ft.
Main Level:
725 Sq. Ft.
Upper Level:
1,503 Sq. Ft.
Total:
Room Details
3
Bedrooms:
2
Full Baths:
1
Half Baths:
General House Information
2
Number of Stories:
51' 4"
Width:
41' 11"
Depth:
Single
Dwelling Number:
Unfinished Square Footage
337 Sq. Ft.
Porch:
133 Sq. Ft.
Front Porch:
204 Sq. Ft.
Deck:
GARAGE
Side
Garage Location:
1
Garage Size:
Exterior Style
Country
Farmhouse
Modern Farmhouse
Traditional
Collections
Affordable
Cabin
First Home
Open Floor Plan
Foundation
Basement
Crawl Space
Daylight Basement
Monolithic Slab
Slab
Stem Wall Slab
Walkout Basement
Framing Information
Stick
Roof Framing:
2x4
Exterior Wall Framing:
Roof Pitch
9/12
Primary:
4/12
Secondary:
Insulation (R)
House And Ceiling Heights
9
First Floor Ceiling:
9
Second Floor Ceiling:
30' 0"
Maximum House Height:
Key Features
Attached
Carport
Covered Front Porch
Covered Rear Porch
Family Style
Fireplace
Front-entry
Kitchen Island
Laundry 1st Fl
L-Shaped
Primary Bdrm Upstairs
Mud Room
Peninsula / Eating Bar
Suited for corner lot
Walk-in Closet
Walk-in Pantry

Our Guarantees

  • Only the highest quality plans
  • Int’l Residential Code Compliant
  • Full structural details on all plans
  • Best plan price guarantee
  • Free modification Estimates
  • Builder-ready construction drawings
  • Expert advice from leading designers
  •  PDFs NOW!™ plans in minutes
  • 100% satisfaction guarantee
  • Free Home Building Organizer