House Plan: DFD-11873

See All 20 Photos > (photographs may reflect modified homes)
© copyright by designer
SQ FT
2,234
BEDS
4
BATHS
2.5
STORIES
2
CARS
3
PLANS FROM $1,250
For questions and help, live chat, email or call us at 877-895-5299
Floor Plans
Click to Zoom In on Floor Plan
 
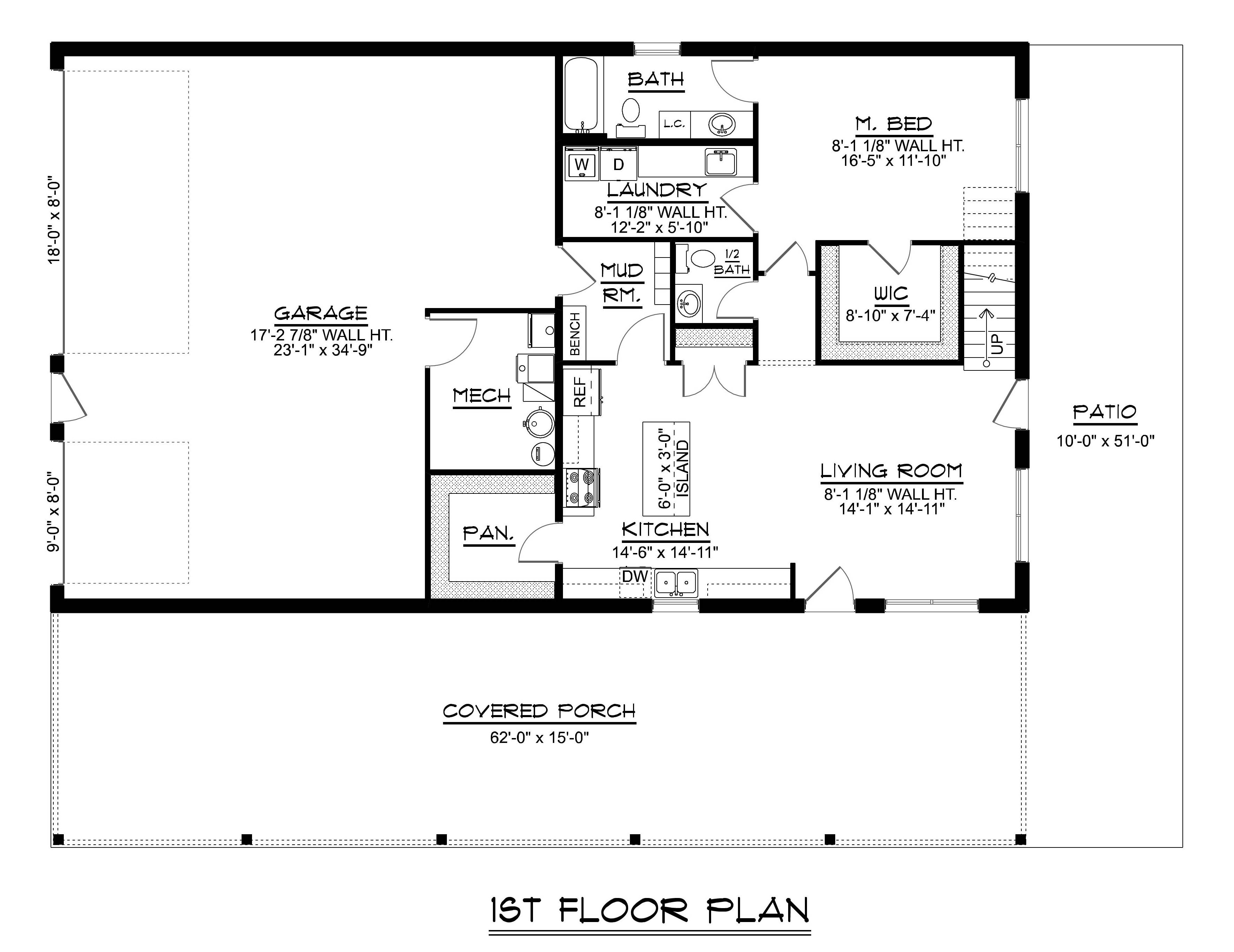
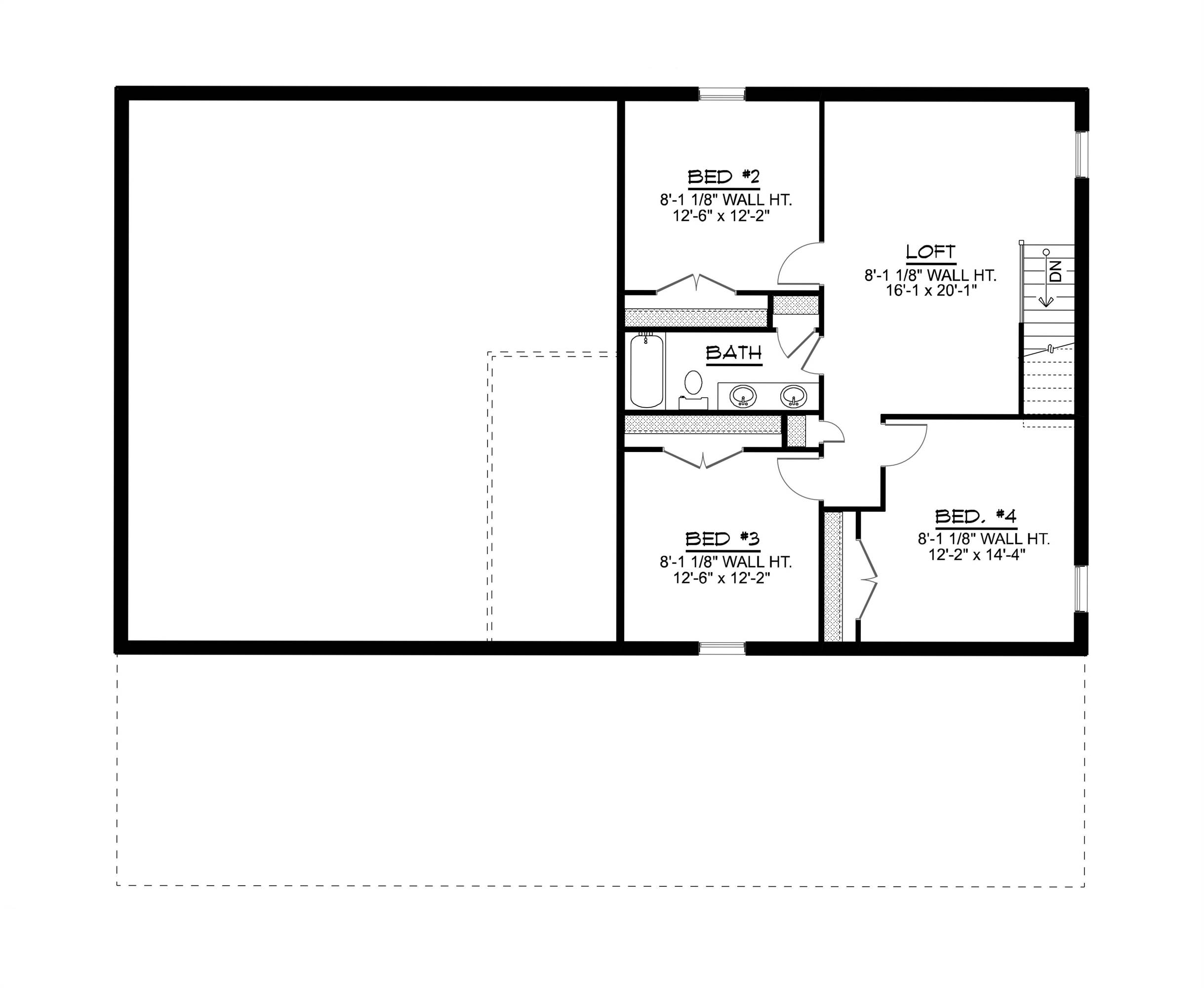
About House Plan 11873:
House Plan 11873 is a 2 story barndominium that prioritizes both livability and storage, offering 2,234 square feet, 4 bedrooms, and 2.5 bathrooms. The main-level primary suite creates a private retreat, while the open great room and kitchen keep the home feeling bright and connected. An island, pantry, and walk-in pantry give you the kind of kitchen storage that actually keeps counters clear. Daily routines are streamlined with a mudroom entry, laundry on the first floor, and a well-placed half bath. Upstairs, three secondary bedrooms share a full bath and open to a flexible loft space that can serve as a lounge, home office, or play area. The attached 3-car side-entry garage is perfect for a couple or family that needs room for outdoor gear, tools, and multiple vehicles. Complete with generous outdoor living space, this plan is built for relaxed weekends and practical everyday life.
House Plan Pricing
STEP 1 Select Your Package

PDF Single Build


Digital plans emailed to you in PDF format that allows for printing copies and sharing electronically with contractors, subs, decorators, and more. This package includes a license to build the home one time.

PDF Single Build $1,250
Most recommended package

5 Printed Sets + PDF


Includes 5 physical printed blueprint sets, shipped free via UPS within the U.S. Printed sets ship within 1 business day and are delivered within 3 – 5 business days. A complimentary PDF plan set is also emailed within 1 business day for easy sharing and local printing. These plans may be used to construct one home.

5 Printed Sets + PDF $1,600
5 Printed Sets + PDF

PDF Unlimited Build


Digital plans with an unlimited build license emailed in PDF format, that allows for printing copies on a home printer or local print shop and sharing with contractors, subs, decorators and more 

PDF Unlimited Build $1,850
Digital plans including unlimited build license

CAD + PDF Single Build


This plan package is created in AutoCAD and delivered in .DWG format. CAD files are intended for use by design professionals, structural engineers, and builders to update plans for local building codes or to make revisions based on specific needs, lot requirements, and budget considerations. A complimentary PDF copy is included with this package for reference. CAD packages are delivered within 1 to 2 business days.
 
This package also comes with a copyright release for making revisions and printing unlimited copies.

For details on the specific CAD program used, please refer to the PLAN DETAILS section located above the floor plan on each plan page.

CAD + PDF Single Build $2,300
2D electronic editable computer files

CAD + PDF Unlimited Build


This plan package is created in AutoCAD and delivered in .DWG format. CAD files are intended for use by design professionals, structural engineers, and builders to update plans for local building codes or to make revisions based on specific needs, lot requirements, and budget considerations. A complimentary PDF copy is included with this package for reference. CAD packages are delivered within 1 to 2 business days.
 
This package also comes with a multi-use building license, granting permission to construct the home an unlimited number of times, along with a copyright release for making revisions and printing unlimited copies.
 
For details on the specific CAD program used, please refer to the PLAN DETAILS section located above the floor plan on each plan page.

CAD + PDF Unlimited Build $2,850
2D electronic editable computer files
STEP 2 Need To Reverse This Plan?
STEP 3 CHOOSE YOUR FOUNDATION
STEP 4 OPTIONAL ADD-ONS
Subtotal:
$1250
FREE SHIPPING
 
Plan Details
See All Details
Finished Square Footage
1,154 Sq. Ft.
Main Level:
1,080 Sq. Ft.
Upper Level:
2,234 Sq. Ft.
Total:
Room Details
4
Bedrooms:
2
Full Baths:
1
Half Baths:
General House Information
2
Number of Stories:
72' 0"
Width:
51' 0"
Depth:
Single
Dwelling Number:
Unfinished Square Footage
1078 Sq. Ft.
Garage:
930 Sq. Ft.
Porch:
512 Sq. Ft.
Deck:
GARAGE
Side
Garage Location:
3
Garage Size:
Exterior Style
Barndominium
Contemporary
Country
Farmhouse
Collections
Mountain
Open Floor Plan
Outdoor Living
Split Bedroom
Foundation
Basement
Crawl Space
Slab
Walkout
Framing Information
Truss
Roof Framing:
Other
Exterior Wall Framing:
Roof Pitch
4/12
Primary:
Insulation (R)
19
Exterior Wall:
36
Ceiling:
House And Ceiling Heights
8
First Floor Ceiling:
8
Second Floor Ceiling:
26' 1"
Maximum House Height:
Key Features
Attached
Covered Front Porch
Great Room
Kitchen Island
Laundry 1st Fl
Loft / Balcony
L-Shaped
Primary Bdrm Main Floor
Mud Room
Open Floor Plan
Outdoor Living Space
Pantry
Side-entry
Split Bedrooms
Suited for view lot
Walk-in Closet
Walk-in Pantry

Our Guarantees

  • Only the highest quality plans
  • Int’l Residential Code Compliant
  • Full structural details on all plans
  • Best plan price guarantee
  • Free modification Estimates
  • Builder-ready construction drawings
  • Expert advice from leading designers
  •  PDFs NOW!™ plans in minutes
  • 100% satisfaction guarantee
  • Free Home Building Organizer