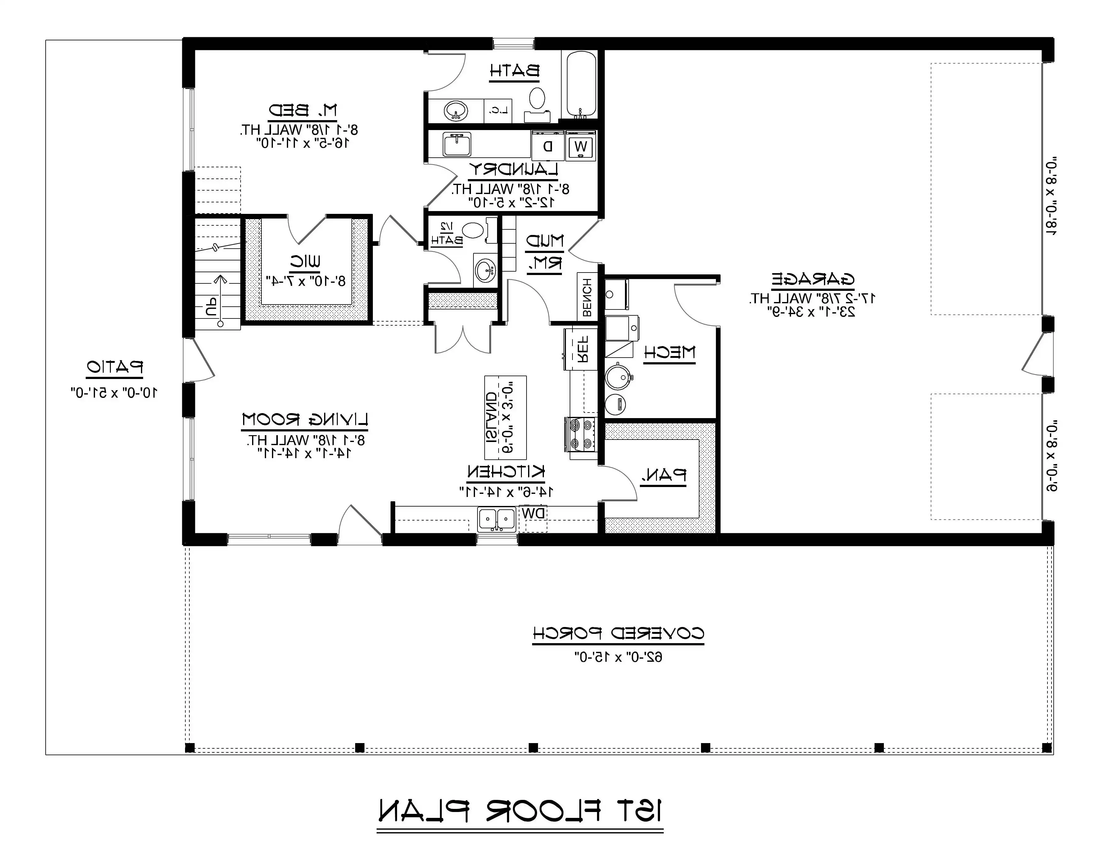
House Plan 11873 is a 2 story barndominium that prioritizes both livability and storage, offering 2,234 square feet, 4 bedrooms, and 2.5 bathrooms. The main-level primary suite creates a private retreat, while the open great room and kitchen keep the home feeling bright and connected. An island, pantry, and walk-in pantry give you the kind of kitchen storage that actually keeps counters clear. Daily routines are streamlined with a mudroom entry, laundry on the first floor, and a well-placed half bath. Upstairs, three secondary bedrooms share a full bath and open to a flexible loft space that can serve as a lounge, home office, or play area. The attached 3-car side-entry garage is perfect for a couple or family that needs room for outdoor gear, tools, and multiple vehicles. Complete with generous outdoor living space, this plan is built for relaxed weekends and practical everyday life.