House Plan: DFD-11879

See All 58 Photos > (photographs may reflect modified homes)
© copyright by designer
SQ FT
2,102
BEDS
3
BATHS
2.5
STORIES
2
CARS
2
PLANS FROM $875
For questions and help, live chat, email or call us at 877-895-5299
Floor Plans
Click to Zoom In on Floor Plan
 
About House Plan 11879:
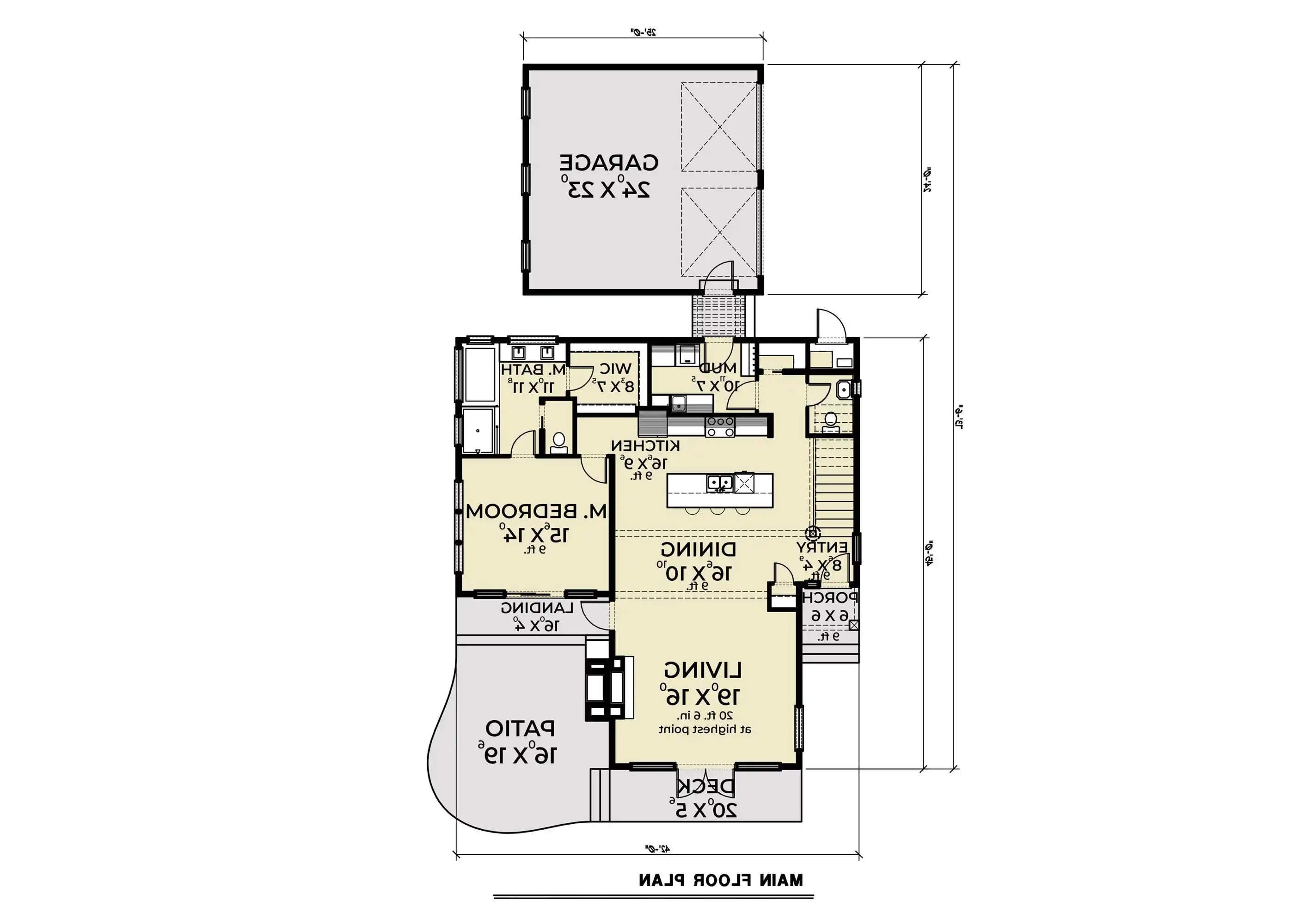
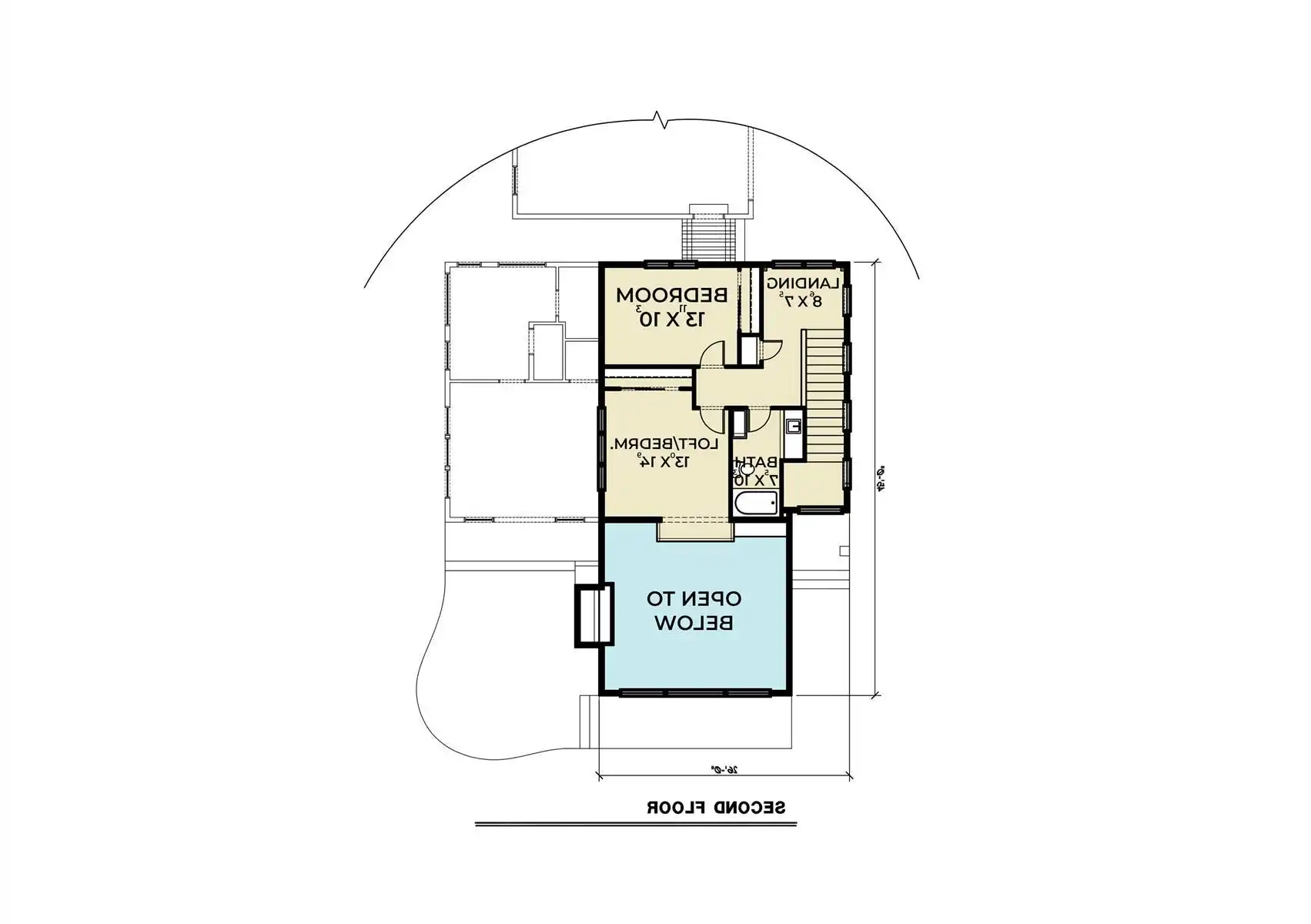
If you've got a view lot and contemporary tastes, House Plan 11879 could be the one for you! This two-story design offers 2,102 square feet with three bedrooms and two-and-a-half bathrooms in a unique layout. The main floor has an open-concept great room with an island kitchen and a two-story living area with floor-to-ceiling windows. The five-piece primary suite is also made to bring in views and enjoys a five-piece bath and a walk-in closet. There's also a powder room and a laundry/mudroom that leads to the rear side-entry garage. Upstairs, two bedrooms share a hall bath. Make sure to notice that one of the bedrooms has a barn door that slides away to overlook the great room! 
House Plan Pricing
STEP 1 Select Your Package

PDF Bid Set


Home plans stamped "NOT FOR CONSTRUCTION" for cost estimating and bidding purposes only; a minimum 5 set plan package must be purchased within 90 days for a license to build plan set; a credit will be applied towards your house plan upgrade

PDF Bid Set $875
Digital set of plans for bidding purposes only

PDF Single Build


Digital plans emailed to you in PDF format that allows for printing copies and sharing electronically with contractors, subs, decorators, and more. This package includes a license to build the home one time.

PDF Single Build $1,750
Most recommended package

5 Printed Sets + PDF


Digital plan emailed to you in PDF format that allows for printing copies on a home printer or local print shop and sharing with contractors, subs, decorators, and more. PLUS five printed sets shipped and delivered 3-5 business days.

5 Printed Sets + PDF $2,200
Digital plans plus 5 printed sets

CAD + PDF Single Build


CAD files are a complete set of construction drawings delivered electronically. They can be used for any type of modification—including major design changes and engineering—and include a release granting permission to modify the plan. Most CAD plan orders are emailed the same or next business day.
 
This package also comes with a PDF set of plans and a copyright release for making modifications and printing unlimited copies.
 
CAD files are provided in .dwg format. For details on the specific CAD program used, please refer to the PLAN DETAILS section located above the floor plan on each plan’s page.

CAD + PDF Single Build $2,250
2D electronic editable computer files
STEP 2 Need To Reverse This Plan?
STEP 3 CHOOSE YOUR FOUNDATION
STEP 4 OPTIONAL ADD-ONS
Subtotal:
$1750
FREE SHIPPING
 
Plan Details
See All Details
Finished Square Footage
1,488 Sq. Ft.
Main Level:
614 Sq. Ft.
Upper Level:
2,102 Sq. Ft.
Total:
Room Details
3
Bedrooms:
2
Full Baths:
1
Half Baths:
General House Information
2
Number of Stories:
42' 0"
Width:
73' 6"
Depth:
Single
Dwelling Number:
None
Bonus Access:
Unfinished Square Footage
600 Sq. Ft.
Garage:
412 Sq. Ft.
Porch:
110 Sq. Ft.
Deck:
GARAGE
Rear
Garage Location:
2
Garage Size:
Exterior Style
Contemporary
Modern
Collections
Kitchens
Primary Suites
Mountain
Open Floor Plan
Outdoor Living
Split Bedroom
T Shaped
Vacation
Foundation
Crawl Space (no charge)
Slab
Framing Information
Stick
Roof Framing:
2x6
Exterior Wall Framing:
Roof Pitch
1.5:12
Primary:
Insulation (R)
0
Exterior Wall:
0
Interior Wall:
0
Ceiling:
0
Floor:
House And Ceiling Heights
9
First Floor Ceiling:
7
Second Floor Ceiling:
23' 8"
Maximum House Height:
Key Features
Covered Front Porch
Crawlspace
Deck
Detached
Dining Room
Double Vanity Sink
Fireplace
Great Room
Kitchen Island
Laundry 1st Fl
Loft / Balcony
Primary Bdrm Main Floor
Mud Room
Open Floor Plan
Separate Tub and Shower
Side-entry
Split Bedrooms
Suited for corner lot
Suited for narrow lot
Suited for view lot
Vaulted Ceilings
Walk-in Closet
Walk-in Pantry

Our Guarantees

  • Only the highest quality plans
  • Int’l Residential Code Compliant
  • Full structural details on all plans
  • Best plan price guarantee
  • Free modification Estimates
  • Builder-ready construction drawings
  • Expert advice from leading designers
  •  PDFs NOW!™ plans in minutes
  • 100% satisfaction guarantee
  • Free Home Building Organizer