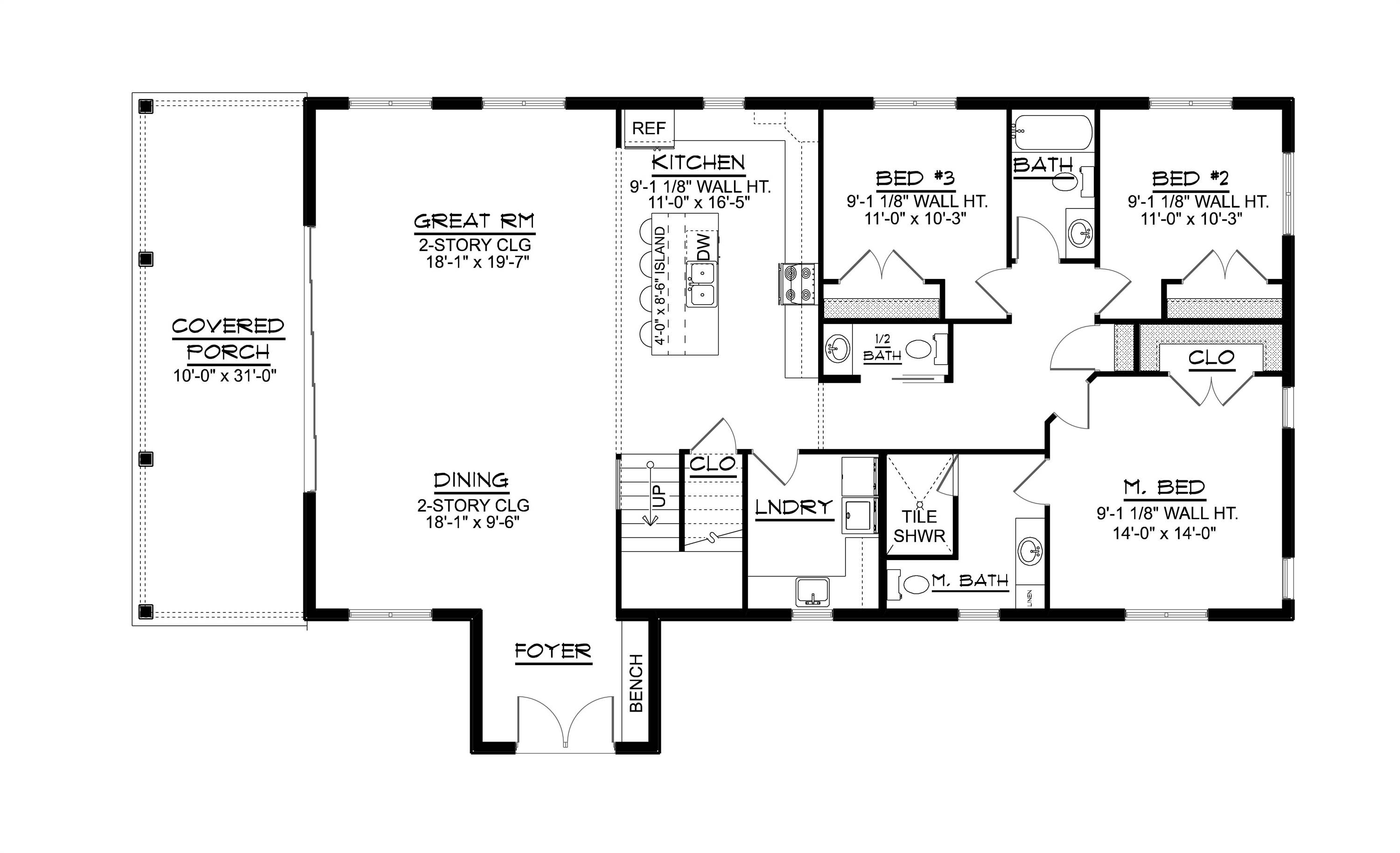
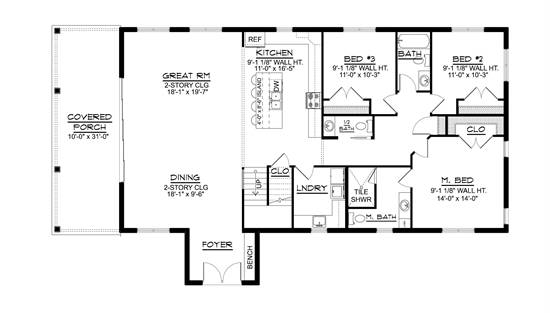
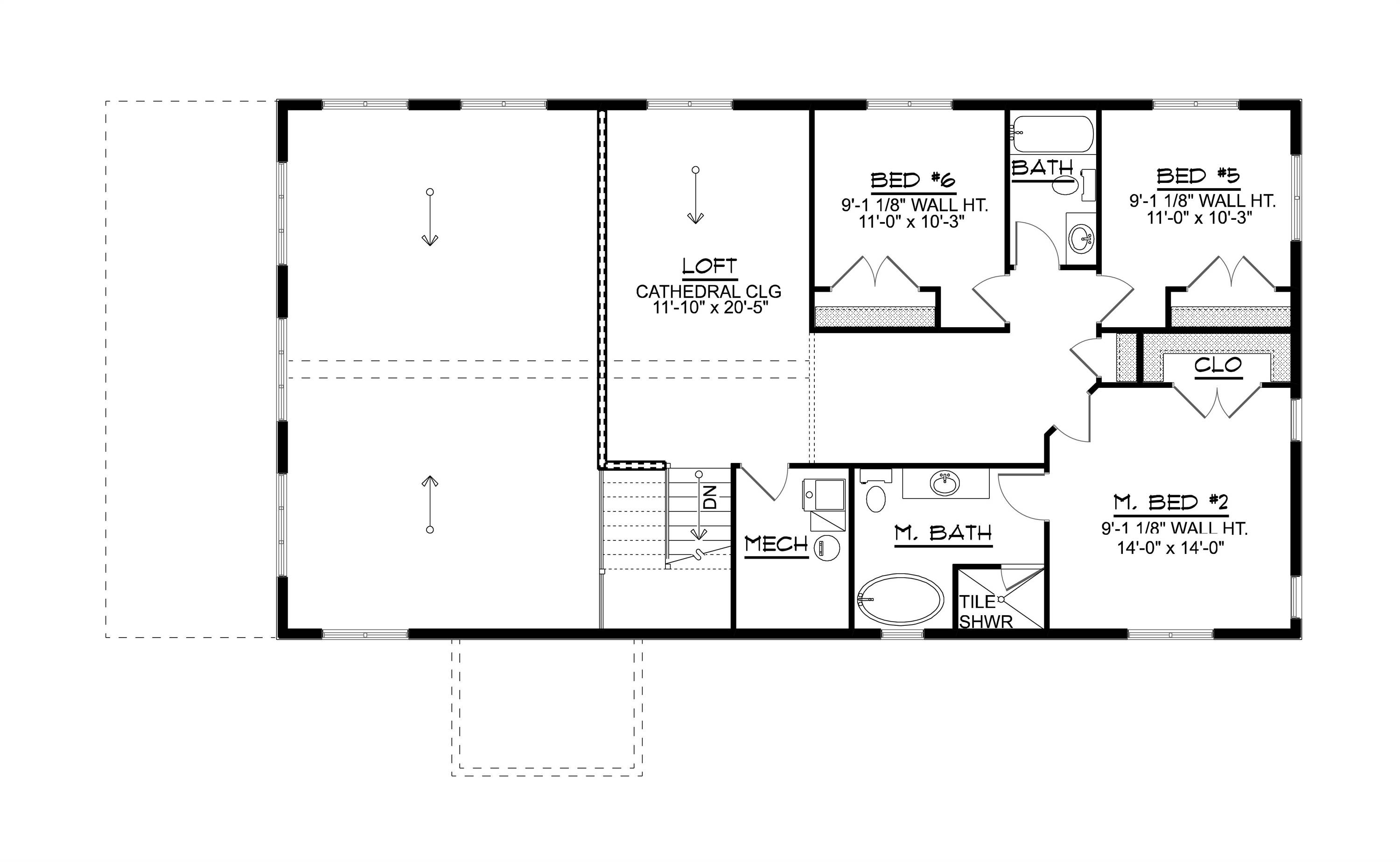
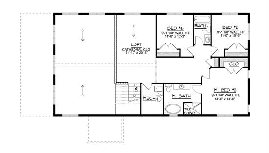
With 2,545 square feet of heated living space, this two-story home delivers 6 bedrooms and 4.5 bathrooms arranged for versatility and comfort. The great room anchors the open floor plan, providing a central gathering area that flows easily into the dining room and kitchen. An L-shaped kitchen with an island supports everyday meals and larger gatherings alike. The primary suite is located on the main floor, offering privacy and ease of access. Practical features such as first-floor laundry and a well-defined foyer support busy daily life. The upper level includes multiple secondary bedrooms along with a loft or balcony space that adds flexibility for shared living or quiet retreat areas. A covered front porch adds warmth and charm, creating a welcoming first impression.
With 2,545 square feet of heated living space, this two-story home delivers 6 bedrooms and 4.5 bathrooms arranged for versatility and comfort. The great room anchors the open floor plan, providing a central gathering area that flows easily into the dining room and kitchen. An L-shaped kitchen with an island supports everyday meals and larger gatherings alike. The primary suite is located on the main floor, offering privacy and ease of access. Practical features such as first-floor laundry and a well-defined foyer support busy daily life. The upper level includes multiple secondary bedrooms along with a loft or balcony space that adds flexibility for shared living or quiet retreat areas. A covered front porch adds warmth and charm, creating a welcoming first impression.