20% off ALL House Plans Sitewide
20% off ALL House Plans Sitewide

House Plan: DFD-11896

See All 19 Photos > (photographs may reflect modified homes)
© copyright by designer
SQ FT
2,545
BEDS
6
BATHS
4.5
STORIES
2
CARS
0
HOUSE PLANS SALE 
START AT  $1,160.00
For questions and help, live chat, email or call us at 877-895-5299
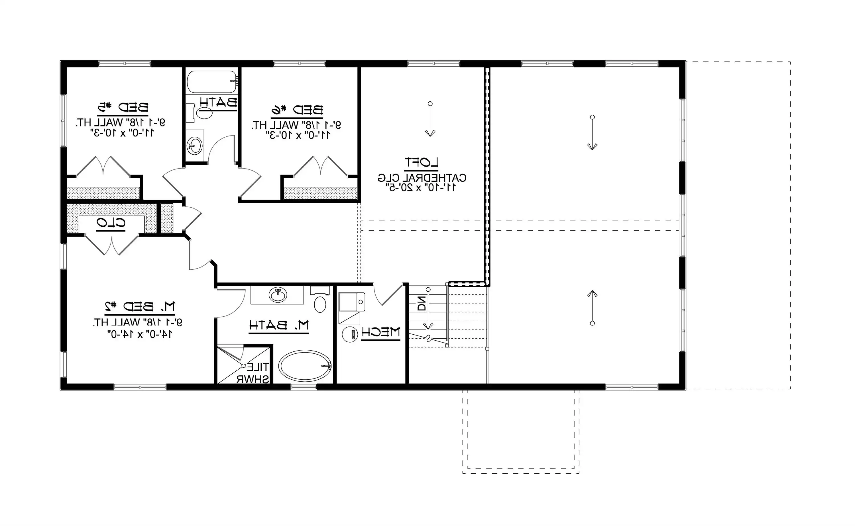
Floor Plans
Click to Zoom In on Floor Plan
 
About House Plan 11896:
With 2,545 square feet of heated living space, this two-story home delivers 6 bedrooms and 4.5 bathrooms arranged for versatility and comfort. The great room anchors the open floor plan, providing a central gathering area that flows easily into the dining room and kitchen. An L-shaped kitchen with an island supports everyday meals and larger gatherings alike. The primary suite is located on the main floor, offering privacy and ease of access. Practical features such as first-floor laundry and a well-defined foyer support busy daily life. The upper level includes multiple secondary bedrooms along with a loft or balcony space that adds flexibility for shared living or quiet retreat areas. A covered front porch adds warmth and charm, creating a welcoming first impression.
House Plan Pricing
STEP 1 Select Your Package

PDF Single Build


Digital plans emailed to you in PDF format that allows for printing copies and sharing electronically with contractors, subs, decorators, and more. This package includes a license to build the home one time.

PDF Single Build $1,450
Most recommended package

5 Printed Sets + PDF


Includes 5 physical printed blueprint sets, shipped free via UPS within the U.S. Printed sets ship within 1 business day and are delivered within 3 – 5 business days. A complimentary PDF plan set is also emailed within 1 business day for easy sharing and local printing. These plans may be used to construct one home.

5 Printed Sets + PDF $1,800
5 Printed Sets + PDF

PDF Unlimited Build


Digital plans with an unlimited build license emailed in PDF format, that allows for printing copies on a home printer or local print shop and sharing with contractors, subs, decorators and more 

PDF Unlimited Build $2,050
Digital plans including unlimited build license

CAD + PDF Single Build


This plan package is created in AutoCAD and delivered in .DWG format. CAD files are intended for use by design professionals, structural engineers, and builders to update plans for local building codes or to make revisions based on specific needs, lot requirements, and budget considerations. A complimentary PDF copy is included with this package for reference. CAD packages are delivered within 1 to 2 business days.
 
This package also comes with a copyright release for making revisions and printing unlimited copies.

For details on the specific CAD program used, please refer to the PLAN DETAILS section located above the floor plan on each plan page.

CAD + PDF Single Build $2,700
2D electronic editable computer files

CAD + PDF Unlimited Build


This plan package is created in AutoCAD and delivered in .DWG format. CAD files are intended for use by design professionals, structural engineers, and builders to update plans for local building codes or to make revisions based on specific needs, lot requirements, and budget considerations. A complimentary PDF copy is included with this package for reference. CAD packages are delivered within 1 to 2 business days.
 
This package also comes with a multi-use building license, granting permission to construct the home an unlimited number of times, along with a copyright release for making revisions and printing unlimited copies.
 
For details on the specific CAD program used, please refer to the PLAN DETAILS section located above the floor plan on each plan page.

CAD + PDF Unlimited Build $3,250
2D electronic editable computer files
STEP 2 Need To Reverse This Plan?
STEP 3 CHOOSE YOUR FOUNDATION
STEP 4 OPTIONAL ADD-ONS
Subtotal:
$1450
FREE SHIPPING
 
Plan Details
See All Details
Finished Square Footage
1,373 Sq. Ft.
Main Level:
1,172 Sq. Ft.
Upper Level:
2,545 Sq. Ft.
Total:
Room Details
6
Bedrooms:
4
Full Baths:
1
Half Baths:
General House Information
2
Number of Stories:
69' 0"
Width:
39' 0"
Depth:
Single
Dwelling Number:
Unfinished Square Footage
298 Sq. Ft.
Porch:
GARAGE
0
Garage Size:
Exterior Style
Barndominium
Contemporary
Country
Farmhouse
Modern Farmhouse
Collections
Mountain
Open Floor Plan
Texas
Foundation
Basement
Crawl Space
Slab
Walkout
Framing Information
Truss
Roof Framing:
2x6
Exterior Wall Framing:
Roof Pitch
7/12
Primary:
4/12
Secondary:
Insulation (R)
19
Exterior Wall:
36
Ceiling:
House And Ceiling Heights
9
First Floor Ceiling:
9
Second Floor Ceiling:
30' 0"
Maximum House Height:
Key Features
Covered Front Porch
Dining Room
Foyer
Great Room
Kitchen Island
Laundry 1st Fl
Loft / Balcony
L-Shaped
Primary Bdrm Main Floor
None
Open Floor Plan
Suited for corner lot

Our Guarantees

  • Only the highest quality plans
  • Int’l Residential Code Compliant
  • Full structural details on all plans
  • Best plan price guarantee
  • Free modification Estimates
  • Builder-ready construction drawings
  • Expert advice from leading designers
  •  PDFs NOW!™ plans in minutes
  • 100% satisfaction guarantee
  • Free Home Building Organizer