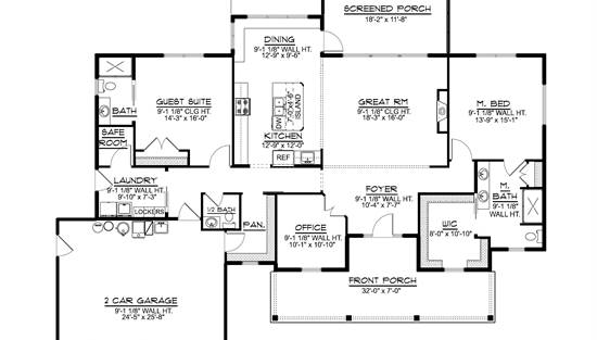
House Plan 11901 presents a thoughtfully designed 1,981 square feet country ranch with two bedrooms, two and a half bathrooms, and a spacious 645 square feet front-entry two-car garage, blending classic charm with modern farmhouse detail. The front porch opens into a formal foyer with clear views into the great room and immediate access to a private home office. An open great room, dining space, and gourmet kitchen with a large island and walk-in pantry form the heart of the home, making both daily living and casual entertaining effortless. The primary suite is privately positioned with a spacious bath and walk-in closet, while the guest suite with its own full bath is placed on the opposite side of the floor plan for comfort and separation. A mudroom with built-in lockers connects the laundry area to the garage for everyday organization, and a discreet safe room enhances security. Generous outdoor spaces include a sweeping front porch and a rear screened porch that opens to a patio, with an optional finished basement offering flexible future living space.