15% off ALL House Plans Sitewide
15% off ALL House Plans Sitewide

House Plan: DFD-11902

See All 13 Photos > (photographs may reflect modified homes)
© copyright by designer
SQ FT
1,499
BEDS
3
BATHS
2
STORIES
2
CARS
3
HOUSE PLANS SALE 
START AT  $973.25
For questions and help, live chat, email or call us at 877-895-5299
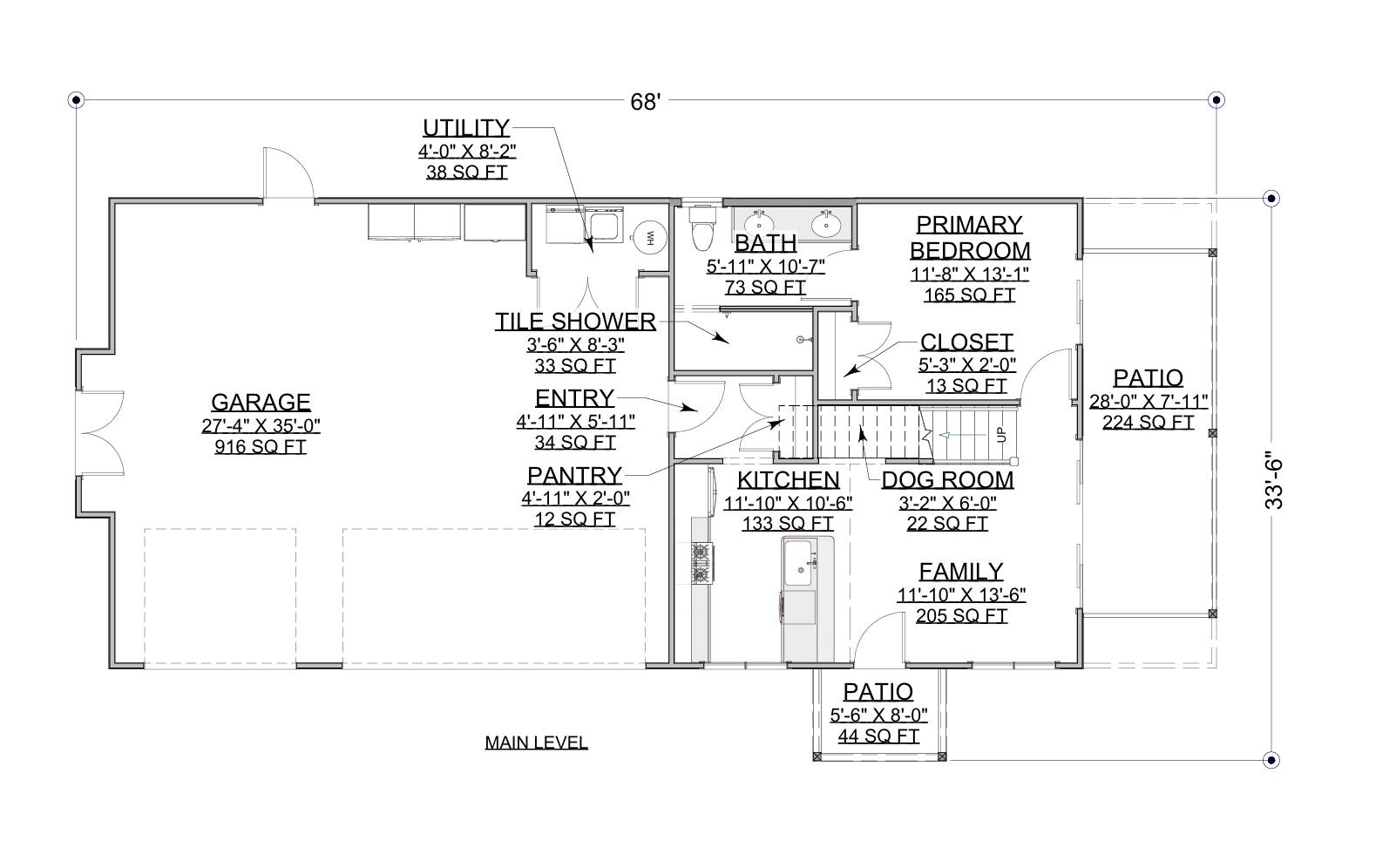
Floor Plans
Click to Zoom In on Floor Plan
 
About House Plan 11902:
This charming 1,499 square feet plan is thoughtfully designed for family living and modern convenience. The open kitchen includes a spacious peninsula for casual dining, a walk-in pantry, and seamless flow to the adjoining family room. The primary suite on the main floor provides privacy and comfort with a large walk-in closet and double vanity bath. Upstairs, two additional bedrooms and a full bath offer flexible space for guests or kids. Everyday functionality shines with a first-floor laundry and mud room to help keep things tidy. Blending warmth, efficiency, and livability, this inviting home is perfect for families looking to enjoy open, connected spaces and lasting comfort.
House Plan Pricing
STEP 1 Select Your Package

PDF Single Build


Digital plans emailed to you in PDF format that allows for printing copies and sharing electronically with contractors, subs, decorators, and more. This package includes a license to build the home one time.

PDF Single Build $1,145
Most recommended package

PDF Unlimited Build


Digital plans with an unlimited build license emailed in PDF format, that allows for printing copies on a home printer or local print shop and sharing with contractors, subs, decorators and more 

PDF Unlimited Build $1,645
Digital plans including unlimited build license

CAD + PDF Unlimited Build


This plan package is created in AutoCAD and delivered in .DWG format. CAD files are intended for use by design professionals, structural engineers, and builders to update plans for local building codes or to make revisions based on specific needs, lot requirements, and budget considerations. A complimentary PDF copy is included with this package for reference. CAD packages are delivered within 1 to 2 business days.
 
This package also comes with a multi-use building license, granting permission to construct the home an unlimited number of times, along with a copyright release for making revisions and printing unlimited copies.
 
For details on the specific CAD program used, please refer to the PLAN DETAILS section located above the floor plan on each plan page.

CAD + PDF Unlimited Build $2,145
2D electronic editable computer files
STEP 2 Need To Reverse This Plan?
STEP 3 CHOOSE YOUR FOUNDATION
STEP 4 OPTIONAL ADD-ONS
Subtotal:
$1145
FREE SHIPPING
 
Plan Details
See All Details
Finished Square Footage
690 Sq. Ft.
Main Level:
809 Sq. Ft.
Upper Level:
1,499 Sq. Ft.
Total:
Room Details
3
Bedrooms:
2
Full Baths:
General House Information
2
Number of Stories:
28' 0"
Width:
60' 0"
Depth:
Single
Dwelling Number:
Unfinished Square Footage
968 Sq. Ft.
Garage:
GARAGE
Side
Garage Location:
3
Garage Size:
Exterior Style
Barndominium
Country
Modern Farmhouse
Collections
Pet Lovers
Split Bedroom
Foundation
Basement
Crawl Space
Daylight Basement
Monolithic Slab
Slab
Stem Wall Slab
Walkout Basement
Framing Information
Stick
Roof Framing:
2x4
Exterior Wall Framing:
Roof Pitch
12/12
Primary:
3/12
Secondary:
Insulation (R)
House And Ceiling Heights
10
First Floor Ceiling:
9
Second Floor Ceiling:
26' 6"
Maximum House Height:
Key Features
Attached
Double Vanity Sink
Family Room
Front Porch
Front-entry
Laundry 1st Fl
Loft / Balcony
L-Shaped
Primary Bdrm Main Floor
Mud Room
Peninsula / Eating Bar
Split Bedrooms
Storage Space
Suited for corner lot
Walk-in Pantry

Our Guarantees

  • Only the highest quality plans
  • Int’l Residential Code Compliant
  • Full structural details on all plans
  • Best plan price guarantee
  • Free modification Estimates
  • Builder-ready construction drawings
  • Expert advice from leading designers
  •  PDFs NOW!™ plans in minutes
  • 100% satisfaction guarantee
  • Free Home Building Organizer