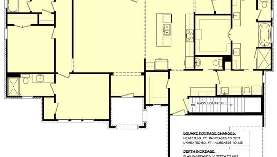
Designed for comfort and flexibility, this home features 2,216 square feet of heated space with 4 bedrooms and 3.5 baths. The great room serves as the heart of the open floor plan, offering an easy connection to the dining area and kitchen for relaxed family living. The kitchen is well-equipped with an island, peninsula eating bar, and walk-in pantry, making meal prep and hosting effortless. The main-floor primary bedroom provides a private retreat with a walk-in closet and a spacious bath with a separate tub and shower. Additional bedrooms are positioned to maintain privacy while remaining accessible. Covered front and rear porches, along with an outdoor kitchen, create inviting outdoor spaces for gathering and unwinding. This thoughtfully designed home blends everyday practicality with warm, welcoming spaces made for lasting enjoyment.