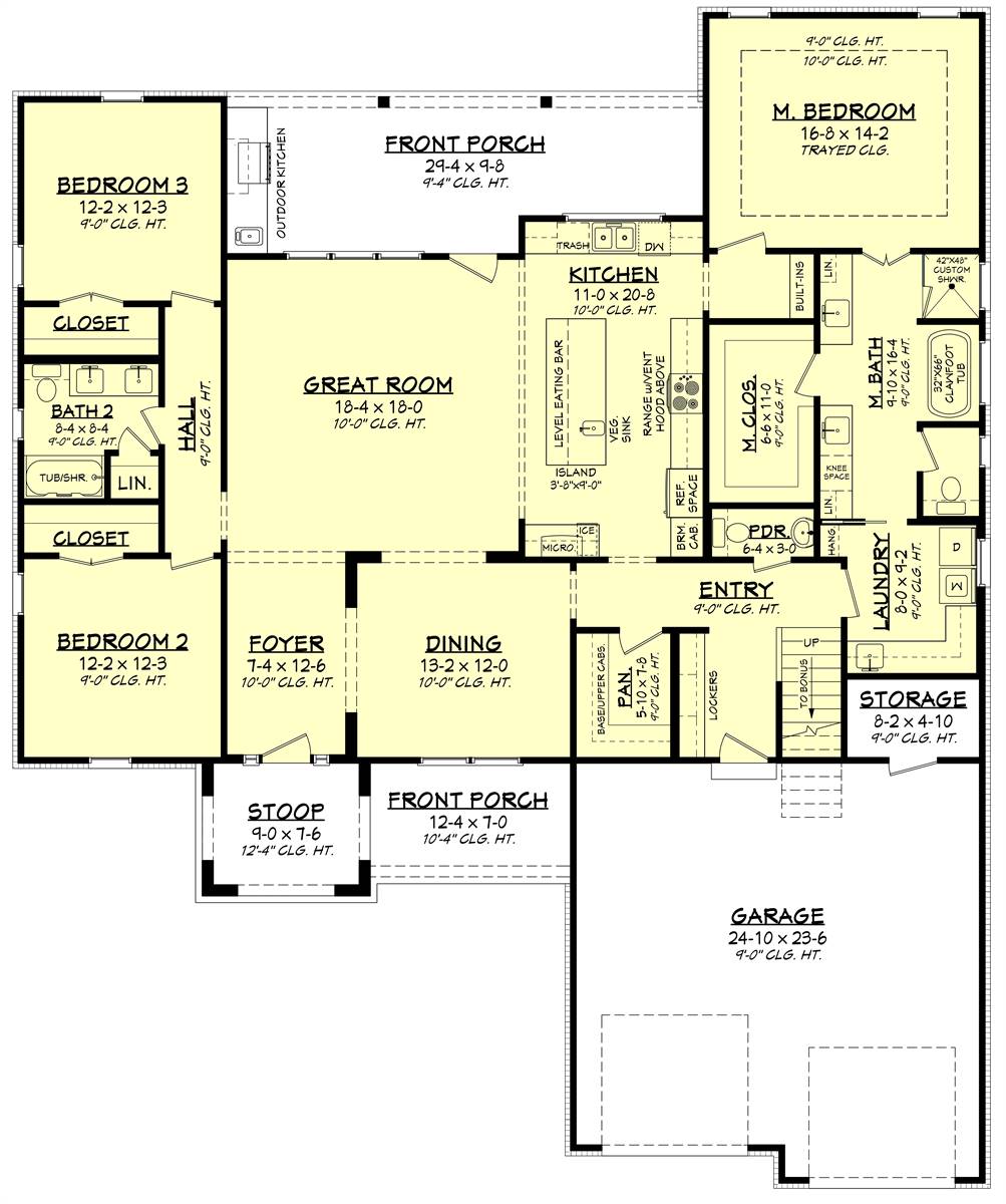
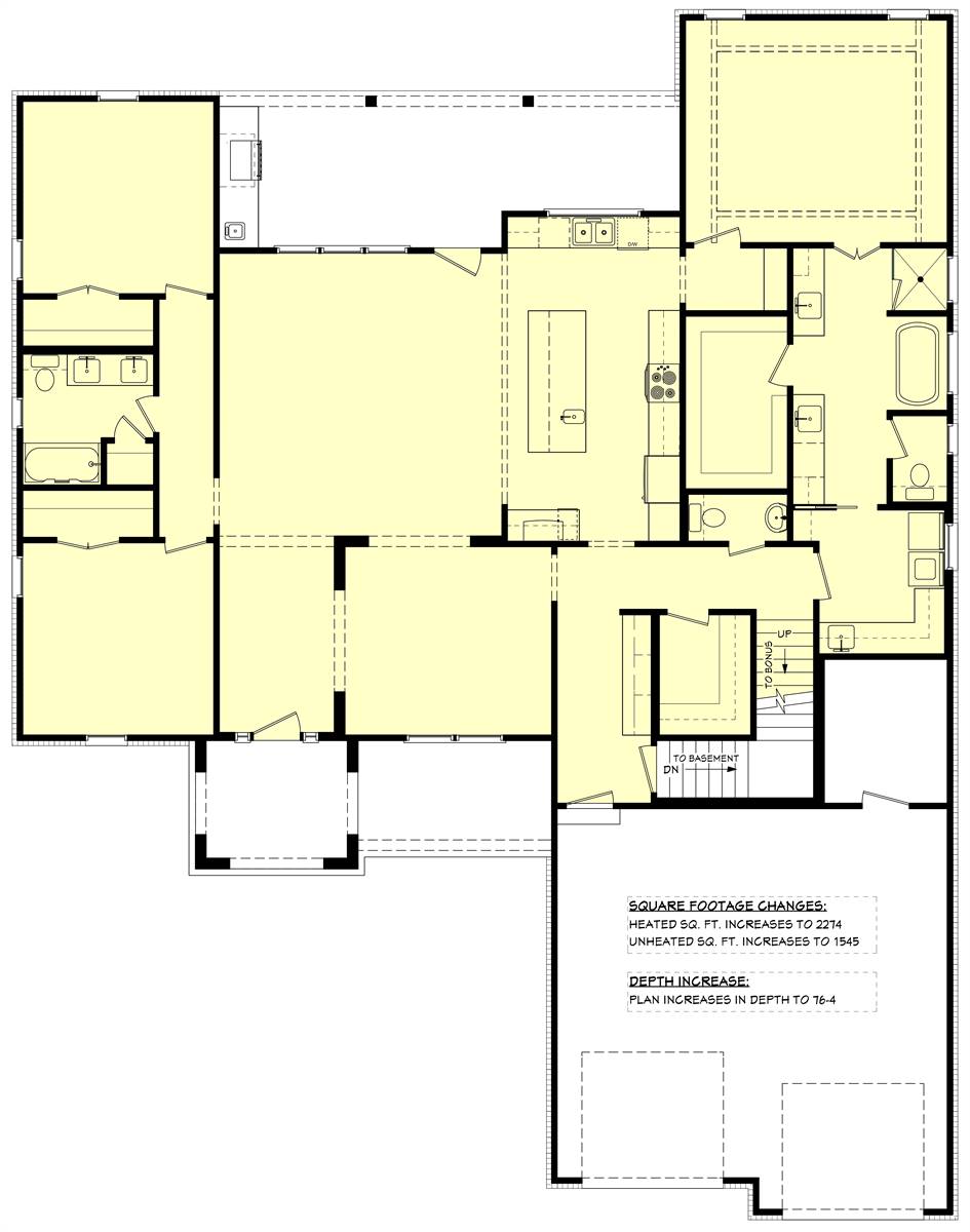
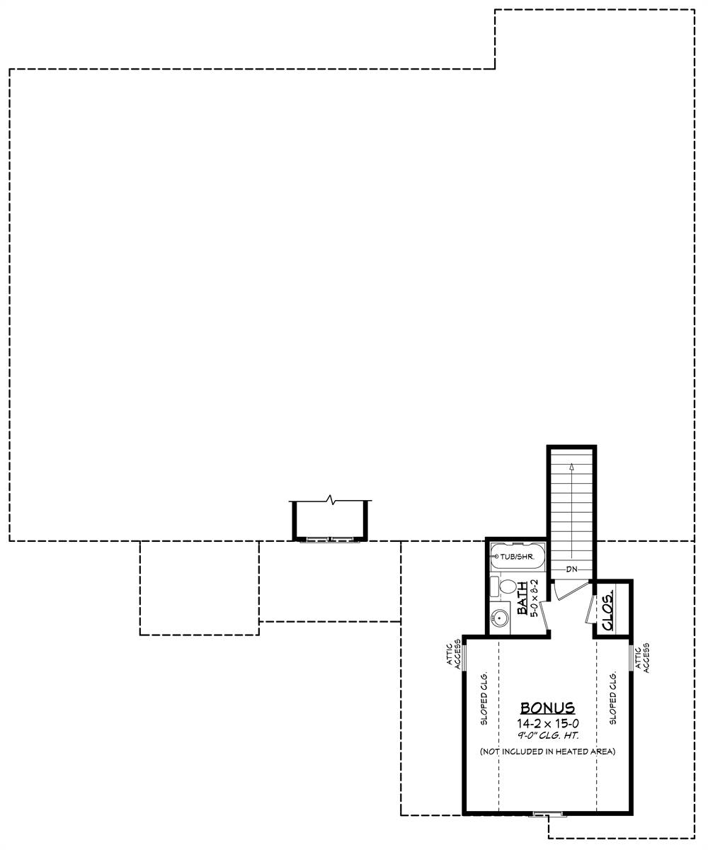
With 2,241 square feet of heated space, this home blends openness with well-defined private areas across 3 bedrooms and 2.5 baths. The great room anchors the open floor plan and flows naturally into the dining area and kitchen for comfortable family living. The kitchen is designed with a U-shaped layout, island, peninsula eating bar, and walk-in pantry to support both daily routines and entertaining. The main-floor primary bedroom serves as a quiet retreat with a walk-in closet and a well-appointed bath featuring a separate tub and shower. Split secondary bedrooms offer privacy while remaining easily accessible. Covered front and rear porches and an outdoor kitchen create inviting spaces to enjoy time outdoors. With bonus room access and thoughtful storage throughout, this home delivers flexibility and everyday livability in a warm, welcoming layout.
With 2,241 square feet of heated space, this home blends openness with well-defined private areas across 3 bedrooms and 2.5 baths. The great room anchors the open floor plan and flows naturally into the dining area and kitchen for comfortable family living. The kitchen is designed with a U-shaped layout, island, peninsula eating bar, and walk-in pantry to support both daily routines and entertaining. The main-floor primary bedroom serves as a quiet retreat with a walk-in closet and a well-appointed bath featuring a separate tub and shower. Split secondary bedrooms offer privacy while remaining easily accessible. Covered front and rear porches and an outdoor kitchen create inviting spaces to enjoy time outdoors. With bonus room access and thoughtful storage throughout, this home delivers flexibility and everyday livability in a warm, welcoming layout.