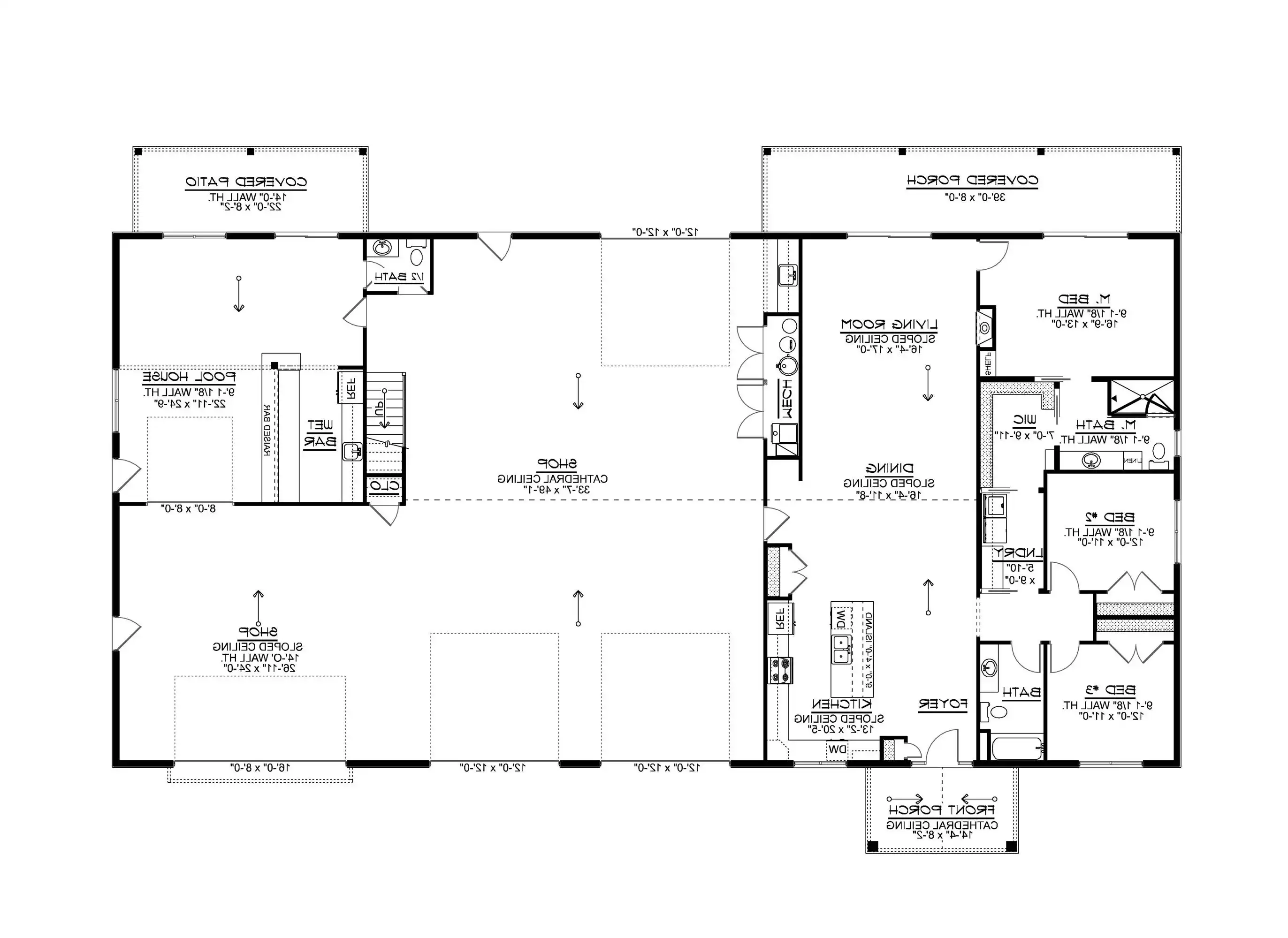
With 1,881 square feet of heated living space, this thoughtfully designed home delivers 3 bedrooms and 2.5 bathrooms in a functional and inviting layout. The great room anchors the open floor plan and flows easily into the kitchen and dining areas. The kitchen is well equipped with an island, L-shaped counters, pantry, and breakfast nook that make everyday living easy. The main-level primary bedroom offers comfort and privacy with a walk-in closet and convenient access to the laundry area. An upstairs bonus room adds flexibility for storage, work, or recreation. Below, the oversized drive-under garage includes workshop space and room for multiple vehicles or storage needs. Covered porches complete the design with welcoming outdoor spaces that balance function and comfort.
With 1,881 square feet of heated living space, this thoughtfully designed home delivers 3 bedrooms and 2.5 bathrooms in a functional and inviting layout. The great room anchors the open floor plan and flows easily into the kitchen and dining areas. The kitchen is well equipped with an island, L-shaped counters, pantry, and breakfast nook that make everyday living easy. The main-level primary bedroom offers comfort and privacy with a walk-in closet and convenient access to the laundry area. An upstairs bonus room adds flexibility for storage, work, or recreation. Below, the oversized drive-under garage includes workshop space and room for multiple vehicles or storage needs. Covered porches complete the design with welcoming outdoor spaces that balance function and comfort.