20% off ALL House Plans Sitewide
20% off ALL House Plans Sitewide

House Plan: DFD-11914

See All 5 Photos > (photographs may reflect modified homes)
© copyright by designer
SQ FT
4,665
BEDS
5
BATHS
4.5
STORIES
1.5
CARS
2
HOUSE PLANS SALE 
START AT  $1,400.00
For questions and help, live chat, email or call us at 877-895-5299
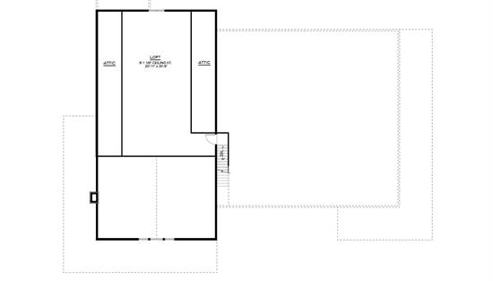
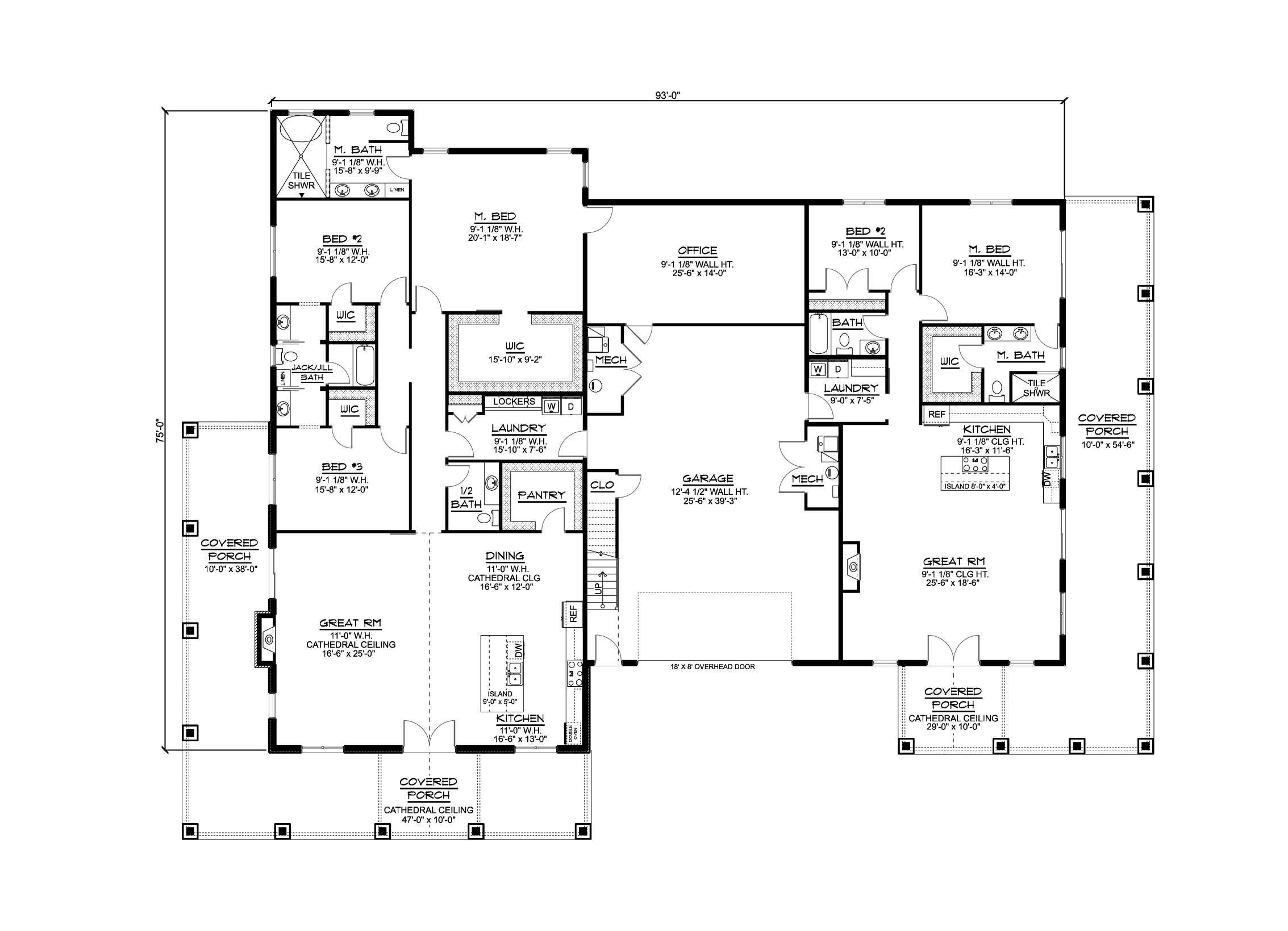
Floor Plans
Click to Zoom In on Floor Plan
 
About House Plan 11914:
House Plan 11914 delivers a bold barndominium layout designed for flexibility, privacy, and real-world functionality. At the heart of the plan sits a large central garage, acting as a connector between two distinct living zones rather than a shared living room. One side of the home features a spacious open-concept great room with cathedral ceilings, a large kitchen with island and pantry, and nearby dining space—perfect for gatherings and everyday living. The opposite wing functions as a self-contained living area with its own kitchen, great room, bedroom, and bathroom, making it ideal for extended family, guests, or rental potential. Multiple primary suites, a dedicated home office, mudroom, and ample storage add to the home’s versatility. With generous covered porches and outdoor living areas, this design offers a modern, flexible solution for multi-family or multi-generational households.
House Plan Pricing
STEP 1 Select Your Package

PDF Single Build


Digital plans emailed to you in PDF format that allows for printing copies and sharing electronically with contractors, subs, decorators, and more. This package includes a license to build the home one time.

PDF Single Build $1,750
Most recommended package

5 Printed Sets + PDF


Includes 5 physical printed blueprint sets, shipped free via UPS within the U.S. Printed sets ship within 1 business day and are delivered within 3 – 5 business days. A complimentary PDF plan set is also emailed within 1 business day for easy sharing and local printing. These plans may be used to construct one home.

5 Printed Sets + PDF $2,100
5 Printed Sets + PDF

PDF Unlimited Build


Digital plans with an unlimited build license emailed in PDF format, that allows for printing copies on a home printer or local print shop and sharing with contractors, subs, decorators and more 

PDF Unlimited Build $2,350
Digital plans including unlimited build license

CAD + PDF Single Build


This plan package is created in AutoCAD and delivered in .DWG format. CAD files are intended for use by design professionals, structural engineers, and builders to update plans for local building codes or to make revisions based on specific needs, lot requirements, and budget considerations. A complimentary PDF copy is included with this package for reference. CAD packages are delivered within 1 to 2 business days.
 
This package also comes with a copyright release for making revisions and printing unlimited copies.

For details on the specific CAD program used, please refer to the PLAN DETAILS section located above the floor plan on each plan page.

CAD + PDF Single Build $3,300
2D electronic editable computer files

CAD + PDF Unlimited Build


This plan package is created in AutoCAD and delivered in .DWG format. CAD files are intended for use by design professionals, structural engineers, and builders to update plans for local building codes or to make revisions based on specific needs, lot requirements, and budget considerations. A complimentary PDF copy is included with this package for reference. CAD packages are delivered within 1 to 2 business days.
 
This package also comes with a multi-use building license, granting permission to construct the home an unlimited number of times, along with a copyright release for making revisions and printing unlimited copies.
 
For details on the specific CAD program used, please refer to the PLAN DETAILS section located above the floor plan on each plan page.

CAD + PDF Unlimited Build $3,850
2D electronic editable computer files
STEP 2 Need To Reverse This Plan?
STEP 3 CHOOSE YOUR FOUNDATION
STEP 4 OPTIONAL ADD-ONS
Subtotal:
$1750
FREE SHIPPING
 
Plan Details
See All Details
Finished Square Footage
4,665 Sq. Ft.
Main Level:
1,025 Sq. Ft.
Upper Level:
4,665 Sq. Ft.
Total:
Room Details
5
Bedrooms:
4
Full Baths:
1
Half Baths:
General House Information
1.5
Number of Stories:
113' 0"
Width:
85' 0"
Depth:
Multi-Family
Dwelling Number:
Unfinished Square Footage
1147 Sq. Ft.
Garage:
1705 Sq. Ft.
Porch:
GARAGE
Front
Garage Location:
2
Garage Size:
Exterior Style
Barndominium
Contemporary
Country
Craftsman
Farmhouse
Modern Farmhouse
Ranch
Collections
In-Law Suite
Kitchens
Luxury
Primary Suites
Mountain
Open Floor Plan
Outdoor Living
Foundation
Basement
Crawl Space
Slab
Framing Information
Truss
Roof Framing:
2x6
Exterior Wall Framing:
Roof Pitch
9/12
Primary:
4/12
Secondary:
Insulation (R)
19
Exterior Wall:
36
Ceiling:
House And Ceiling Heights
9
First Floor Ceiling:
8
Second Floor Ceiling:
26' 9"
Maximum House Height:
Key Features
2 Primary Suites
Attached
Covered Front Porch
Double Vanity Sink
Family Style
Fireplace
Foyer
Front-entry
Great Room
Home Office
In-law Suite
Kitchen Island
Laundry 1st Fl
Loft / Balcony
Primary Bdrm Main Floor
Mud Room
Nook / Breakfast Area
Open Floor Plan
Outdoor Living Space
Separate Tub and Shower
Sitting Area
Suited for corner lot
Walk-in Closet
Walk-in Pantry
Wraparound Porch

Our Guarantees

  • Only the highest quality plans
  • Int’l Residential Code Compliant
  • Full structural details on all plans
  • Best plan price guarantee
  • Free modification Estimates
  • Builder-ready construction drawings
  • Expert advice from leading designers
  •  PDFs NOW!™ plans in minutes
  • 100% satisfaction guarantee
  • Free Home Building Organizer