15% off ALL House Plans Sitewide
15% off ALL House Plans Sitewide

House Plan: DFD-11925

See All 6 Photos > (photographs may reflect modified homes)
© copyright by designer
SQ FT
4,471
BEDS
3
BATHS
3.5
STORIES
2
CARS
2
HOUSE PLANS SALE 
START AT  $1,627.75
For questions and help, live chat, email or call us at 877-895-5299
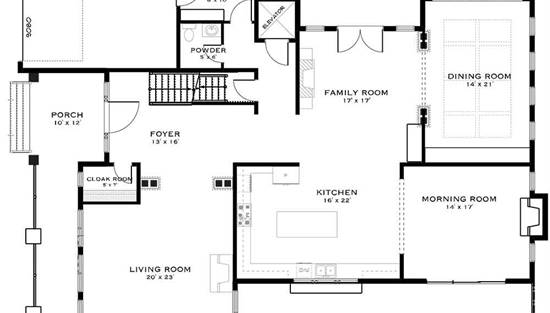
Floor Plans
Click to Zoom In on Floor Plan
 
About House Plan 11925:
Designed with both openness and comfort in mind, this home delivers 4,471 square feet of thoughtfully planned heated living space with 3 bedrooms and 3.5 baths. Vaulted ceilings in the great room enhance the sense of space while maintaining a cozy atmosphere around the fireplace. The kitchen island and breakfast area connect seamlessly to the family room, making the layout ideal for both casual living and entertaining. Upstairs, the primary suite serves as a private retreat with a spacious walk-in closet and a well-appointed bath. Additional features such as a home office, foyer, and mud room support everyday organization. Expansive front and rear porches along with a deck complete the design, offering comfortable outdoor living areas that feel welcoming year-round.
House Plan Pricing
STEP 1 Select Your Package

PDF Single Build


Digital plans emailed to you in PDF format that allows for printing copies and sharing electronically with contractors, subs, decorators, and more. This package includes a license to build the home one time.

PDF Single Build $1,915
Most recommended package

CAD + PDF Single Build


This plan package is created in AutoCAD and delivered in .DWG format. CAD files are intended for use by design professionals, structural engineers, and builders to update plans for local building codes or to make revisions based on specific needs, lot requirements, and budget considerations. A complimentary PDF copy is included with this package for reference. CAD packages are delivered within 1 to 2 business days.
 
This package also comes with a copyright release for making revisions and printing unlimited copies.

For details on the specific CAD program used, please refer to the PLAN DETAILS section located above the floor plan on each plan page.

CAD + PDF Single Build $2,315
2D electronic editable computer files

PDF Unlimited Build


Digital plans with an unlimited build license emailed in PDF format, that allows for printing copies on a home printer or local print shop and sharing with contractors, subs, decorators and more 

PDF Unlimited Build $2,615
Digital plans including unlimited build license

CAD + PDF Unlimited Build


This plan package is created in AutoCAD and delivered in .DWG format. CAD files are intended for use by design professionals, structural engineers, and builders to update plans for local building codes or to make revisions based on specific needs, lot requirements, and budget considerations. A complimentary PDF copy is included with this package for reference. CAD packages are delivered within 1 to 2 business days.
 
This package also comes with a multi-use building license, granting permission to construct the home an unlimited number of times, along with a copyright release for making revisions and printing unlimited copies.
 
For details on the specific CAD program used, please refer to the PLAN DETAILS section located above the floor plan on each plan page.

CAD + PDF Unlimited Build $2,915
2D electronic editable computer files
STEP 2 CHOOSE YOUR FOUNDATION
STEP 3 OPTIONAL ADD-ONS
Subtotal:
$1915
FREE SHIPPING

Note: H3
 
Plan Details
See All Details
Finished Square Footage
2,381 Sq. Ft.
Main Level:
2,090 Sq. Ft.
Upper Level:
2,400 Sq. Ft.
Lower Level:
4,471 Sq. Ft.
Total:
Room Details
3
Bedrooms:
3
Full Baths:
1
Half Baths:
General House Information
2
Number of Stories:
70' 7"
Width:
71' 1"
Depth:
Single
Dwelling Number:
Unfinished Square Footage
541 Sq. Ft.
Garage:
1135 Sq. Ft.
Porch:
915 Sq. Ft.
Front Porch:
220 Sq. Ft.
Rear Porch:
179 Sq. Ft.
Deck:
GARAGE
Front
Garage Location:
2
Garage Size:
Exterior Style
Colonial
European
French Country
Mid-Century Modern
Southern
Traditional
Transitional
Collections
Luxury
Open Floor Plan
Outdoor Living
Foundation
Basement
Crawl Space
Slab
Framing Information
Combination
Roof Framing:
2x6
Exterior Wall Framing:
Roof Pitch
12/12
Primary:
Insulation (R)
22
Exterior Wall:
40
Ceiling:
House And Ceiling Heights
10
First Floor Ceiling:
8
Second Floor Ceiling:
37' 7"
Maximum House Height:
Key Features
Attached
Deck
Double Vanity Sink
Family Room
Fireplace
Foyer
Front Porch
Great Room
Home Office
Kitchen Island
Laundry 1st Fl
Primary Bdrm Upstairs
Mud Room
Nook / Breakfast Area
Open Floor Plan
Rear Porch
Separate Tub and Shower
Side-entry
Suited for corner lot
Vaulted Ceilings
Vaulted Great Room/Living
Walk-in Closet

Our Guarantees

  • Only the highest quality plans
  • Int’l Residential Code Compliant
  • Full structural details on all plans
  • Best plan price guarantee
  • Free modification Estimates
  • Builder-ready construction drawings
  • Expert advice from leading designers
  •  PDFs NOW!™ plans in minutes
  • 100% satisfaction guarantee
  • Free Home Building Organizer

See terms opt out anytime