15% off ALL House Plans Sitewide
15% off ALL House Plans Sitewide

House Plan: DFD-11971

See All 6 Photos > (photographs may reflect modified homes)
© copyright by designer
SQ FT
2,420
BEDS
4
BATHS
2.5
STORIES
1
CARS
3
HOUSE PLANS SALE 
START AT  $1,228.25
For questions and help, live chat, email or call us at 877-895-5299
Floor Plans
Click to Zoom In on Floor Plan
 
About House Plan 11971:
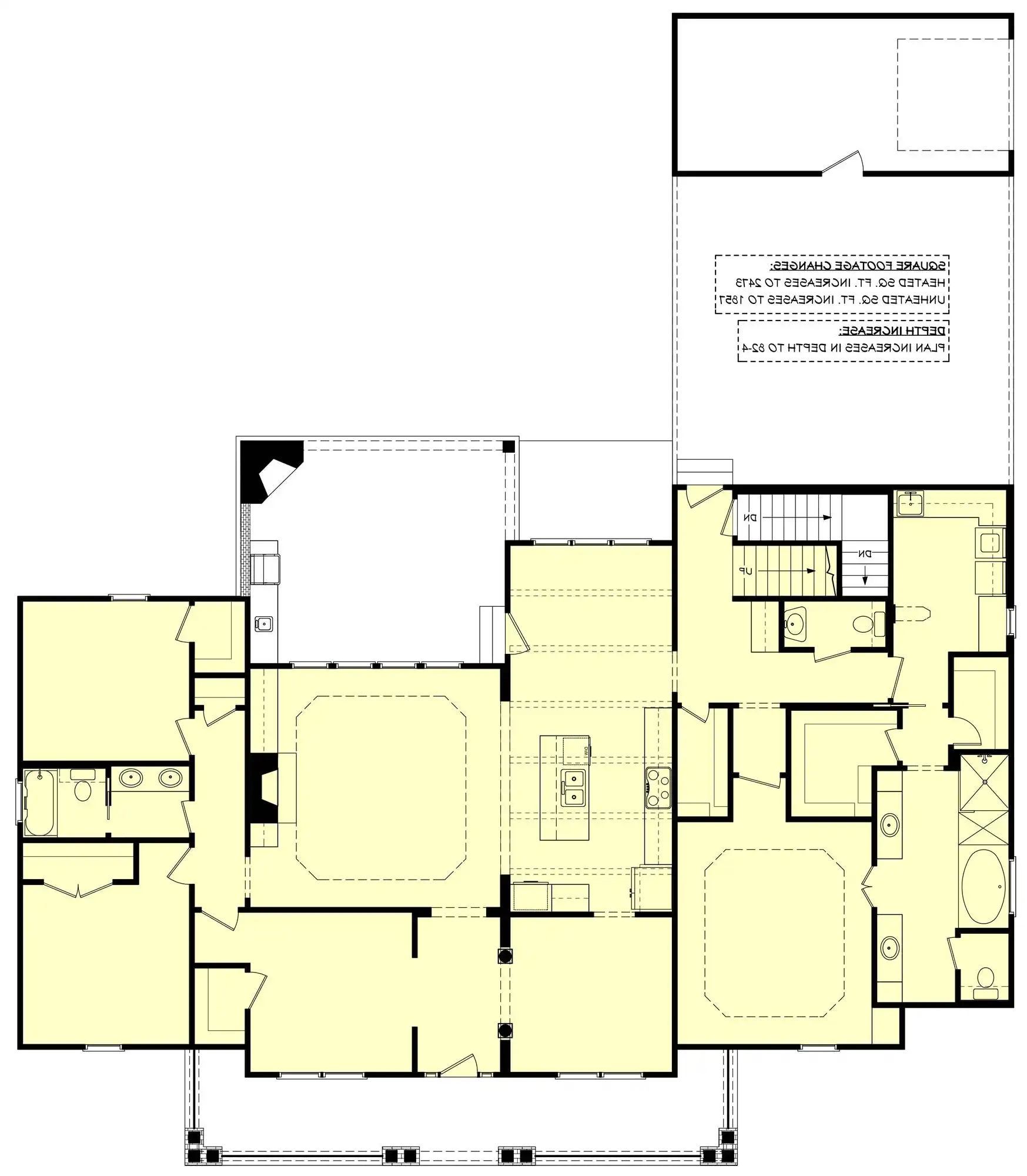
House Plan 11971 brings classic country charm together with functional family living, offering four large bedrooms, including one that easily converts into a study, along with two and a half baths, formal dining, a breakfast nook, and generous porches that frame the home. The great room creates a welcoming centerpiece with raised ceilings, a gas fireplace, built-in entertainment space, and bright rear views, while the spacious kitchen includes a raised bar for seating, double ovens, a large cooktop, and ample storage. The primary suite serves as a relaxing retreat with dual vanities, a private toilet room, a jetted soaking tub, a separate shower, and a large his and hers walk-in closet. A flexible bonus room adds the option for a fifth bedroom or game room, giving homeowners room to grow and adapt as their needs evolve.
House Plan Pricing
STEP 1 Select Your Package

PDF Single Build


Digital plans emailed to you in PDF format that allows for printing copies and sharing electronically with contractors, subs, decorators, and more. This package includes a license to build the home one time.

PDF Single Build $1,445
Most recommended package

5 Printed Sets + PDF


Includes 5 physical printed blueprint sets, shipped free via UPS within the U.S. Printed sets ship within 1 business day and are delivered within 3 – 5 business days. A complimentary PDF plan set is also emailed within 1 business day for easy sharing and local printing. These plans may be used to construct one home.

5 Printed Sets + PDF $1,695
5 Printed Sets + PDF

PDF Unlimited Build


Digital plans with an unlimited build license emailed in PDF format, that allows for printing copies on a home printer or local print shop and sharing with contractors, subs, decorators and more 

PDF Unlimited Build $2,145
Digital plans including unlimited build license

CAD + PDF Unlimited Build


This plan package is created in AutoCAD and delivered in .DWG format. CAD files are intended for use by design professionals, structural engineers, and builders to update plans for local building codes or to make revisions based on specific needs, lot requirements, and budget considerations. A complimentary PDF copy is included with this package for reference. CAD packages are delivered within 1 to 2 business days.
 
This package also comes with a multi-use building license, granting permission to construct the home an unlimited number of times, along with a copyright release for making revisions and printing unlimited copies.
 
For details on the specific CAD program used, please refer to the PLAN DETAILS section located above the floor plan on each plan page.

CAD + PDF Unlimited Build $2,545
2D electronic editable computer files
STEP 2 Need To Reverse This Plan?
STEP 3 CHOOSE YOUR FOUNDATION
STEP 4 OPTIONAL ADD-ONS
Subtotal:
$1445
FREE SHIPPING
 
Plan Details
See All Details
Finished Square Footage
2,420 Sq. Ft.
Main Level:
2,420 Sq. Ft.
Total:
Room Details
4
Bedrooms:
2
Full Baths:
1
Half Baths:
General House Information
1
Number of Stories:
78' 4"
Width:
71' 6"
Depth:
Single
Dwelling Number:
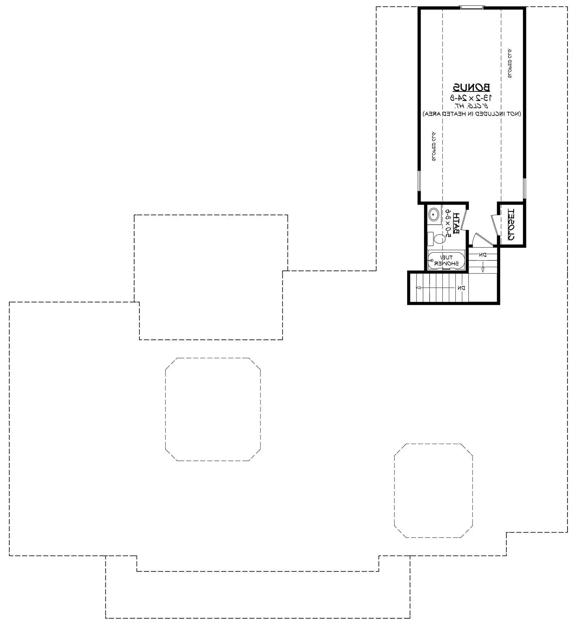
2nd Floor
Bonus Access:
Unfinished Square Footage
551 Sq. Ft.
Garage:
278 Sq. Ft.
Storage:
556 Sq. Ft.
Porch:
250 Sq. Ft.
Front Porch:
306 Sq. Ft.
Rear Porch:
440 Sq. Ft.
Bonus Room:
GARAGE
Rear
Garage Location:
3
Garage Size:
Exterior Style
Country
Farmhouse
Ranch
Collections
Kitchens
Primary Suites
Open Floor Plan
Outdoor Living
Split Bedroom
Foundation
Basement
Crawl Space
Slab
Framing Information
Stick
Roof Framing:
2x4
Exterior Wall Framing:
Roof Pitch
10/12
Primary:
12/12
Secondary:
Roof Load
40 psf
Live:
Insulation (R)
House And Ceiling Heights
9
First Floor Ceiling:
8
Second Floor Ceiling:
24' 8"
Maximum House Height:
Key Features
Attached
Bonus Room
Carport
Covered Front Porch
Covered Rear Porch
Dining Room
Double Vanity Sink
Fireplace
Foyer
Great Room
His and Hers Primary Closets
Home Office
Kitchen Island
Laundry 1st Fl
L-Shaped
Primary Bdrm Main Floor
Mud Room
Open Floor Plan
Outdoor Kitchen
Peninsula / Eating Bar
Separate Tub and Shower
Side-entry
Split Bedrooms
Storage Space
Walk-in Pantry

Our Guarantees

  • Only the highest quality plans
  • Int’l Residential Code Compliant
  • Full structural details on all plans
  • Best plan price guarantee
  • Free modification Estimates
  • Builder-ready construction drawings
  • Expert advice from leading designers
  •  PDFs NOW!™ plans in minutes
  • 100% satisfaction guarantee
  • Free Home Building Organizer