15% off ALL House Plans Sitewide
15% off ALL House Plans Sitewide

House Plan: DFD-12013

See All 10 Photos > (photographs may reflect modified homes)
© copyright by designer
SQ FT
3,255
BEDS
4
BATHS
4.5
STORIES
1
CARS
3
HOUSE PLANS SALE 
START AT  $1,615.00
For questions and help, live chat, email or call us at 877-895-5299
Floor Plans
Click to Zoom In on Floor Plan
 
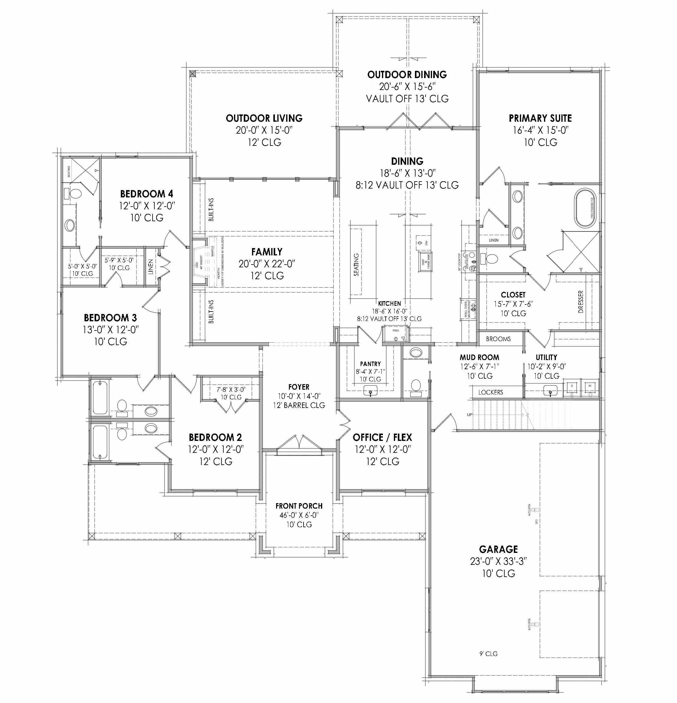
About House Plan 12013:
House Plan 12013 is a stunning modern farmhouse designed for both luxury and livability with 3,255 square feet, four bedrooms, and a front two-car garage. A wide covered porch welcomes you into a spacious foyer, anchored by a private office or flex room for work or quiet retreat. The central living area showcases a light-filled family room with twelve foot ceilings and a fireplace, opening to an impressive L-shaped kitchen with double islands, an oversized walk-in pantry, and seamless access to the mudroom for everyday functionality. The dining space leads directly to a generous outdoor living area, ideal for hosting and unwinding. Three secondary bedrooms with full baths line the left wing, while the right wing features the expansive primary suite with a spa-inspired bath and a massive walk-in closet that connects directly to the laundry room.
House Plan Pricing
STEP 1 Select Your Package

5 Printed Sets + PDF


Includes 5 physical printed blueprint sets, shipped free via UPS within the Continental U.S. Printed sets ship within 1 business day and are delivered within 3 – 5 business days. A complimentary PDF plan set is also emailed within 1 business day for easy sharing and local printing. These plans may be used to construct one home.

5 Printed Sets + PDF $2,250
5 Printed Sets + PDF

PDF Single Build


Digital plans emailed to you in PDF format that allows for printing copies and sharing electronically with contractors, subs, decorators, and more. This package includes a license to build the home one time.

PDF Single Build $1,900
Most recommended package

PDF Unlimited Build


Digital plans with an unlimited build license emailed in PDF format, that allows for printing copies on a home printer or local print shop and sharing with contractors, subs, decorators and more 

PDF Unlimited Build $2,645
Digital plans including unlimited build license

CAD + PDF Unlimited Build


This plan package is created in AutoCAD and delivered in .DWG format. CAD files are intended for use by design professionals, structural engineers, and builders to update plans for local building codes or to make revisions based on specific needs, lot requirements, and budget considerations. A complimentary PDF copy is included with this package for reference. CAD packages are delivered within 1 to 2 business days.
 
This package also comes with a multi-use building license, granting permission to construct the home an unlimited number of times, along with a copyright release for making revisions and printing unlimited copies.
 
For details on the specific CAD program used, please refer to the PLAN DETAILS section located above the floor plan on each plan page.

CAD + PDF Unlimited Build $2,960
2D electronic editable computer files
STEP 2 Need To Reverse This Plan?
STEP 3 CHOOSE YOUR FOUNDATION
STEP 4 OPTIONAL ADD-ONS
Subtotal:
$2250
FREE SHIPPING
 
Plan Details
See All Details
Finished Square Footage
3,255 Sq. Ft.
Main Level:
3,255 Sq. Ft.
Total:
Room Details
4
Bedrooms:
4
Full Baths:
1
Half Baths:
General House Information
1
Number of Stories:
74' 9"
Width:
92' 8"
Depth:
Single
Dwelling Number:
1st Floor
Bonus Access:
Unfinished Square Footage
825 Sq. Ft.
Garage:
1005 Sq. Ft.
Porch:
400 Sq. Ft.
Front Porch:
605 Sq. Ft.
Rear Porch:
565 Sq. Ft.
Bonus Room:
GARAGE
Side
Garage Location:
3
Garage Size:
Exterior Style
Country
Farmhouse
Modern Farmhouse
Ranch
Transitional
Collections
Kitchens
Primary Suites
Open Floor Plan
Outdoor Living
Split Bedroom
Foundation
Basement
Crawlspace
Monolithic Slab
Walkout Basement
Roof Pitch
9
Primary:
3
Secondary:
Insulation (R)
Per IRC Climate Zones
House And Ceiling Heights
10
First Floor Ceiling:
29' 8"
Maximum House Height:
Key Features
Arches
Attached
Bonus Room
Covered Front Porch
Covered Rear Porch
Dining Room
Double Vanity Sink
Family Room
Fireplace
Foyer
Home Office
Kitchen Island
Laundry 1st Fl
Primary Bdrm Main Floor
Mud Room
Open Floor Plan
Outdoor Living Space
Separate Tub and Shower
Split Bedrooms
Suited for sloping lot
Suited for view lot
Unfinished Space
U-Shaped
Vaulted Ceilings
Vaulted Kitchen
Walk-in Closet
Walk-in Pantry

Our Guarantees

  • Only the highest quality plans
  • Int’l Residential Code Compliant
  • Full structural details on all plans
  • Best plan price guarantee
  • Free modification Estimates
  • Builder-ready construction drawings
  • Expert advice from leading designers
  •  PDFs NOW!™ plans in minutes
  • 100% satisfaction guarantee
  • Free Home Building Organizer