15% off ALL House Plans Sitewide
15% off ALL House Plans Sitewide

House Plan: DFD-12014

See All 18 Photos > (photographs may reflect modified homes)
© copyright by designer
SQ FT
4,944
BEDS
4
BATHS
4.5
STORIES
1
CARS
4
HOUSE PLANS SALE 
START AT  $1,980.50
For questions and help, live chat, email or call us at 877-895-5299
Floor Plans
Click to Zoom In on Floor Plan
 
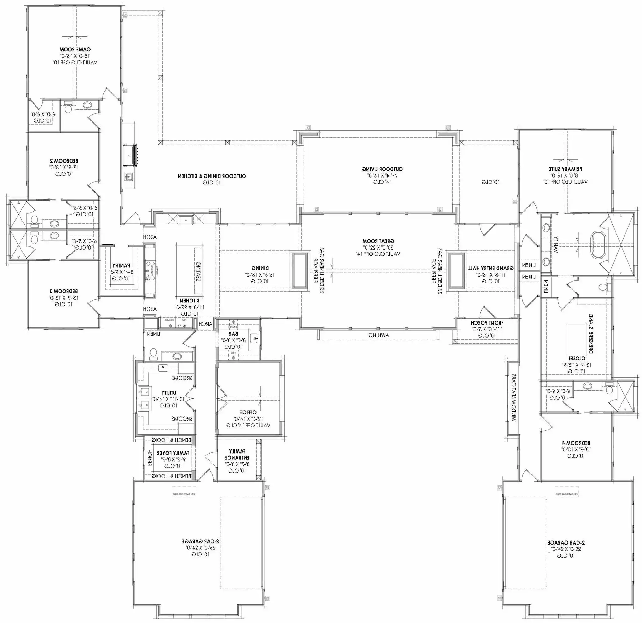
About House Plan 12014:
House Plan 12014 offers a refined one story modern design built around a serene courtyard and a split 4 car garage, with two garage bays on each side for a balanced and functional layout. Guests step from the welcoming front porch into a grand entry hall that flows into a vaulted great room highlighted by two double-sided fireplaces, creating striking focal points on both sides of the space. The open floor plan includes an expansive outdoor living area, a formal dining room, and a showstopping L-shaped kitchen with a generous central island, oversized pantry, and a dedicated bar room. The right wing provides a family entrance tucked away from the main living areas, a large utility room, and a private office, along with a game room with a half bath and two secondary bedrooms with full baths. The left wing is reserved for the luxurious primary suite with vaulted ceilings and a spa-style ensuite, plus a fourth bedroom with a private bathroom.
House Plan Pricing
STEP 1 Select Your Package

PDF Single Build


Digital plans emailed to you in PDF format that allows for printing copies and sharing electronically with contractors, subs, decorators, and more. This package includes a license to build the home one time.

PDF Single Build $2,330
Most recommended package

5 Printed Sets + PDF


Includes 5 physical printed blueprint sets, shipped free via UPS within the U.S. Printed sets ship within 1 business day and are delivered within 3 – 5 business days. A complimentary PDF plan set is also emailed within 1 business day for easy sharing and local printing. These plans may be used to construct one home.

5 Printed Sets + PDF $2,680
5 Printed Sets + PDF

PDF Unlimited Build


Digital plans with an unlimited build license emailed in PDF format, that allows for printing copies on a home printer or local print shop and sharing with contractors, subs, decorators and more 

PDF Unlimited Build $2,965
Digital plans including unlimited build license

CAD + PDF Unlimited Build


This plan package is created in AutoCAD and delivered in .DWG format. CAD files are intended for use by design professionals, structural engineers, and builders to update plans for local building codes or to make revisions based on specific needs, lot requirements, and budget considerations. A complimentary PDF copy is included with this package for reference. CAD packages are delivered within 1 to 2 business days.
 
This package also comes with a multi-use building license, granting permission to construct the home an unlimited number of times, along with a copyright release for making revisions and printing unlimited copies.
 
For details on the specific CAD program used, please refer to the PLAN DETAILS section located above the floor plan on each plan page.

CAD + PDF Unlimited Build $3,385
2D electronic editable computer files
STEP 2 Need To Reverse This Plan?
STEP 3 CHOOSE YOUR FOUNDATION
STEP 4 OPTIONAL ADD-ONS
Subtotal:
$2330
FREE SHIPPING
 
Plan Details
See All Details
Finished Square Footage
4,944 Sq. Ft.
Main Level:
4,944 Sq. Ft.
Total:
Room Details
4
Bedrooms:
4
Full Baths:
2
Half Baths:
General House Information
1
Number of Stories:
123' 4"
Width:
119' 10"
Depth:
Single
Dwelling Number:
Unfinished Square Footage
1311 Sq. Ft.
Garage:
1543 Sq. Ft.
Porch:
62 Sq. Ft.
Front Porch:
1412 Sq. Ft.
Rear Porch:
GARAGE
Side
Garage Location:
4
Garage Size:
Exterior Style
Country
Farmhouse
Modern Farmhouse
Ranch
Scandinavian
Collections
Kitchens
Luxury
Primary Suites
Mountain
Open Floor Plan
Outdoor Living
Split Bedroom
Foundation
Basement
Crawlspace
Monolithic Slab
Walkout Basement
Roof Pitch
10
Primary:
3
Secondary:
Insulation (R)
Per IRC Climate Zones
House And Ceiling Heights
10
First Floor Ceiling:
24' 2"
Maximum House Height:
Key Features
Attached
Courtyard
Courtyard/Motorcourt Entry
Covered Front Porch
Covered Rear Porch
Dining Room
Double Vanity Sink
Fireplace
Foyer
Great Room
Home Office
Kitchen Island
Laundry 1st Fl
Primary Bdrm Main Floor
Mud Room
Open Floor Plan
Outdoor Kitchen
Outdoor Living Space
Separate Tub and Shower
Split Bedrooms
Suited for corner lot
Suited for view lot
U-Shaped
Vaulted Ceilings
Vaulted Great Room/Living
Vaulted Primary
Walk-in Closet
Walk-in Pantry
Wraparound Porch

Our Guarantees

  • Only the highest quality plans
  • Int’l Residential Code Compliant
  • Full structural details on all plans
  • Best plan price guarantee
  • Free modification Estimates
  • Builder-ready construction drawings
  • Expert advice from leading designers
  •  PDFs NOW!™ plans in minutes
  • 100% satisfaction guarantee
  • Free Home Building Organizer