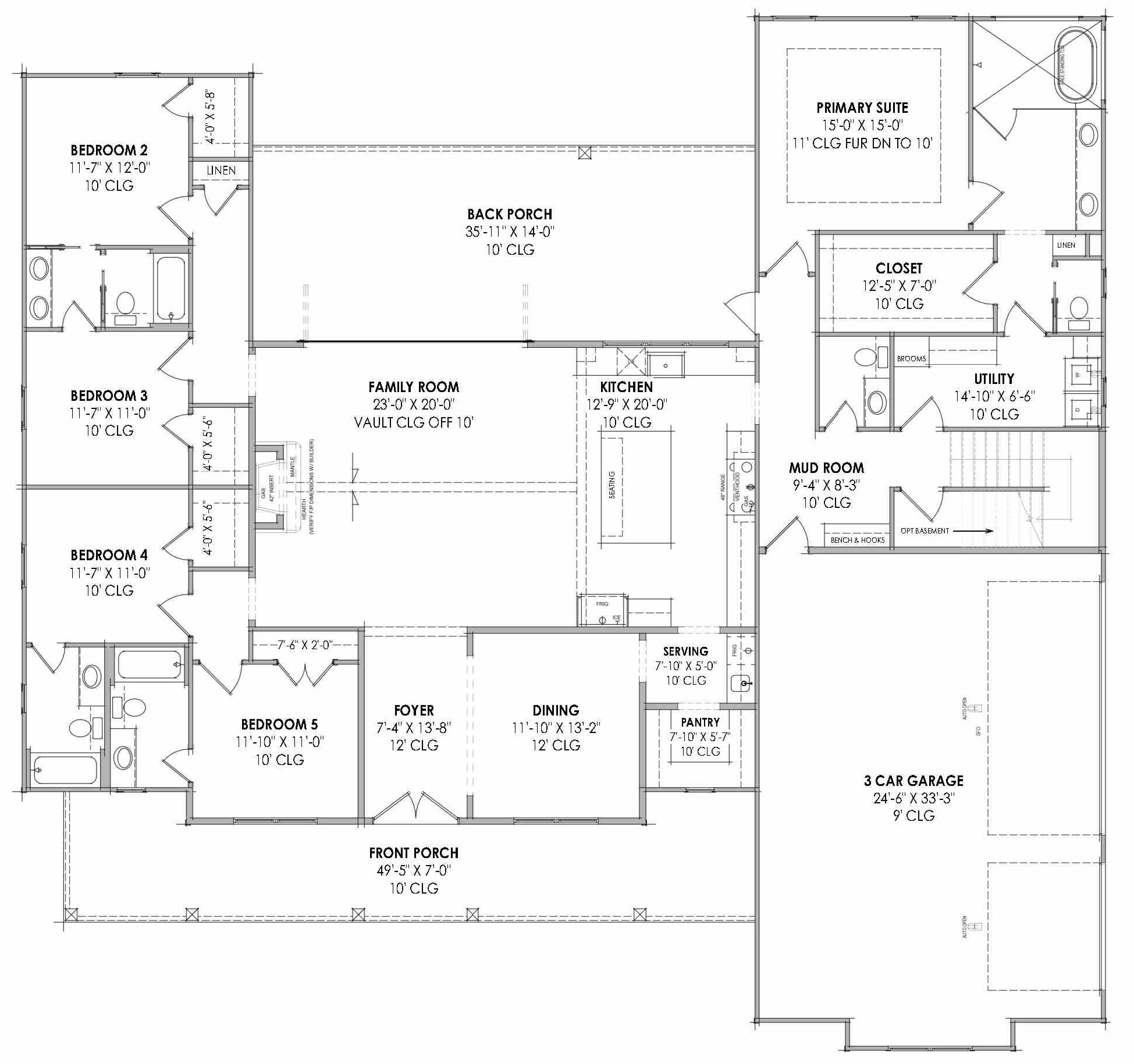
With 3,052 heated square feet, this home offers five bedrooms and an open layout designed for family comfort and practical living. The U-shaped kitchen features a butler’s pantry, kitchen island, and walk-in pantry, connecting directly to the vaulted great room for bright, airy family gatherings. The main-floor primary suite includes a walk-in closet, double vanity sink, and separate tub and shower for a private retreat. Bonus spaces, including a dining room, family room, and bonus room, accommodate flexible living needs, while a mud room and first-floor laundry add convenience. The covered front porch, rear porch, and outdoor living space make enjoying the yard effortless, especially on corner, view, or sloping lots. With a side-entry attached garage and thoughtful storage throughout, this home offers a combination of open, vaulted design and practical comfort. Every element is tailored for warm, family-focused living.