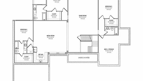
This 5-bedroom home offers 5,310 heated square feet designed for flexible family living across both levels. The kitchen includes a butler’s pantry, island, and peninsula, creating a seamless connection to the dining room and vaulted great room. The main-floor primary suite features a vaulted ceiling, walk-in closet, and a relaxing bath with a separate tub and shower. The lower level adds a spacious rec room and storage areas that can adapt to changing needs over time. A front-entry garage with courtyard-style access enhances convenience while keeping the exterior tidy and accessible. Vaulted ceilings and an open floor plan help natural light fill the central living areas. Both covered porches and a rear deck invite outdoor living throughout the year. Blending large, open spaces with cozy private rooms, this home offers comfort and versatility for everyday living.
This 5-bedroom home offers 5,310 heated square feet designed for flexible family living across both levels. The kitchen includes a butler’s pantry, island, and peninsula, creating a seamless connection to the dining room and vaulted great room. The main-floor primary suite features a vaulted ceiling, walk-in closet, and a relaxing bath with a separate tub and shower. The lower level adds a spacious rec room and storage areas that can adapt to changing needs over time. A front-entry garage with courtyard-style access enhances convenience while keeping the exterior tidy and accessible. Vaulted ceilings and an open floor plan help natural light fill the central living areas. Both covered porches and a rear deck invite outdoor living throughout the year. Blending large, open spaces with cozy private rooms, this home offers comfort and versatility for everyday living.