House Plan: DFD-12031

See All 8 Photos > (photographs may reflect modified homes)
© copyright by designer
SQ FT
2,033
BEDS
4
BATHS
2.5
STORIES
2
CARS
2
PLANS FROM $1,445
For questions and help, live chat, email or call us at 877-895-5299
Floor Plans
Click to Zoom In on Floor Plan
 
About House Plan 12031:
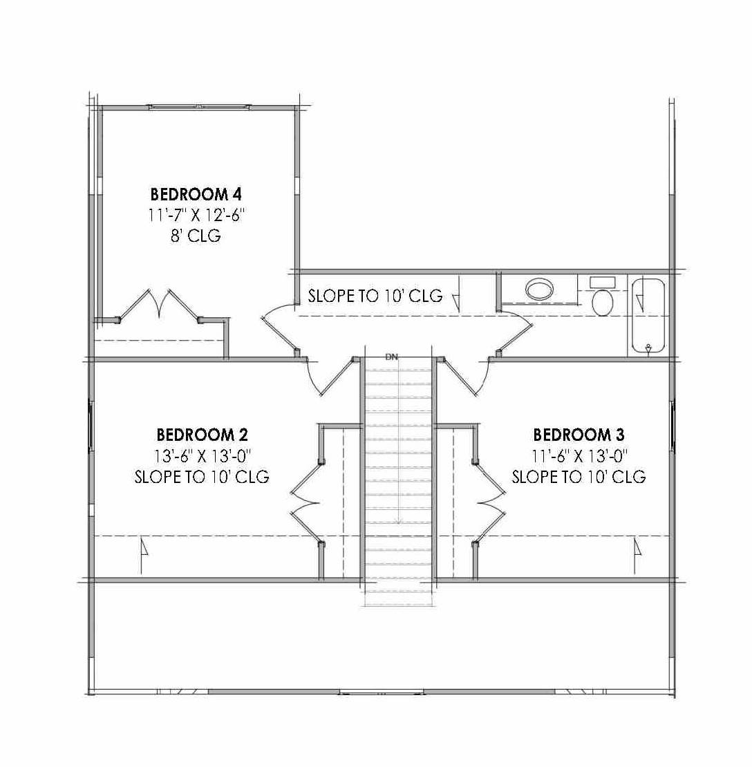
With 2,033 heated square feet, this 4-bedroom home offers an inviting floor plan that blends openness with smart functionality. The kitchen features a U-shaped layout with a pantry and island, connecting naturally to the family room for easy entertaining. A dedicated dining room adds space for meals and celebrations, while the first-floor mud room and laundry room support an efficient, organized home. The primary bedroom sits on the main floor with a spacious walk-in closet and a relaxing bathroom with a double vanity. Three additional bedrooms upstairs give flexibility for family, guests, or hobbies. Both the covered front porch and covered rear porch offer welcoming outdoor retreats. With its balanced layout and comfortable flow, this home creates a peaceful place to settle into each day.
House Plan Pricing
STEP 1 Select Your Package

PDF Single Build


Digital plans emailed to you in PDF format that allows for printing copies and sharing electronically with contractors, subs, decorators, and more. This package includes a license to build the home one time.

PDF Single Build $1,445
Most recommended package

PDF Unlimited Build


Digital plans with an unlimited build license emailed in PDF format, that allows for printing copies on a home printer or local print shop and sharing with contractors, subs, decorators and more 

PDF Unlimited Build $2,165
Digital plans including unlimited build license

CAD + PDF Unlimited Build


CAD files are a complete set of construction drawings delivered electronically. They can be used for any type of modification—including major design changes and engineering—and include a release granting permission to modify the plan. Most CAD plan orders are emailed the same or next business day.
 
This package also comes with a PDF set of plans and a multi-use building license, granting permission to construct the home an unlimited number of times, along with a copyright release for making modifications and printing unlimited copies.
 
CAD files are provided in .dwg format. For details on the specific CAD program used, please refer to the PLAN DETAILS section located above the floor plan on each plan’s page.

CAD + PDF Unlimited Build $2,480
2D electronic editable computer files
STEP 2 Need To Reverse This Plan?
STEP 3 CHOOSE YOUR FOUNDATION
STEP 4 OPTIONAL ADD-ONS
Subtotal:
$1445
FREE SHIPPING
 
Plan Details
See All Details
Finished Square Footage
1,305 Sq. Ft.
Main Level:
728 Sq. Ft.
Upper Level:
2,033 Sq. Ft.
Total:
Room Details
4
Bedrooms:
2
Full Baths:
1
Half Baths:
General House Information
2
Number of Stories:
42' 6"
Width:
67' 2"
Depth:
Single
Dwelling Number:
Unfinished Square Footage
551 Sq. Ft.
Garage:
444 Sq. Ft.
Porch:
281 Sq. Ft.
Front Porch:
163 Sq. Ft.
Rear Porch:
GARAGE
Rear
Garage Location:
2
Garage Size:
Exterior Style
Cottage
Craftsman
Farmhouse
Modern Farmhouse
Collections
Affordable
Builders
First Home
Mountain
Open Floor Plan
Split Bedroom
Foundation
Basement
Crawlspace
Monolithic Slab
Walkout Basement
Framing Information
Stick
Roof Framing:
2x4
Exterior Wall Framing:
Roof Pitch
10/12
Primary:
12/12
Secondary:
Insulation (R)
Per IRC Climate Zones
House And Ceiling Heights
10
First Floor Ceiling:
9
Second Floor Ceiling:
28' 3"
Maximum House Height:
Key Features
Attached
Covered Front Porch
Covered Rear Porch
Dining Room
Double Vanity Sink
Family Room
Fireplace
Kitchen Island
Laundry 1st Fl
Primary Bdrm Main Floor
Mud Room
Open Floor Plan
Pantry
Side-entry
Split Bedrooms
Suited for corner lot
Suited for narrow lot
Suited for sloping lot
Suited for view lot
U-Shaped
Walk-in Closet

Our Guarantees

  • Only the highest quality plans
  • Int’l Residential Code Compliant
  • Full structural details on all plans
  • Best plan price guarantee
  • Free modification Estimates
  • Builder-ready construction drawings
  • Expert advice from leading designers
  •  PDFs NOW!™ plans in minutes
  • 100% satisfaction guarantee
  • Free Home Building Organizer