15% off ALL House Plans Sitewide
15% off ALL House Plans Sitewide

House Plan: DFD-12037

See All 11 Photos > (photographs may reflect modified homes)
© copyright by designer
SQ FT
3,392
BEDS
4
BATHS
4.5
STORIES
1
CARS
3
HOUSE PLANS SALE 
START AT  $1,615.00
For questions and help, live chat, email or call us at 877-895-5299
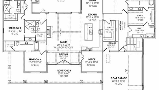
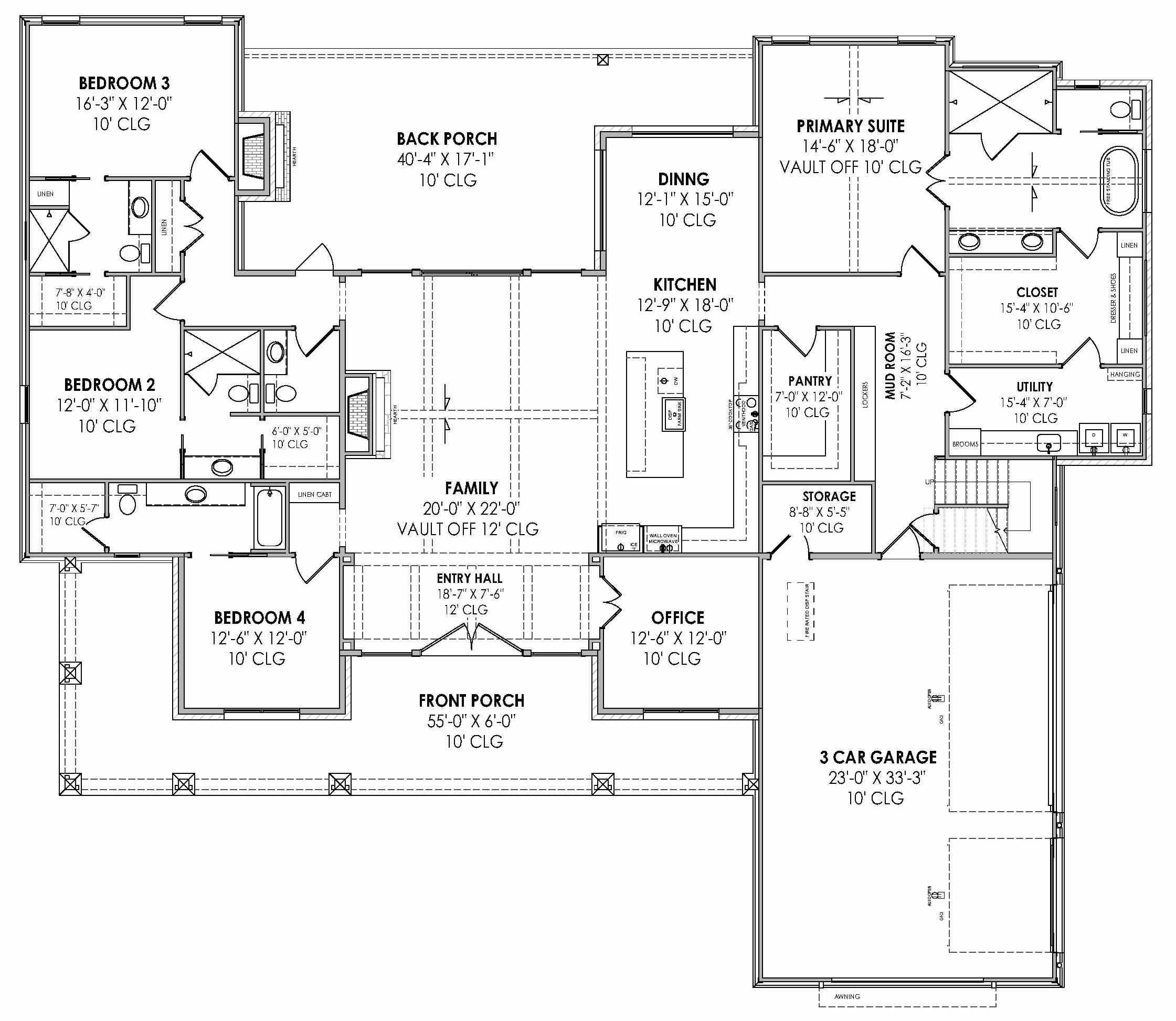
Floor Plans
Click to Zoom In on Floor Plan
 
About House Plan 12037:
This home offers 3,392 square feet of heated living space arranged around an open floor plan that feels bright and comfortable. A vaulted great room creates an airy central gathering area that supports both relaxation and entertaining. The kitchen’s island, peninsula eating bar, walk-in pantry, and L-shaped layout make cooking and hosting feel effortless. The primary bedroom on the main floor features a walk-in closet along with a double vanity bath that includes a separate tub and shower for added convenience. Three additional bedrooms give everyone room to spread out, while the bonus room offers a flexible spot for work, play, or quiet downtime. A mud room, home office, and first-floor laundry help keep daily routines organized. With covered porches that encourage spending time outdoors, this home provides a warm and comfortable setting for everyday life.
House Plan Pricing
STEP 1 Select Your Package

PDF Single Build


Digital plans emailed to you in PDF format that allows for printing copies and sharing electronically with contractors, subs, decorators, and more. This package includes a license to build the home one time.

PDF Single Build $1,900
Most recommended package

5 Printed Sets + PDF


Includes 5 physical printed blueprint sets, shipped free via UPS within the U.S. Printed sets ship within 1 business day and are delivered within 3 – 5 business days. A complimentary PDF plan set is also emailed within 1 business day for easy sharing and local printing. These plans may be used to construct one home.

5 Printed Sets + PDF $2,250
5 Printed Sets + PDF

PDF Unlimited Build


Digital plans with an unlimited build license emailed in PDF format, that allows for printing copies on a home printer or local print shop and sharing with contractors, subs, decorators and more 

PDF Unlimited Build $2,645
Digital plans including unlimited build license

CAD + PDF Unlimited Build


This plan package is created in AutoCAD and delivered in .DWG format. CAD files are intended for use by design professionals, structural engineers, and builders to update plans for local building codes or to make revisions based on specific needs, lot requirements, and budget considerations. A complimentary PDF copy is included with this package for reference. CAD packages are delivered within 1 to 2 business days.
 
This package also comes with a multi-use building license, granting permission to construct the home an unlimited number of times, along with a copyright release for making revisions and printing unlimited copies.
 
For details on the specific CAD program used, please refer to the PLAN DETAILS section located above the floor plan on each plan page.

CAD + PDF Unlimited Build $2,960
2D electronic editable computer files
STEP 2 Need To Reverse This Plan?
STEP 3 CHOOSE YOUR FOUNDATION
STEP 4 OPTIONAL ADD-ONS
Subtotal:
$1900
FREE SHIPPING
 
Plan Details
See All Details
Finished Square Footage
3,392 Sq. Ft.
Main Level:
3,392 Sq. Ft.
Total:
Room Details
4
Bedrooms:
4
Full Baths:
1
Half Baths:
General House Information
1
Number of Stories:
89' 9"
Width:
77' 1"
Depth:
Single
Dwelling Number:
1st Floor
Bonus Access:
Unfinished Square Footage
856 Sq. Ft.
Garage:
1088 Sq. Ft.
Porch:
540 Sq. Ft.
Front Porch:
548 Sq. Ft.
Rear Porch:
597 Sq. Ft.
Bonus Room:
GARAGE
Front
Garage Location:
3
Garage Size:
Exterior Style
Country
Craftsman
Farmhouse
Modern Farmhouse
Collections
Builders
Open Floor Plan
Split Bedroom
Foundation
Basement
Crawlspace
Monolithic Slab
Walkout Basement
Framing Information
Stick
Roof Framing:
2x4
Exterior Wall Framing:
Roof Pitch
12/12
Primary:
14/12
Secondary:
Insulation (R)
Per IRC Climate Zones
House And Ceiling Heights
10
First Floor Ceiling:
30' 2"
Maximum House Height:
Key Features
Attached
Bonus Room
Covered Front Porch
Covered Rear Porch
Dining Room
Double Vanity Sink
Family Room
Fireplace
Foyer
Home Office
Kitchen Island
Laundry 1st Fl
L-Shaped
Primary Bdrm Main Floor
Mud Room
Open Floor Plan
Outdoor Living Space
Peninsula / Eating Bar
Separate Tub and Shower
Side-entry
Split Bedrooms
Suited for corner lot
Suited for sloping lot
Suited for view lot
Unfinished Space
Vaulted Ceilings
Vaulted Great Room/Living
Vaulted Primary
Walk-in Closet
Walk-in Pantry

Our Guarantees

  • Only the highest quality plans
  • Int’l Residential Code Compliant
  • Full structural details on all plans
  • Best plan price guarantee
  • Free modification Estimates
  • Builder-ready construction drawings
  • Expert advice from leading designers
  •  PDFs NOW!™ plans in minutes
  • 100% satisfaction guarantee
  • Free Home Building Organizer