15% off ALL House Plans Sitewide
15% off ALL House Plans Sitewide

House Plan: DFD-12038

See All 8 Photos > (photographs may reflect modified homes)
© copyright by designer
SQ FT
3,164
BEDS
4
BATHS
3.5
STORIES
2
CARS
2
HOUSE PLANS SALE 
START AT  $1,615.00
For questions and help, live chat, email or call us at 877-895-5299
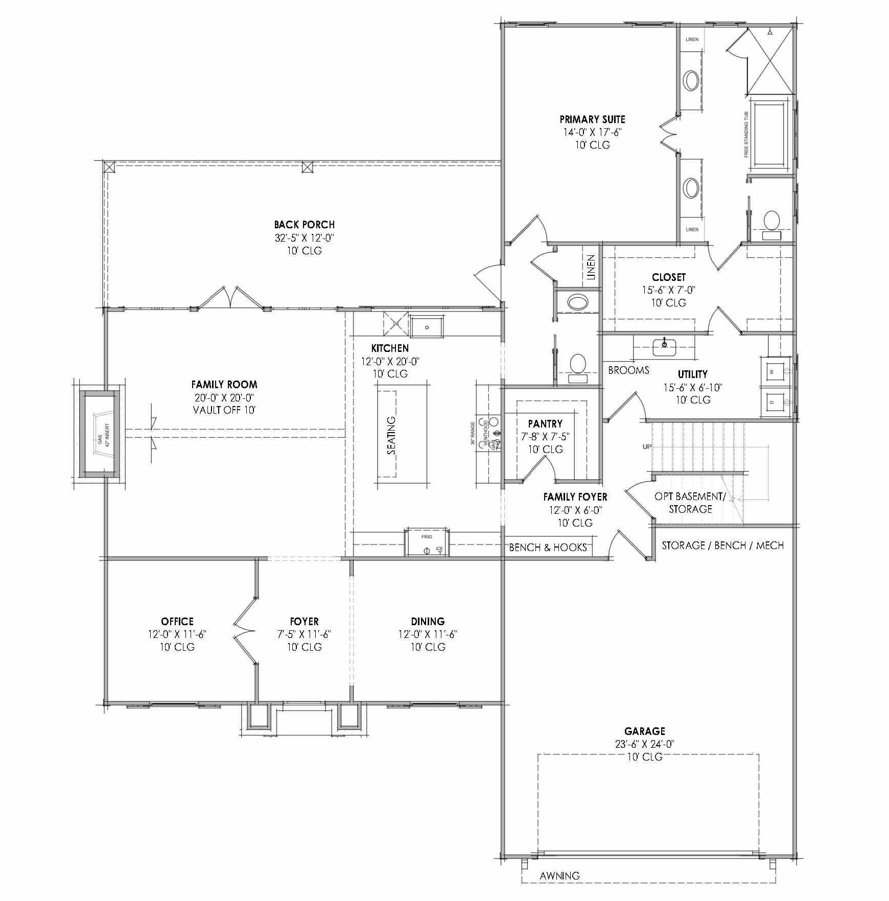
Floor Plans
Click to Zoom In on Floor Plan
 
About House Plan 12038:
This home features 3,164 square feet of heated living area arranged around bright, connected gathering spaces. The vaulted great room brings openness and height, creating a natural hub for spending time together. A well-planned kitchen includes a U-shaped configuration, island, peninsula eating bar, and walk-in pantry that support both cooking and hosting. The primary bedroom on the main floor offers a peaceful retreat with a walk-in closet and a bath that includes a double vanity sink plus a separate tub and shower. Three bedrooms on the upper floor, along with a loft, give everyone room to settle into their own routines. A rec room expands the home’s possibilities, whether for quiet downtime or lively fun. With covered porches that invite you outdoors, this home offers a warm and comfortable place to enjoy everyday living.
House Plan Pricing
STEP 1 Select Your Package

PDF Single Build


Digital plans emailed to you in PDF format that allows for printing copies and sharing electronically with contractors, subs, decorators, and more. This package includes a license to build the home one time.

PDF Single Build $1,900
Most recommended package

5 Printed Sets + PDF


Includes 5 physical printed blueprint sets, shipped free via UPS within the U.S. Printed sets ship within 1 business day and are delivered within 3 – 5 business days. A complimentary PDF plan set is also emailed within 1 business day for easy sharing and local printing. These plans may be used to construct one home.

5 Printed Sets + PDF $2,250
5 Printed Sets + PDF

PDF Unlimited Build


Digital plans with an unlimited build license emailed in PDF format, that allows for printing copies on a home printer or local print shop and sharing with contractors, subs, decorators and more 

PDF Unlimited Build $2,645
Digital plans including unlimited build license

CAD + PDF Unlimited Build


This plan package is created in AutoCAD and delivered in .DWG format. CAD files are intended for use by design professionals, structural engineers, and builders to update plans for local building codes or to make revisions based on specific needs, lot requirements, and budget considerations. A complimentary PDF copy is included with this package for reference. CAD packages are delivered within 1 to 2 business days.
 
This package also comes with a multi-use building license, granting permission to construct the home an unlimited number of times, along with a copyright release for making revisions and printing unlimited copies.
 
For details on the specific CAD program used, please refer to the PLAN DETAILS section located above the floor plan on each plan page.

CAD + PDF Unlimited Build $2,960
2D electronic editable computer files
STEP 2 Need To Reverse This Plan?
STEP 3 CHOOSE YOUR FOUNDATION
STEP 4 OPTIONAL ADD-ONS
Subtotal:
$1900
FREE SHIPPING
 
Plan Details
See All Details
Finished Square Footage
2,094 Sq. Ft.
Main Level:
1,070 Sq. Ft.
Upper Level:
3,164 Sq. Ft.
Total:
Room Details
4
Bedrooms:
3
Full Baths:
1
Half Baths:
General House Information
2
Number of Stories:
58' 10"
Width:
68' 1"
Depth:
Single
Dwelling Number:
Unfinished Square Footage
612 Sq. Ft.
Garage:
398 Sq. Ft.
Porch:
9 Sq. Ft.
Front Porch:
389 Sq. Ft.
Rear Porch:
GARAGE
Front
Garage Location:
2
Garage Size:
Exterior Style
Farmhouse
French Country
Modern Farmhouse
Transitional
Collections
Open Floor Plan
Outdoor Living
Split Bedroom
Foundation
Basement
Crawlspace
Monolithic Slab
Walkout Basement
Framing Information
Stick
Roof Framing:
2x4
Exterior Wall Framing:
Roof Pitch
16/12
Primary:
8/12
Secondary:
Insulation (R)
Per IRC Climate Zones
House And Ceiling Heights
10
First Floor Ceiling:
9
Second Floor Ceiling:
32' 9"
Maximum House Height:
Key Features
Attached
Covered Front Porch
Covered Rear Porch
Dining Room
Double Vanity Sink
Family Room
Fireplace
Foyer
Front-entry
Home Office
Kitchen Island
Laundry 1st Fl
Loft / Balcony
Primary Bdrm Main Floor
Mud Room
Open Floor Plan
Outdoor Living Space
Peninsula / Eating Bar
Rec Room
Separate Tub and Shower
Split Bedrooms
Suited for corner lot
Suited for narrow lot
Suited for sloping lot
Suited for view lot
U-Shaped
Vaulted Ceilings
Vaulted Great Room/Living
Walk-in Closet
Walk-in Pantry

Our Guarantees

  • Only the highest quality plans
  • Int’l Residential Code Compliant
  • Full structural details on all plans
  • Best plan price guarantee
  • Free modification Estimates
  • Builder-ready construction drawings
  • Expert advice from leading designers
  •  PDFs NOW!™ plans in minutes
  • 100% satisfaction guarantee
  • Free Home Building Organizer