House Plan: DFD-12041

See All 8 Photos > (photographs may reflect modified homes)
© copyright by designer
SQ FT
1,403
BEDS
3
BATHS
2.5
STORIES
2
CARS
0
PLANS FROM $1,025
For questions and help, live chat, email or call us at 877-895-5299
Floor Plans
Click to Zoom In on Floor Plan
 
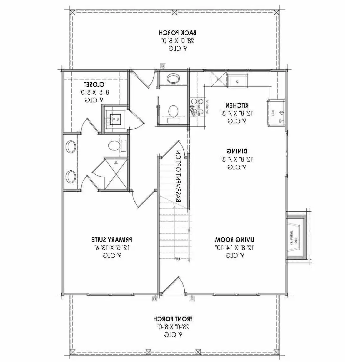
About House Plan 12041:
Offering 1,403 square feet of heated space, this home provides a layout designed for comfort, connection, and simple daily living. The U-shaped kitchen creates an efficient cooking zone while staying open to the dining and family areas. A cozy fireplace brings charm to the family room, making it a natural gathering spot for evenings and weekends. The primary bedroom on the main floor includes a walk-in closet and double vanity bath for a comfortable daily routine. Two more bedrooms on the upper floor allow flexibility for family arrangements or guests. Split bedrooms ensure personal space for everyone, whether studying, resting, or unwinding. Covered porches at the front and rear invite outdoor enjoyment throughout the year. Warm and functional, this design creates a welcoming place to call home.
House Plan Pricing
STEP 1 Select Your Package

PDF Single Build


Digital plans emailed to you in PDF format that allows for printing copies and sharing electronically with contractors, subs, decorators, and more. This package includes a license to build the home one time.

PDF Single Build $1,025
Most recommended package

PDF Unlimited Build


Digital plans with an unlimited build license emailed in PDF format, that allows for printing copies on a home printer or local print shop and sharing with contractors, subs, decorators and more 

PDF Unlimited Build $1,755
Digital plans including unlimited build license

CAD + PDF Unlimited Build


CAD files are a complete set of construction drawings delivered electronically. They can be used for any type of modification—including major design changes and engineering—and include a release granting permission to modify the plan. Most CAD plan orders are emailed the same or next business day.
 
This package also comes with a PDF set of plans and a multi-use building license, granting permission to construct the home an unlimited number of times, along with a copyright release for making modifications and printing unlimited copies.
 
CAD files are provided in .dwg format. For details on the specific CAD program used, please refer to the PLAN DETAILS section located above the floor plan on each plan’s page.

CAD + PDF Unlimited Build $2,065
2D electronic editable computer files
STEP 2 Need To Reverse This Plan?
STEP 3 CHOOSE YOUR FOUNDATION
STEP 4 OPTIONAL ADD-ONS
Subtotal:
$1025
FREE SHIPPING
 
Plan Details
See All Details
Finished Square Footage
915 Sq. Ft.
Main Level:
488 Sq. Ft.
Upper Level:
1,403 Sq. Ft.
Total:
Room Details
3
Bedrooms:
2
Full Baths:
1
Half Baths:
General House Information
2
Number of Stories:
33' 0"
Width:
46' 0"
Depth:
Single
Dwelling Number:
Unfinished Square Footage
448 Sq. Ft.
Porch:
224 Sq. Ft.
Front Porch:
224 Sq. Ft.
Rear Porch:
GARAGE
0
Garage Size:
Exterior Style
Cottage
Country
Farmhouse
Modern Farmhouse
Collections
Builders
First Home
Mountain
Open Floor Plan
Split Bedroom
Vacation
Foundation
Basement
Crawlspace
Monolithic Slab
Walkout Basement
Framing Information
Stick
Roof Framing:
2x4
Exterior Wall Framing:
Roof Pitch
9/12
Primary:
3/12
Secondary:
Insulation (R)
Per IRC Climate Zones
House And Ceiling Heights
9
First Floor Ceiling:
8
Second Floor Ceiling:
24' 10"
Maximum House Height:
Key Features
Covered Front Porch
Covered Rear Porch
Dining Room
Double Vanity Sink
Family Room
Fireplace
Laundry 1st Fl
Primary Bdrm Main Floor
None
Open Floor Plan
Split Bedrooms
Suited for corner lot
Suited for narrow lot
Suited for sloping lot
Suited for view lot
U-Shaped
Walk-in Closet

Our Guarantees

  • Only the highest quality plans
  • Int’l Residential Code Compliant
  • Full structural details on all plans
  • Best plan price guarantee
  • Free modification Estimates
  • Builder-ready construction drawings
  • Expert advice from leading designers
  •  PDFs NOW!™ plans in minutes
  • 100% satisfaction guarantee
  • Free Home Building Organizer