15% off ALL House Plans Sitewide
15% off ALL House Plans Sitewide

House Plan: DFD-12042

See All 13 Photos > (photographs may reflect modified homes)
© copyright by designer
SQ FT
5,001
BEDS
5
BATHS
5.5
STORIES
2
CARS
4
HOUSE PLANS SALE 
START AT  $2,154.75
For questions and help, live chat, email or call us at 877-895-5299
Floor Plans
Click to Zoom In on Floor Plan
 
About House Plan 12042:
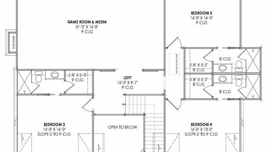
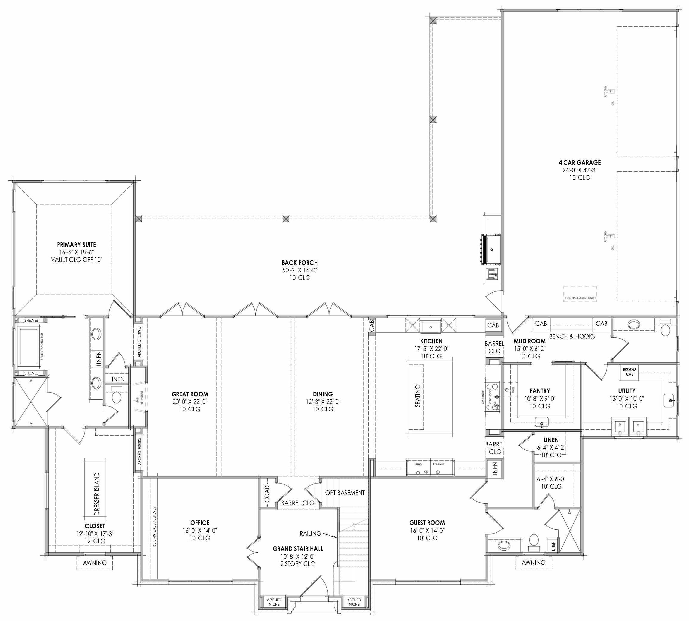
House Plan 12042 is a stunning 5,001 sq. ft. luxury European farmhouse designed with dramatic architectural details and elevated everyday comfort. A two-story foyer opens into a vaulted great room and a beautifully appointed kitchen with an oversized island and walk-in pantry. The dining room features a barrel ceiling, while the rear porch and outdoor kitchen extend the home’s entertainment potential. The main-level primary suite provides a private retreat with its vaulted ceiling, spa-inspired bath, and large closet. A guest suite, office, and mudroom add functionality for busy families. Upstairs, three bedrooms, a generous loft, and a full game/media room offer flexible living and recreation space. With a 4-car garage, wraparound porch, and premium finishes throughout, this plan defines luxury European farmhouse living.
House Plan Pricing
STEP 1 Select Your Package

PDF Single Build


Digital plans emailed to you in PDF format that allows for printing copies and sharing electronically with contractors, subs, decorators, and more. This package includes a license to build the home one time.

PDF Single Build $2,535
Most recommended package

5 Printed Sets + PDF


Includes 5 physical printed blueprint sets, shipped free via UPS within the U.S. Printed sets ship within 1 business day and are delivered within 3 – 5 business days. A complimentary PDF plan set is also emailed within 1 business day for easy sharing and local printing. These plans may be used to construct one home.

5 Printed Sets + PDF $2,885
5 Printed Sets + PDF

PDF Unlimited Build


Digital plans with an unlimited build license emailed in PDF format, that allows for printing copies on a home printer or local print shop and sharing with contractors, subs, decorators and more 

PDF Unlimited Build $3,175
Digital plans including unlimited build license

CAD + PDF Unlimited Build


This plan package is created in AutoCAD and delivered in .DWG format. CAD files are intended for use by design professionals, structural engineers, and builders to update plans for local building codes or to make revisions based on specific needs, lot requirements, and budget considerations. A complimentary PDF copy is included with this package for reference. CAD packages are delivered within 1 to 2 business days.
 
This package also comes with a multi-use building license, granting permission to construct the home an unlimited number of times, along with a copyright release for making revisions and printing unlimited copies.
 
For details on the specific CAD program used, please refer to the PLAN DETAILS section located above the floor plan on each plan page.

CAD + PDF Unlimited Build $3,495
2D electronic editable computer files
STEP 2 Need To Reverse This Plan?
STEP 3 CHOOSE YOUR FOUNDATION
STEP 4 OPTIONAL ADD-ONS
Subtotal:
$2535
FREE SHIPPING
 
Plan Details
See All Details
Finished Square Footage
3,328 Sq. Ft.
Main Level:
1,673 Sq. Ft.
Upper Level:
5,001 Sq. Ft.
Total:
Room Details
5
Bedrooms:
5
Full Baths:
1
Half Baths:
General House Information
2
Number of Stories:
92' 5"
Width:
83' 10"
Depth:
Single
Dwelling Number:
Unfinished Square Footage
1046 Sq. Ft.
Garage:
997 Sq. Ft.
Porch:
11 Sq. Ft.
Front Porch:
986 Sq. Ft.
Rear Porch:
GARAGE
Rear
Garage Location:
4
Garage Size:
Exterior Style
Cottage
European
French Country
Modern Farmhouse
Collections
Kitchens
Luxury
Primary Suites
Open Floor Plan
Outdoor Living
Split Bedroom
Foundation
Basement
Crawlspace
Monolithic Slab
Walkout Basement
Framing Information
Stick
Roof Framing:
2x4
Exterior Wall Framing:
Roof Pitch
10/12
Primary:
16/12
Secondary:
Insulation (R)
Per IRC Climate Zones
House And Ceiling Heights
10
First Floor Ceiling:
9
Second Floor Ceiling:
34' 2"
Maximum House Height:
Key Features
2 Story Volume
Arches
Attached
Covered Front Porch
Covered Rear Porch
Dining Room
Double Vanity Sink
Fireplace
Foyer
Great Room
Home Office
Kitchen Island
Laundry 1st Fl
Library/Media Rm
Loft / Balcony
Primary Bdrm Main Floor
Mud Room
Open Floor Plan
Outdoor Kitchen
Outdoor Living Space
Rec Room
Separate Tub and Shower
Side-entry
Split Bedrooms
Suited for corner lot
Suited for sloping lot
Suited for view lot
U-Shaped
Vaulted Ceilings
Vaulted Foyer
Vaulted Primary
Walk-in Closet
Walk-in Pantry

Our Guarantees

  • Only the highest quality plans
  • Int’l Residential Code Compliant
  • Full structural details on all plans
  • Best plan price guarantee
  • Free modification Estimates
  • Builder-ready construction drawings
  • Expert advice from leading designers
  •  PDFs NOW!™ plans in minutes
  • 100% satisfaction guarantee
  • Free Home Building Organizer