15% off ALL House Plans Sitewide
15% off ALL House Plans Sitewide

House Plan: DFD-12045

See All 9 Photos > (photographs may reflect modified homes)
© copyright by designer
SQ FT
2,116
BEDS
3
BATHS
2.5
STORIES
2
CARS
2
HOUSE PLANS SALE 
START AT  $1,258.00
For questions and help, live chat, email or call us at 877-895-5299
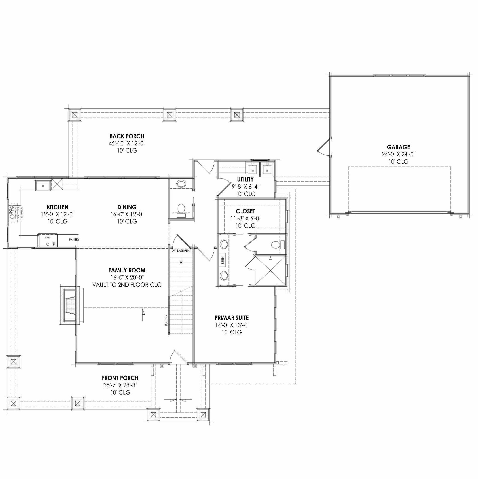
Floor Plans
Click to Zoom In on Floor Plan
 
About House Plan 12045:
With 2,116 heated square feet, this 3-bedroom home delivers a spacious layout filled with comfort and welcoming details. The U-shaped kitchen includes a pantry and flows easily into the family room, making meals and gatherings feel effortless. The main-floor primary suite features a walk-in closet and double-vanity bath, while two upstairs bedrooms create a quiet retreat for family or guests. Vaulted ceilings in the great room add height and warmth, creating a bright centerpiece for the home. A loft provides extra space that transitions beautifully between work, play, or relaxation. The wraparound porch expands outdoor living with plenty of room to unwind in any season. With its open layout and inviting character, this home offers a warm and enjoyable place to settle into everyday life.
House Plan Pricing
STEP 1 Select Your Package

PDF Single Build


Digital plans emailed to you in PDF format that allows for printing copies and sharing electronically with contractors, subs, decorators, and more. This package includes a license to build the home one time.

PDF Single Build $1,480
Most recommended package

5 Printed Sets + PDF


Includes 5 physical printed blueprint sets, shipped free via UPS within the U.S. Printed sets ship within 1 business day and are delivered within 3 – 5 business days. A complimentary PDF plan set is also emailed within 1 business day for easy sharing and local printing. These plans may be used to construct one home.

5 Printed Sets + PDF $1,830
5 Printed Sets + PDF

PDF Unlimited Build


Digital plans with an unlimited build license emailed in PDF format, that allows for printing copies on a home printer or local print shop and sharing with contractors, subs, decorators and more 

PDF Unlimited Build $2,220
Digital plans including unlimited build license

CAD + PDF Unlimited Build


This plan package is created in AutoCAD and delivered in .DWG format. CAD files are intended for use by design professionals, structural engineers, and builders to update plans for local building codes or to make revisions based on specific needs, lot requirements, and budget considerations. A complimentary PDF copy is included with this package for reference. CAD packages are delivered within 1 to 2 business days.
 
This package also comes with a multi-use building license, granting permission to construct the home an unlimited number of times, along with a copyright release for making revisions and printing unlimited copies.
 
For details on the specific CAD program used, please refer to the PLAN DETAILS section located above the floor plan on each plan page.

CAD + PDF Unlimited Build $2,545
2D electronic editable computer files
STEP 2 Need To Reverse This Plan?
STEP 3 CHOOSE YOUR FOUNDATION
STEP 4 OPTIONAL ADD-ONS
Subtotal:
$1480
FREE SHIPPING
 
Plan Details
See All Details
Finished Square Footage
1,394 Sq. Ft.
Main Level:
721 Sq. Ft.
Upper Level:
2,116 Sq. Ft.
Total:
Room Details
3
Bedrooms:
2
Full Baths:
1
Half Baths:
General House Information
2
Number of Stories:
81' 2"
Width:
60' 5"
Depth:
Single
Dwelling Number:
Unfinished Square Footage
604 Sq. Ft.
Garage:
1059 Sq. Ft.
Porch:
538 Sq. Ft.
Front Porch:
521 Sq. Ft.
Rear Porch:
GARAGE
Side
Garage Location:
2
Garage Size:
Exterior Style
Country
Craftsman
Farmhouse
Modern Farmhouse
Collections
Cabin
Mountain
Open Floor Plan
Outdoor Living
Split Bedroom
Foundation
Basement
Crawlspace
Monolithic Slab
Walkout Basement
Framing Information
Stick
Roof Framing:
2x4
Exterior Wall Framing:
Roof Pitch
12/12
Primary:
8/12
Secondary:
Insulation (R)
Per IRC Climate Zones
House And Ceiling Heights
10
First Floor Ceiling:
8
Second Floor Ceiling:
27' 3"
Maximum House Height:
Key Features
Attached
Covered Front Porch
Covered Rear Porch
Dining Room
Double Vanity Sink
Family Room
Fireplace
Front-entry
Laundry 1st Fl
Loft / Balcony
Primary Bdrm Main Floor
Open Floor Plan
Outdoor Living Space
Pantry
Split Bedrooms
Suited for corner lot
Suited for narrow lot
Suited for sloping lot
Suited for view lot
U-Shaped
Vaulted Ceilings
Vaulted Great Room/Living
Walk-in Closet
Wraparound Porch

Our Guarantees

  • Only the highest quality plans
  • Int’l Residential Code Compliant
  • Full structural details on all plans
  • Best plan price guarantee
  • Free modification Estimates
  • Builder-ready construction drawings
  • Expert advice from leading designers
  •  PDFs NOW!™ plans in minutes
  • 100% satisfaction guarantee
  • Free Home Building Organizer