House Plan: DFD-12049

See All 6 Photos > (photographs may reflect modified homes)
© copyright by designer
SQ FT
2,607
BEDS
4
BATHS
2.5
STORIES
1
CARS
2
PLANS FROM $1,495
For questions and help, live chat, email or call us at 877-895-5299
Floor Plans
Click to Zoom In on Floor Plan
 
About House Plan 12049:
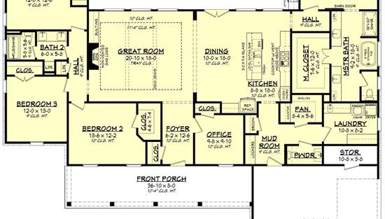
Designed with 2,607 square feet of heated space, this 4-bedroom, 2.5-bath home delivers a spacious yet welcoming layout for modern living. The great room opens seamlessly to the kitchen and dining areas, creating a natural flow for entertaining and family time. A kitchen island, peninsula eating bar, and walk-in pantry provide ample workspace and storage while keeping the space open and connected. The main-floor primary suite offers a relaxing retreat with a double vanity, separate tub and shower, and walk-in closet. Additional bedrooms are thoughtfully split from the primary suite for comfort and privacy. Covered porches at both the front and rear invite outdoor enjoyment, with an outdoor kitchen adding even more versatility. This plan combines practical features with inviting spaces that feel comfortable from the moment you walk in.
House Plan Pricing
STEP 1 Select Your Package

5 Printed Sets + PDF


Includes 5 physical printed blueprints shipped and delivered within 3-5 business days and a copyright release license to construct one home and to make copies. A complimentary PDF plan set is also emailed within 1 business day for easy sharing and local printing. 

5 Printed Sets + PDF $1,745
5 Printed Sets + PDF

PDF Single Build


Digital plans emailed to you in PDF format that allows for printing copies and sharing electronically with contractors, subs, decorators, and more. This package includes a license to build the home one time.

PDF Single Build $1,495
Most recommended package

PDF Unlimited Build


Digital plans with an unlimited build license emailed in PDF format, that allows for printing copies on a home printer or local print shop and sharing with contractors, subs, decorators and more 

PDF Unlimited Build $2,155
Digital plans including unlimited build license

CAD + PDF Unlimited Build


This plan package is created in AutoCAD and delivered in .DWG format. CAD files are intended for use by design professionals, structural engineers, and builders to update plans for local building codes or to make revisions based on specific needs, lot requirements, and budget considerations. A complimentary PDF copy is included with this package for reference. CAD packages are delivered within 1 to 2 business days.
 
This package also comes with a multi-use building license, granting permission to construct the home an unlimited number of times, along with a copyright release for making revisions and printing unlimited copies.
 
For details on the specific CAD program used, please refer to the PLAN DETAILS section located above the floor plan on each plan page.

CAD + PDF Unlimited Build $2,595
2D electronic editable computer files
STEP 2 Need To Reverse This Plan?
STEP 3 CHOOSE YOUR FOUNDATION
STEP 4 OPTIONAL ADD-ONS
Subtotal:
$1745
FREE SHIPPING
 
Plan Details
See All Details
Finished Square Footage
2,607 Sq. Ft.
Main Level:
2,607 Sq. Ft.
Total:
Room Details
4
Bedrooms:
2
Full Baths:
1
Half Baths:
General House Information
1
Number of Stories:
74' 6"
Width:
69' 6"
Depth:
Single
Dwelling Number:
None
Bonus Access:
Unfinished Square Footage
639 Sq. Ft.
Garage:
44 Sq. Ft.
Storage:
665 Sq. Ft.
Porch:
295 Sq. Ft.
Front Porch:
370 Sq. Ft.
Rear Porch:
GARAGE
Front
Garage Location:
2
Garage Size:
Exterior Style
Country
Farmhouse
Modern Farmhouse
Ranch
Traditional
Collections
Kitchens
Primary Suites
Open Floor Plan
Outdoor Living
Split Bedroom
Foundation
Basement
Crawl Space
Slab
Walkout Basement
Framing Information
Stick
Roof Framing:
2x4
Exterior Wall Framing:
Roof Pitch
9/12
Primary:
10/12
Secondary:
Roof Load
30 psf
Live:
Insulation (R)
House And Ceiling Heights
9
First Floor Ceiling:
26' 0"
Maximum House Height:
Key Features
Attached
Covered Front Porch
Covered Rear Porch
Dining Room
Double Vanity Sink
Fireplace
Foyer
Great Room
Home Office
Kitchen Island
Laundry 1st Fl
L-Shaped
Primary Bdrm Main Floor
Mud Room
Open Floor Plan
Outdoor Kitchen
Peninsula / Eating Bar
Separate Tub and Shower
Side-entry
Split Bedrooms
Storage Space
Suited for corner lot
Vaulted Ceilings
Walk-in Closet
Walk-in Pantry

Our Guarantees

  • Only the highest quality plans
  • Int’l Residential Code Compliant
  • Full structural details on all plans
  • Best plan price guarantee
  • Free modification Estimates
  • Builder-ready construction drawings
  • Expert advice from leading designers
  •  PDFs NOW!™ plans in minutes
  • 100% satisfaction guarantee
  • Free Home Building Organizer