House Plan: DFD-12051

See All 5 Photos > (photographs may reflect modified homes)
© copyright by designer
SQ FT
2,626
BEDS
4
BATHS
3.5
STORIES
1
CARS
2
PLANS FROM $1,495
For questions and help, live chat, email or call us at 877-895-5299
Floor Plans
Click to Zoom In on Floor Plan
 
About House Plan 12051:
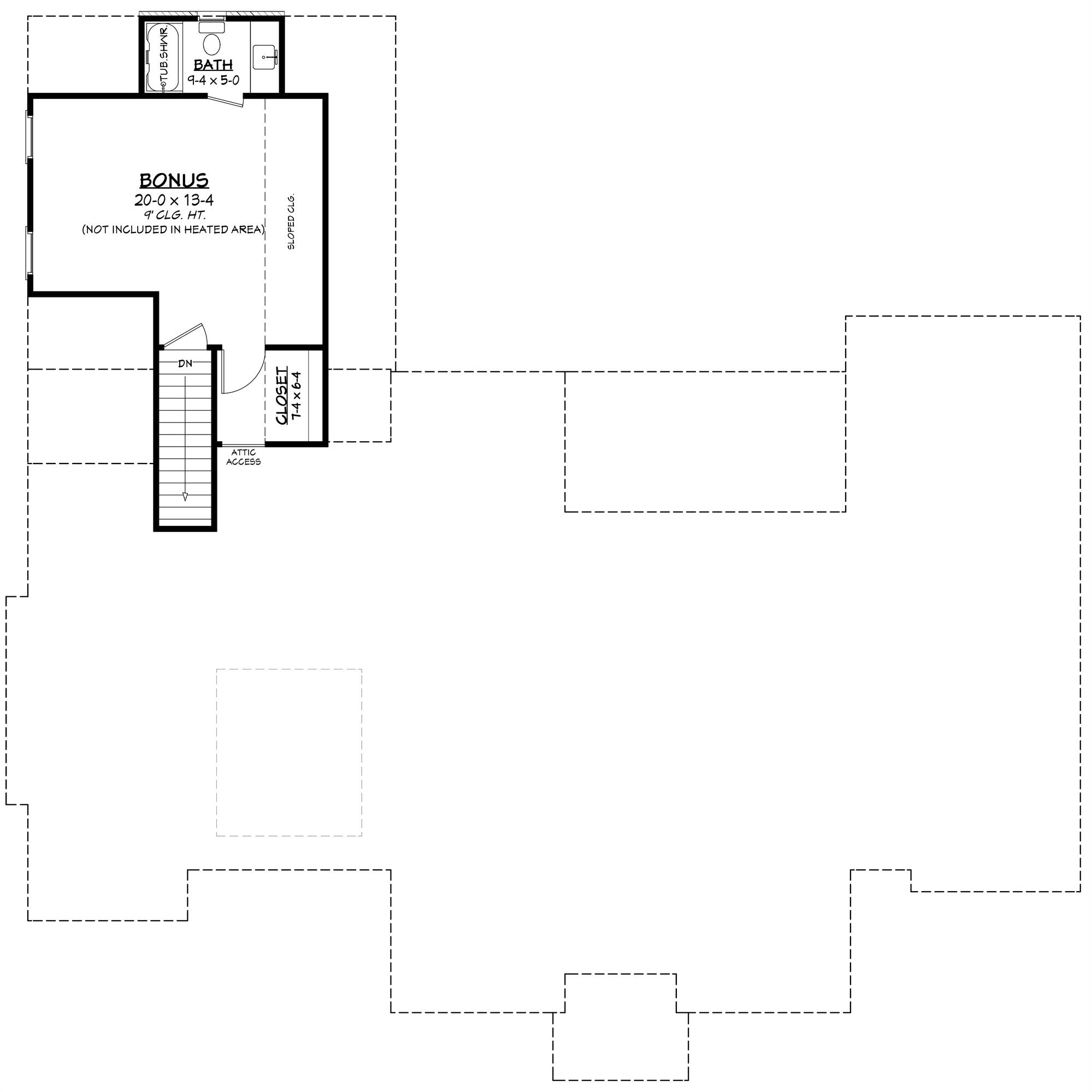
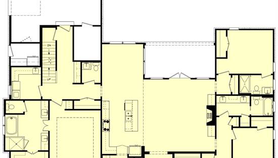
With 2,626 square feet of heated space, this home delivers 4 bedrooms and 3.5 baths arranged for both comfort and functionality. The primary suite is located on the main floor and features a spacious bath with a separate tub and shower and a generous walk-in closet. A main-level guest suite adds convenience and privacy, ideal for overnight guests or multigenerational living. The open great room flows seamlessly into the dining area and island kitchen, making everyday living feel connected and effortless. A home office provides a quiet place to work or study, while the mud room keeps everything organized. The upper-level bonus room offers flexible space for relaxing or entertaining. Covered porches and ample storage complete a home designed to support modern family living.
House Plan Pricing
STEP 1 Select Your Package

5 Printed Sets + PDF


Includes 5 physical printed blueprints shipped and delivered within 3-5 business days and a copyright release license to construct one home and to make copies. A complimentary PDF plan set is also emailed within 1 business day for easy sharing and local printing. 

5 Printed Sets + PDF $1,745
5 Printed Sets + PDF

PDF Single Build


Digital plans emailed to you in PDF format that allows for printing copies and sharing electronically with contractors, subs, decorators, and more. This package includes a license to build the home one time.

PDF Single Build $1,495
Most recommended package

PDF Unlimited Build


Digital plans with an unlimited build license emailed in PDF format, that allows for printing copies on a home printer or local print shop and sharing with contractors, subs, decorators and more 

PDF Unlimited Build $2,155
Digital plans including unlimited build license

CAD + PDF Unlimited Build


This plan package is created in AutoCAD and delivered in .DWG format. CAD files are intended for use by design professionals, structural engineers, and builders to update plans for local building codes or to make revisions based on specific needs, lot requirements, and budget considerations. A complimentary PDF copy is included with this package for reference. CAD packages are delivered within 1 to 2 business days.
 
This package also comes with a multi-use building license, granting permission to construct the home an unlimited number of times, along with a copyright release for making revisions and printing unlimited copies.
 
For details on the specific CAD program used, please refer to the PLAN DETAILS section located above the floor plan on each plan page.

CAD + PDF Unlimited Build $2,595
2D electronic editable computer files
STEP 2 Need To Reverse This Plan?
STEP 3 CHOOSE YOUR FOUNDATION
STEP 4 OPTIONAL ADD-ONS
Subtotal:
$1745
FREE SHIPPING
 
Plan Details
See All Details
Finished Square Footage
2,626 Sq. Ft.
Main Level:
1,443 Sq. Ft.
Lower Level:
2,626 Sq. Ft.
Total:
Room Details
4
Bedrooms:
3
Full Baths:
1
Half Baths:
General House Information
1
Number of Stories:
74' 0"
Width:
73' 4"
Depth:
Single
Dwelling Number:
2nd Floor
Bonus Access:
Unfinished Square Footage
638 Sq. Ft.
Garage:
116 Sq. Ft.
Storage:
251 Sq. Ft.
Porch:
64 Sq. Ft.
Front Porch:
187 Sq. Ft.
Rear Porch:
438 Sq. Ft.
Bonus Room:
GARAGE
Rear
Garage Location:
2
Garage Size:
Exterior Style
Cottage
Country
European
Farmhouse
Modern Farmhouse
Southern
Transitional
Collections
Kitchens
Primary Suites
Open Floor Plan
Split Bedroom
Foundation
Basement
Crawl Space
Slab
Framing Information
Stick
Roof Framing:
2x4
Exterior Wall Framing:
Roof Pitch
9/12
Primary:
Roof Load
40 psf
Live:
Insulation (R)
House And Ceiling Heights
10
First Floor Ceiling:
29' 0"
Maximum House Height:
Key Features
Attached
Bonus Room
Covered Front Porch
Covered Rear Porch
Dining Room
Double Vanity Sink
Fireplace
Foyer
Great Room
Guest Suite
Home Office
Kitchen Island
Laundry 1st Fl
L-Shaped
Primary Bdrm Main Floor
Mud Room
Open Floor Plan
Peninsula / Eating Bar
Separate Tub and Shower
Side-entry
Split Bedrooms
Storage Space
Suited for corner lot
Walk-in Closet
Walk-in Pantry

Our Guarantees

  • Only the highest quality plans
  • Int’l Residential Code Compliant
  • Full structural details on all plans
  • Best plan price guarantee
  • Free modification Estimates
  • Builder-ready construction drawings
  • Expert advice from leading designers
  •  PDFs NOW!™ plans in minutes
  • 100% satisfaction guarantee
  • Free Home Building Organizer