House Plan: DFD-12057

See All 15 Photos > (photographs may reflect modified homes)
© copyright by designer
SQ FT
3,305
BEDS
3
BATHS
2.5
STORIES
2
CARS
3
PLANS FROM $2,200
For questions and help, live chat, email or call us at 877-895-5299
Floor Plans
Click to Zoom In on Floor Plan
 
About House Plan 12057:
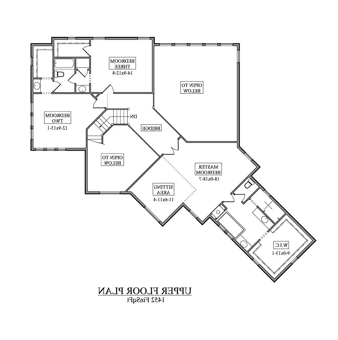
This 3,305 square foot layout is designed to support comfortable daily living with open, bright gathering areas. The main level flows easily from the foyer into the family room and great room, creating spaces that feel welcoming and connected. An L-shaped kitchen with a central island and walk-in pantry offers both function and room to enjoy cooking together. The upper-level primary suite includes a sitting area, a spacious walk-in closet, and a double vanity bath for a peaceful retreat. Two additional bedrooms are thoughtfully separated for privacy and flexibility. Covered porches at the front and rear provide relaxing outdoor options, while the lower-level unfinished area adds valuable room for storage or future plans. With its side-positioned garage and practical front-entry design, this home brings together comfort, flexibility, and a warm sense of everyday ease.
House Plan Pricing
STEP 1 Select Your Package

PDF Single Build


Digital plans emailed to you in PDF format that allows for printing copies and sharing electronically with contractors, subs, decorators, and more. This package includes a license to build the home one time.

PDF Single Build $2,200
Most recommended package

PDF Unlimited Build


Digital plans with an unlimited build license emailed in PDF format, that allows for printing copies on a home printer or local print shop and sharing with contractors, subs, decorators and more 

PDF Unlimited Build $3,150
Digital plans including unlimited build license

CAD + PDF Single Build


CAD files are a complete set of construction drawings delivered electronically. They can be used for any type of modification—including major design changes and engineering—and include a release granting permission to modify the plan. Most CAD plan orders are emailed the same or next business day.
 
This package also comes with a PDF set of plans and a copyright release for making modifications and printing unlimited copies.
 
CAD files are provided in .dwg format. For details on the specific CAD program used, please refer to the PLAN DETAILS section located above the floor plan on each plan’s page.

CAD + PDF Single Build $3,700
2D electronic editable computer files

CAD Unlimited Build


CAD files are a complete set of construction drawings delivered electronically. They can be used for any type of modification—including major design changes and engineering—and include a release granting permission to modify the plan. Most CAD plan orders are emailed the same or next business day. CAD files are provided in .dwg format. For details on the specific CAD program used, please refer to the PLAN DETAILS section located above the floor plan on each plan’s page.
CAD Unlimited Build $5,400
2D electronic editable computer files
STEP 2 Need To Reverse This Plan?
STEP 3 CHOOSE YOUR FOUNDATION
STEP 4 OPTIONAL ADD-ONS
Subtotal:
$2200
FREE SHIPPING
 
Plan Details
See All Details
Finished Square Footage
1,854 Sq. Ft.
Main Level:
1,451 Sq. Ft.
Upper Level:
1,318 Sq. Ft.
Lower Level:
3,305 Sq. Ft.
Total:
Room Details
3
Bedrooms:
2
Full Baths:
1
Half Baths:
General House Information
2
Number of Stories:
80' 6"
Width:
86' 3"
Depth:
Single
Dwelling Number:
Unfinished Square Footage
1043 Sq. Ft.
Garage:
GARAGE
Side
Garage Location:
3
Garage Size:
Exterior Style
Country
Craftsman
Farmhouse
Modern Farmhouse
Collections
Luxury
Mountain
Open Floor Plan
Split Bedroom
Foundation
Basement
Crawl Space
Daylight Basement
Slab
Framing Information
2x6
Exterior Wall Framing:
Roof Pitch
5/12
Primary:
Insulation (R)
House And Ceiling Heights
9
First Floor Ceiling:
9
Second Floor Ceiling:
26' 3"
Maximum House Height:
Key Features
Attached
Covered Front Porch
Covered Rear Porch
Double Vanity Sink
Family Room
Fireplace
Foyer
Front-entry
Great Room
Home Office
Kitchen Island
Laundry 1st Fl
Library/Media Rm
L-Shaped
Primary Bdrm Upstairs
Mud Room
Open Floor Plan
Separate Tub and Shower
Sitting Area
Split Bedrooms
Storage Space
Suited for corner lot
Unfinished Space
Walk-in Closet
Walk-in Pantry

Our Guarantees

  • Only the highest quality plans
  • Int’l Residential Code Compliant
  • Full structural details on all plans
  • Best plan price guarantee
  • Free modification Estimates
  • Builder-ready construction drawings
  • Expert advice from leading designers
  •  PDFs NOW!™ plans in minutes
  • 100% satisfaction guarantee
  • Free Home Building Organizer