House Plan: DFD-12067

See All 46 Photos > (photographs may reflect modified homes)
© copyright by designer
SQ FT
3,526
BEDS
5
BATHS
3.5
STORIES
1
CARS
3
PLANS FROM $2,200
For questions and help, live chat, email or call us at 877-895-5299
Floor Plans
Click to Zoom In on Floor Plan
 
About House Plan 12067:
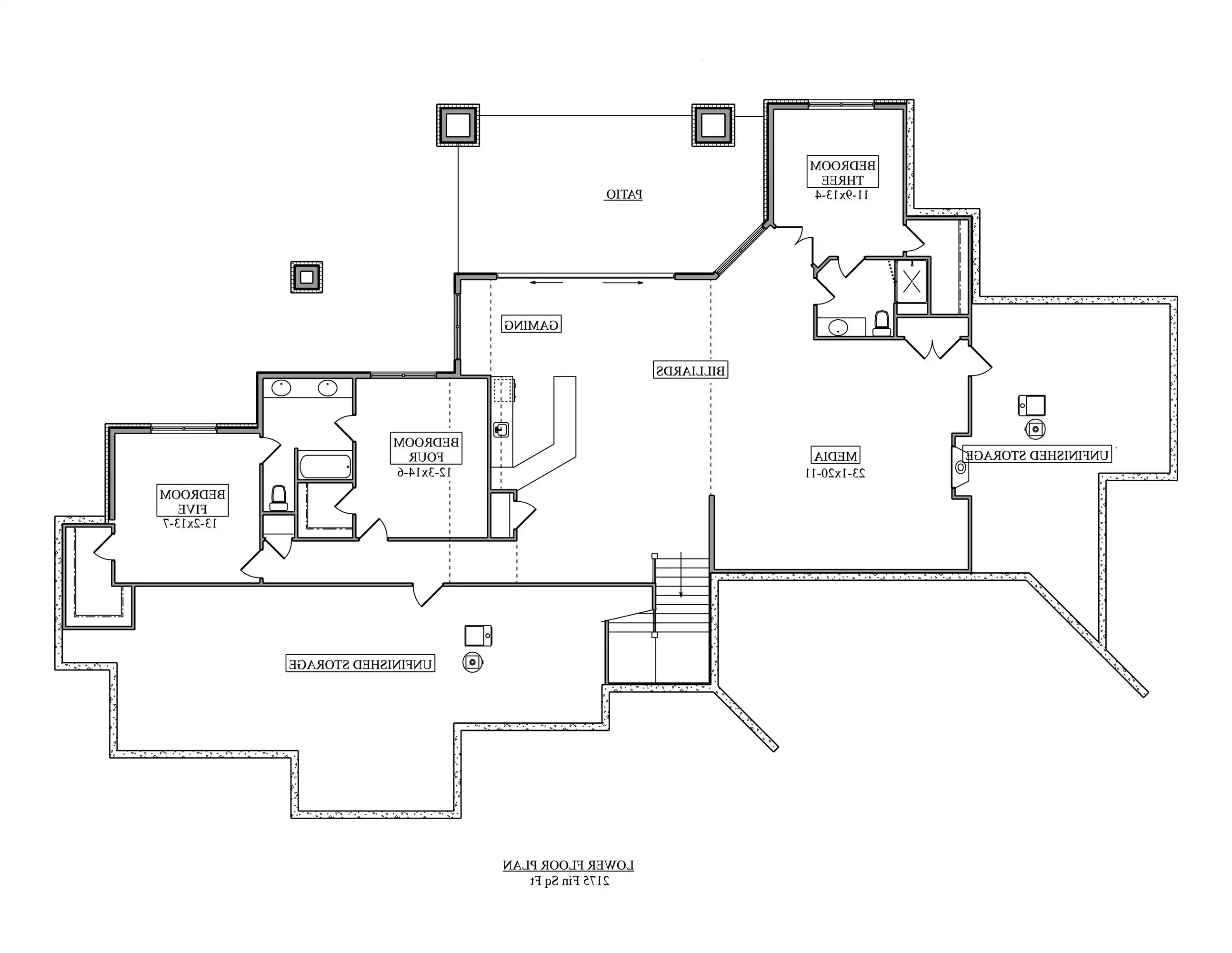
This home brings together 3,526 heated square feet with an easy flow between kitchen, dining, and living areas. The kitchen includes a butler’s pantry, peninsula seating, and a central island, making meal prep and gathering feel seamless. The main-floor primary bedroom offers privacy with its walk-in closet and bathroom featuring double sinks plus a separate tub and shower. A library or media room, home office, foyer, and mud room add helpful function to the main level. The lower floor provides a spacious rec room and significant unfinished space for storage or future projects. Outdoor living is supported by a covered front porch, covered rear porch, and a deck that expands daily enjoyment. A front-entry, attached 3-car garage completes this corner-lot-friendly design with convenience and accessibility.
House Plan Pricing
STEP 1 Select Your Package

PDF Single Build


Digital plans emailed to you in PDF format that allows for printing copies and sharing electronically with contractors, subs, decorators, and more. This package includes a license to build the home one time.

PDF Single Build $2,200
Most recommended package

PDF Unlimited Build


Digital plans with an unlimited build license emailed in PDF format, that allows for printing copies on a home printer or local print shop and sharing with contractors, subs, decorators and more 

PDF Unlimited Build $3,150
Digital plans including unlimited build license

CAD + PDF Single Build


CAD files are a complete set of construction drawings delivered electronically. They can be used for any type of modification—including major design changes and engineering—and include a release granting permission to modify the plan. Most CAD plan orders are emailed the same or next business day.
 
This package also comes with a PDF set of plans and a copyright release for making modifications and printing unlimited copies.
 
CAD files are provided in .dwg format. For details on the specific CAD program used, please refer to the PLAN DETAILS section located above the floor plan on each plan’s page.

CAD + PDF Single Build $3,700
2D electronic editable computer files

CAD Unlimited Build


CAD files are a complete set of construction drawings delivered electronically. They can be used for any type of modification—including major design changes and engineering—and include a release granting permission to modify the plan. Most CAD plan orders are emailed the same or next business day. CAD files are provided in .dwg format. For details on the specific CAD program used, please refer to the PLAN DETAILS section located above the floor plan on each plan’s page.
CAD Unlimited Build $5,400
2D electronic editable computer files
STEP 2 Need To Reverse This Plan?
STEP 3 CHOOSE YOUR FOUNDATION
STEP 4 OPTIONAL ADD-ONS
Subtotal:
$2200
FREE SHIPPING
 
Plan Details
See All Details
Finished Square Footage
3,526 Sq. Ft.
Main Level:
2,175 Sq. Ft.
Lower Level:
3,526 Sq. Ft.
Total:
Room Details
5
Bedrooms:
3
Full Baths:
1
Half Baths:
General House Information
1
Number of Stories:
110' 3"
Width:
86' 10"
Depth:
Single
Dwelling Number:
Unfinished Square Footage
1222 Sq. Ft.
Garage:
GARAGE
Front
Garage Location:
3
Garage Size:
Exterior Style
Country
Craftsman
Ranch
Collections
Kitchens
Luxury
Primary Suites
Mountain
Open Floor Plan
Split Bedroom
Foundation
Basement
Crawl Space
Slab
Walkout Basement
Framing Information
Truss
Roof Framing:
2x6
Exterior Wall Framing:
Roof Pitch
8/12
Primary:
10/12
Secondary:
Insulation (R)
House And Ceiling Heights
10
First Floor Ceiling:
24' 6"
Maximum House Height:
Key Features
Attached
Butler's Pantry
Covered Front Porch
Covered Rear Porch
Deck
Dining Room
Double Vanity Sink
Fireplace
Foyer
Front-entry
Great Room
Home Office
Kitchen Island
Laundry 1st Fl
Library/Media Rm
L-Shaped
Primary Bdrm Main Floor
Mud Room
Open Floor Plan
Outdoor Living Space
Peninsula / Eating Bar
Rec Room
Separate Tub and Shower
Split Bedrooms
Storage Space
Suited for corner lot
Unfinished Space
Walk-in Closet

Our Guarantees

  • Only the highest quality plans
  • Int’l Residential Code Compliant
  • Full structural details on all plans
  • Best plan price guarantee
  • Free modification Estimates
  • Builder-ready construction drawings
  • Expert advice from leading designers
  •  PDFs NOW!™ plans in minutes
  • 100% satisfaction guarantee
  • Free Home Building Organizer