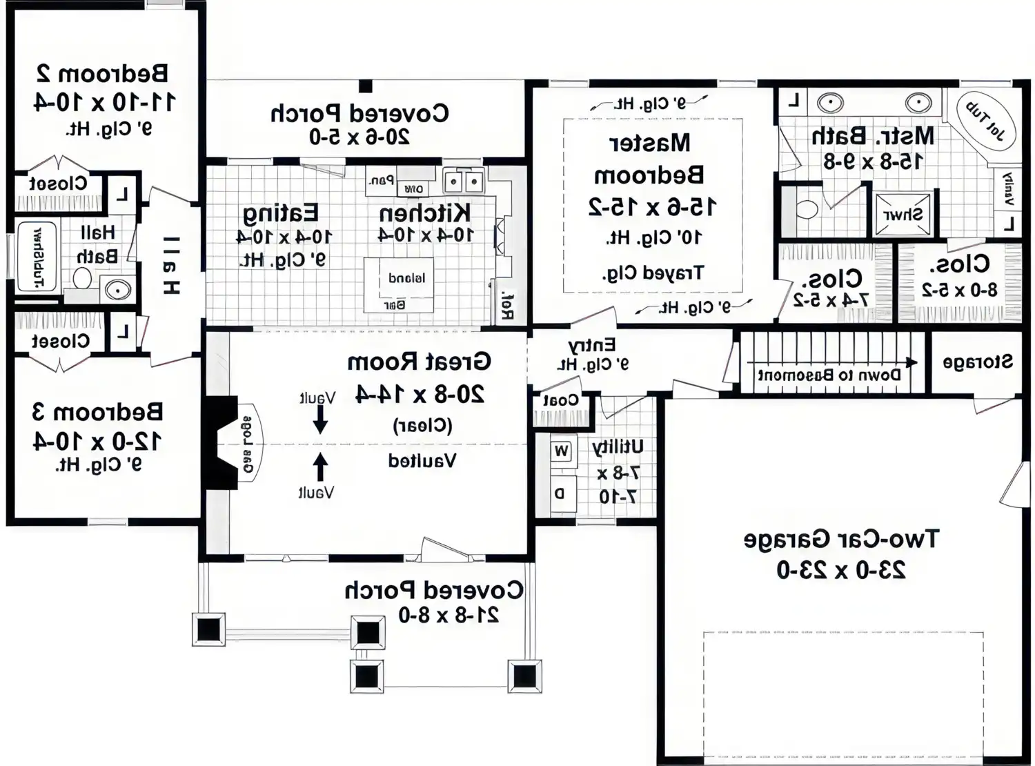
With 1,627 square feet of heated space, this thoughtfully planned home delivers comfort and functionality across 3 bedrooms and 2 baths. The vaulted great room enhances the open layout and provides a bright, spacious setting for gathering and relaxing. The kitchen blends charm and efficiency with a country-style layout, island workspace, peninsula seating, pantry storage, and a nearby breakfast area. The main-floor primary suite offers a peaceful retreat with a double vanity, his and hers closets, and a separate tub and shower. Additional highlights include a home office, mud room, ample storage, and unfinished space for future needs. Covered porches and an oversized garage complete this well-rounded home designed for easy living.