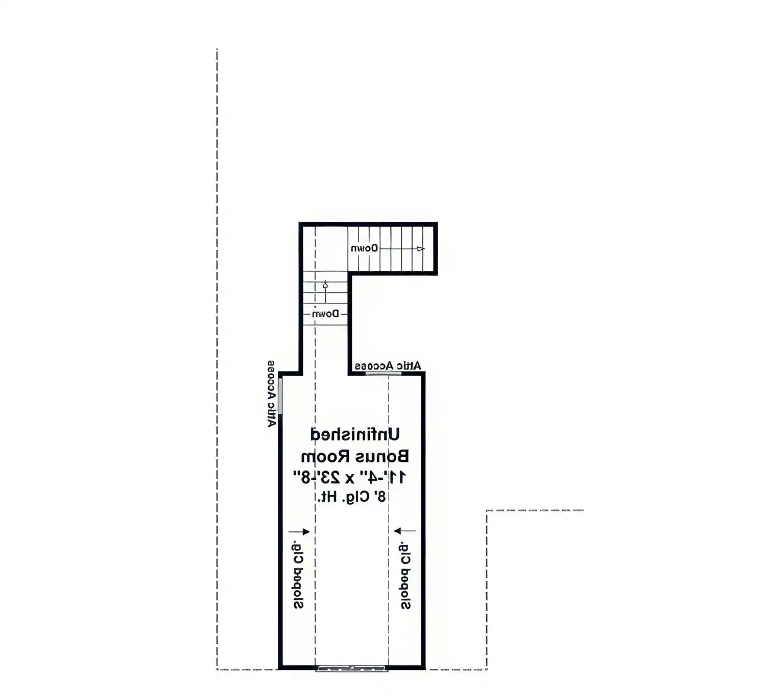
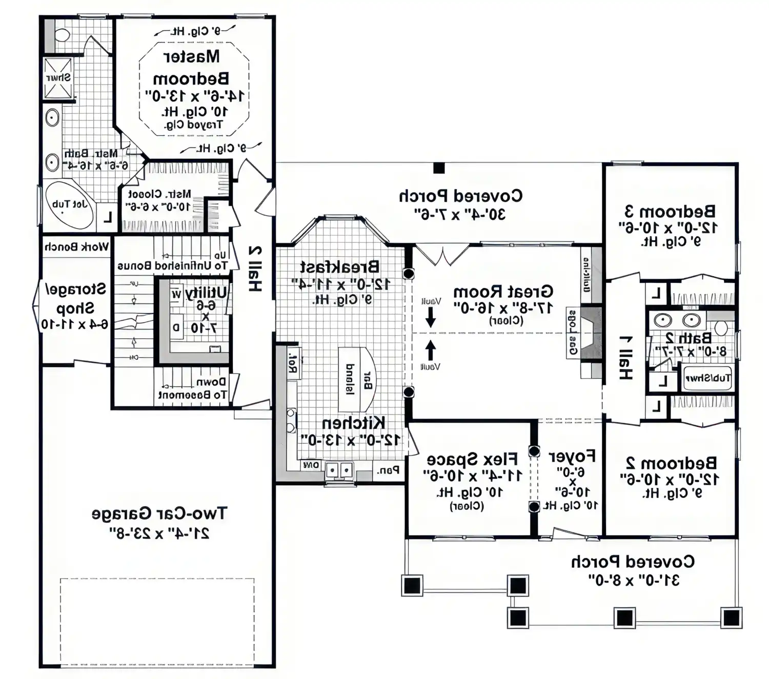
With 1,816 square feet of heated space, this home blends open living with versatile rooms designed for modern lifestyles. The great room showcases vaulted ceilings and flows seamlessly into the kitchen and dining areas for easy entertaining. The kitchen’s country layout includes an island, breakfast nook, pantry, and casual seating at the peninsula. A main-floor primary suite offers a quiet retreat with a spacious bath and walk-in closet. Bonus and unfinished spaces allow for future growth, while a home office and rec room add everyday convenience. Welcoming covered porches and thoughtful interior details make this home a comfortable and inviting place to settle in and enjoy.
With 1,816 square feet of heated space, this home blends open living with versatile rooms designed for modern lifestyles. The great room showcases vaulted ceilings and flows seamlessly into the kitchen and dining areas for easy entertaining. The kitchen’s country layout includes an island, breakfast nook, pantry, and casual seating at the peninsula. A main-floor primary suite offers a quiet retreat with a spacious bath and walk-in closet. Bonus and unfinished spaces allow for future growth, while a home office and rec room add everyday convenience. Welcoming covered porches and thoughtful interior details make this home a comfortable and inviting place to settle in and enjoy.