17% off ALL House Plans Sitewide
17% off ALL House Plans Sitewide

House Plan: DFD-12098

See All 21 Photos > (photographs may reflect modified homes)
© copyright by designer
SQ FT
2,645
BEDS
5
BATHS
4.5
STORIES
1
CARS
4
HOUSE PLANS SALE 
START AT  $1,452.50
For questions and help, live chat, email or call us at 877-895-5299
Floor Plans
Click to Zoom In on Floor Plan
 
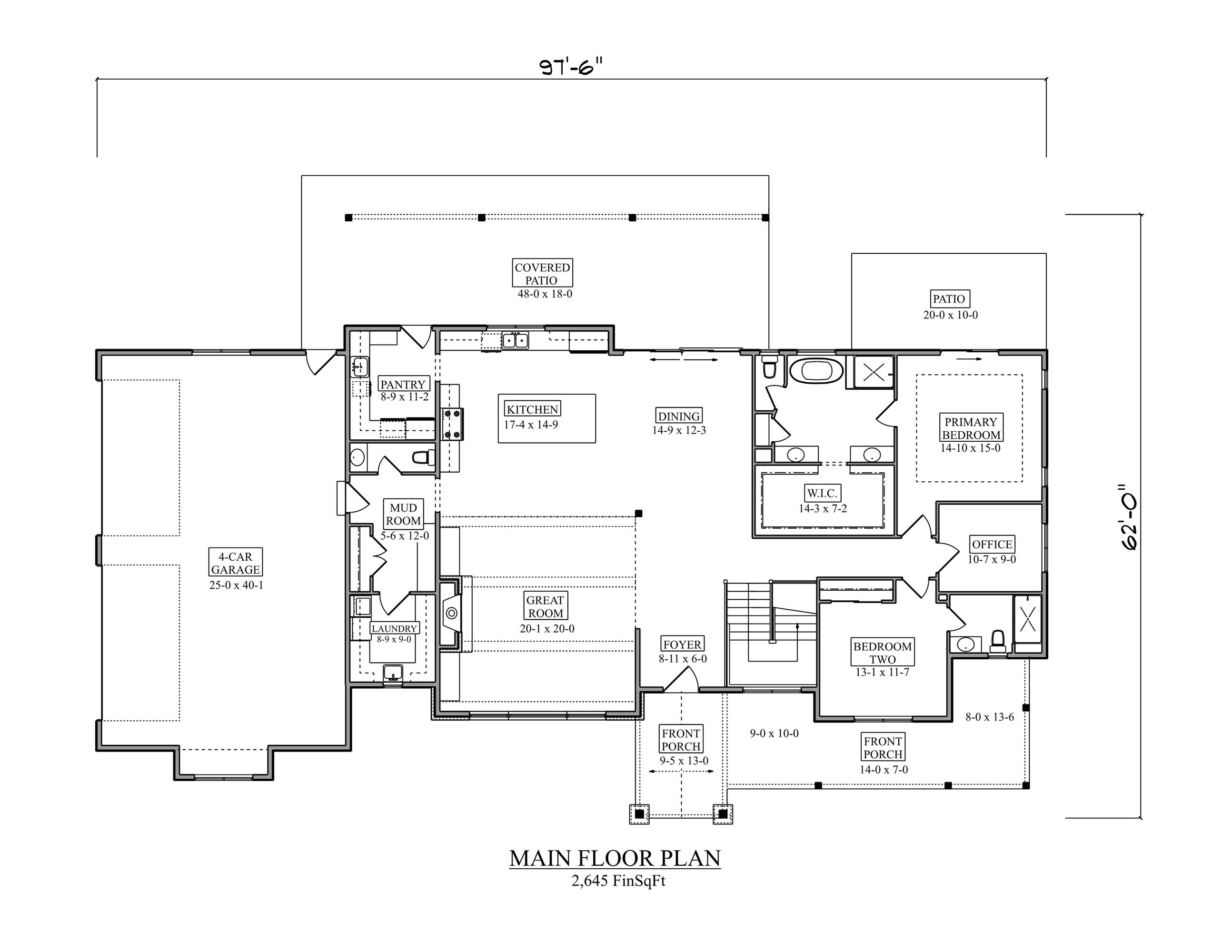
About House Plan 12098:
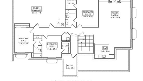
With 2645 heated square feet, this home delivers a thoughtful layout centered around comfort and connection. The open great room flows naturally into the kitchen, where an island and walk-in pantry support relaxed cooking and everyday meals. The primary suite sits on the main floor and includes a double-vanity bath, separate tub and shower, and a well-organized closet. A peaceful home office and a separate library provide calm spaces for work and downtime. The lower level includes additional unfinished square feet that can be shaped into future living or storage. Wide covered porches at the front and back add welcoming outdoor living. Altogether, this home offers a warm, flexible design ready to suit a variety of lifestyles.
House Plan Pricing
STEP 1 Select Your Package

PDF Single Build


Digital plans emailed to you in PDF format that allows for printing copies and sharing electronically with contractors, subs, decorators, and more. This package includes a license to build the home one time.

PDF Single Build $1,750
Most recommended package

PDF Unlimited Build


Digital plans with an unlimited build license emailed in PDF format, that allows for printing copies on a home printer or local print shop and sharing with contractors, subs, decorators and more 

PDF Unlimited Build $2,475
Digital plans including unlimited build license

CAD + PDF Single Build


CAD files are a complete set of construction drawings delivered electronically. They can be used for any type of modification—including major design changes and engineering—and include a release granting permission to modify the plan. Most CAD plan orders are emailed the same or next business day.
 
This package also comes with a PDF set of plans and a copyright release for making modifications and printing unlimited copies.
 
CAD files are provided in .dwg format. For details on the specific CAD program used, please refer to the PLAN DETAILS section located above the floor plan on each plan’s page.

CAD + PDF Single Build $3,050
2D electronic editable computer files

CAD Unlimited Build


CAD files are a complete set of construction drawings delivered electronically. They can be used for any type of modification—including major design changes and engineering—and include a release granting permission to modify the plan. Most CAD plan orders are emailed the same or next business day. CAD files are provided in .dwg format. For details on the specific CAD program used, please refer to the PLAN DETAILS section located above the floor plan on each plan’s page.
CAD Unlimited Build $4,425
2D electronic editable computer files
STEP 2 Need To Reverse This Plan?
STEP 3 CHOOSE YOUR FOUNDATION
STEP 4 OPTIONAL ADD-ONS
Subtotal:
$1750
FREE SHIPPING
 
Plan Details
See All Details
Finished Square Footage
2,645 Sq. Ft.
Main Level:
1,941 Sq. Ft.
Lower Level:
2,645 Sq. Ft.
Total:
Room Details
5
Bedrooms:
4
Full Baths:
1
Half Baths:
General House Information
1
Number of Stories:
97' 6"
Width:
62' 0"
Depth:
Single
Dwelling Number:
Unfinished Square Footage
1084 Sq. Ft.
Garage:
GARAGE
Side
Garage Location:
4
Garage Size:
Exterior Style
Modern
Ranch
Transitional
Collections
Mountain
Open Floor Plan
Outdoor Living
Foundation
Basement
Crawl Space
Slab
Framing Information
2x6
Exterior Wall Framing:
Roof Pitch
10/12
Primary:
8/12
Secondary:
Insulation (R)
House And Ceiling Heights
10
First Floor Ceiling:
25' 4"
Maximum House Height:
Key Features
Attached
Butler's Pantry
Covered Front Porch
Covered Rear Porch
Double Vanity Sink
Family Style
Fireplace
Foyer
Great Room
Home Office
Kitchen Island
Laundry 1st Fl
Library/Media Rm
L-Shaped
Primary Bdrm Main Floor
Mud Room
Open Floor Plan
Outdoor Living Space
Separate Tub and Shower
Side-entry
Storage Space
Suited for corner lot
Unfinished Space
Walk-in Closet

Our Guarantees

  • Only the highest quality plans
  • Int’l Residential Code Compliant
  • Full structural details on all plans
  • Best plan price guarantee
  • Free modification Estimates
  • Builder-ready construction drawings
  • Expert advice from leading designers
  •  PDFs NOW!™ plans in minutes
  • 100% satisfaction guarantee
  • Free Home Building Organizer