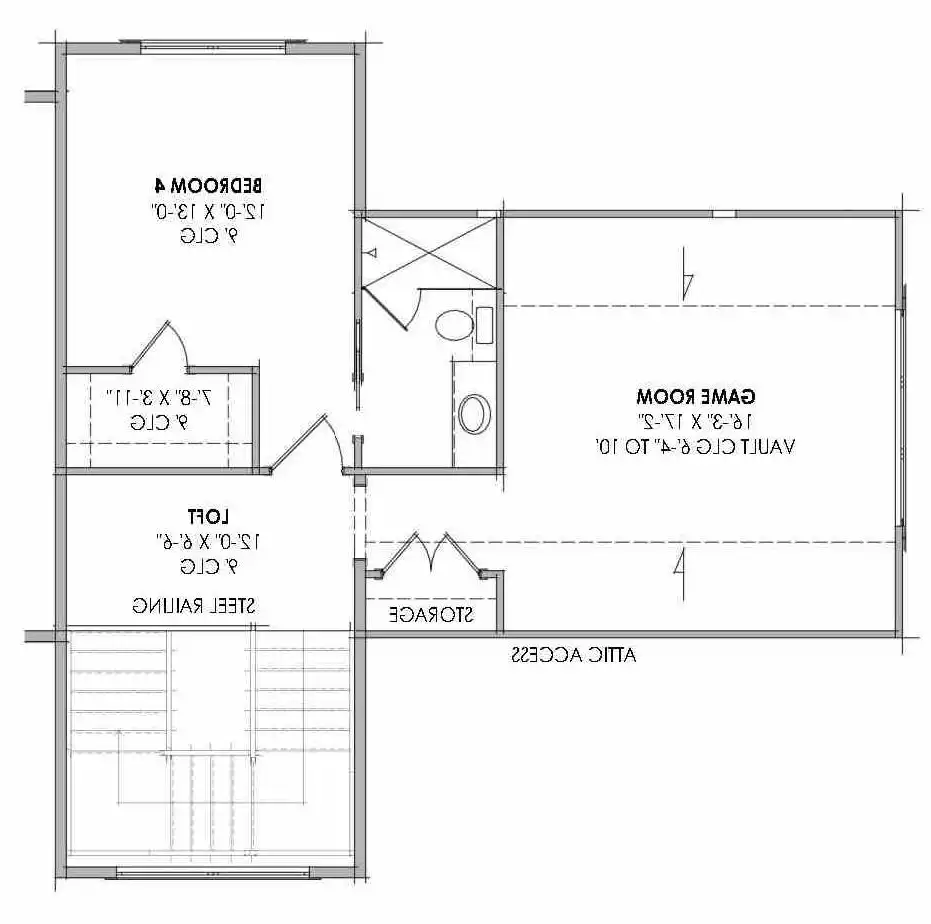
House Plan 12160 delivers a bold Contemporary Hill Country design with nearly 5,000 square feet of living space, four bedrooms, four full bathrooms, one half bath, and a spacious four-car courtyard garage that balances dramatic architecture with everyday livability. The vaulted main living area anchors the open layout, connecting the great room, dining space, and chef-inspired kitchen with built-in breakfast seating, a walk-in pantry, and an adjacent wet bar. A vaulted home office, game or rec room, and flexible loft provide spaces for work, play, and relaxation, while the private main-level primary suite and well-placed secondary bedrooms offer comfort and separation. Generous covered porches wrap the home in outdoor living opportunities, making this plan ideal for scenic settings and year-round entertaining.