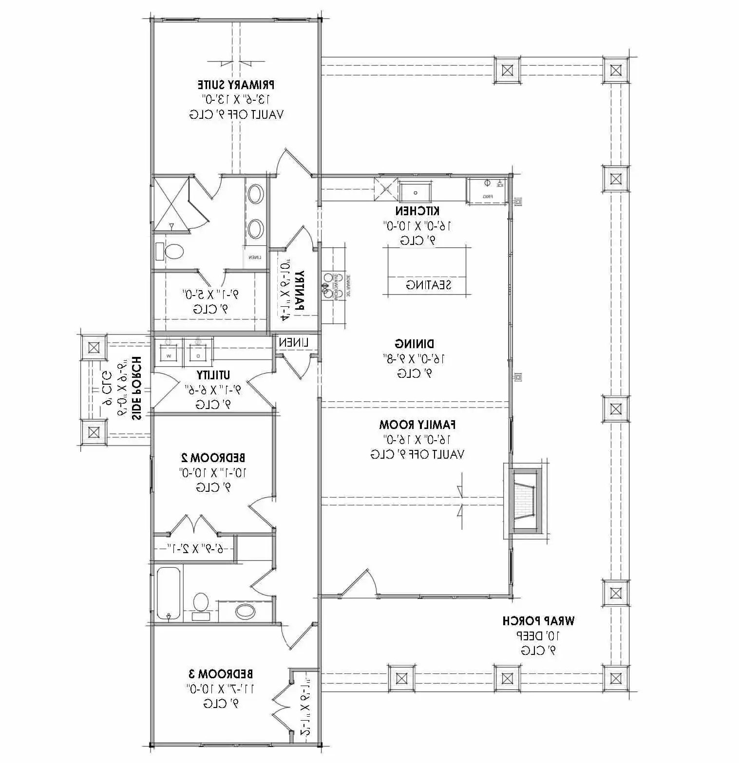
Designed for comfort and charm, this 1512 square feet single story home plan includes 3 bedrooms and 2 baths within a bright, open layout. The vaulted family room connects naturally to the dining area and kitchen, creating a welcoming central hub highlighted by a cozy fireplace. The kitchen’s island and walk-in pantry maximize storage while maintaining an efficient workflow. The main level primary suite offers privacy with a vaulted ceiling, walk-in closet, and dual vanities. Secondary bedrooms are thoughtfully positioned in a split configuration for added separation. A convenient first-floor laundry room enhances everyday functionality. Expansive covered porches, including a wraparound front porch, extend the home outdoors and add inviting curb appeal to this well-balanced design.
Designed for comfort and charm, this 1512 square feet single story home plan includes 3 bedrooms and 2 baths within a bright, open layout. The vaulted family room connects naturally to the dining area and kitchen, creating a welcoming central hub highlighted by a cozy fireplace. The kitchen’s island and walk-in pantry maximize storage while maintaining an efficient workflow. The main level primary suite offers privacy with a vaulted ceiling, walk-in closet, and dual vanities. Secondary bedrooms are thoughtfully positioned in a split configuration for added separation. A convenient first-floor laundry room enhances everyday functionality. Expansive covered porches, including a wraparound front porch, extend the home outdoors and add inviting curb appeal to this well-balanced design.