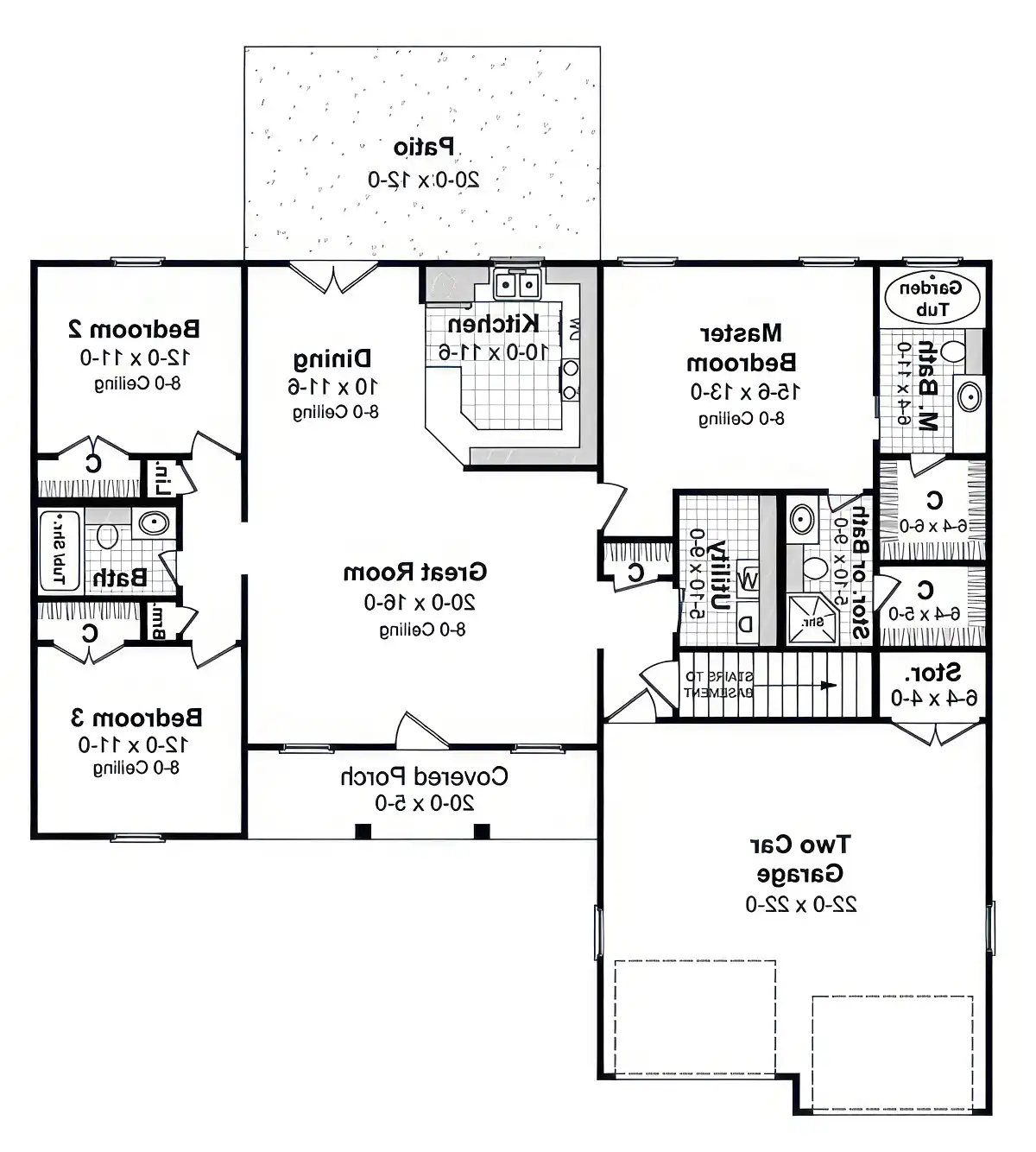
Designed for relaxed living, this home features 1,488 square feet of heated space with a split-bedroom layout that balances privacy and connection. The central living areas open naturally to the dining room and kitchen, making gatherings feel comfortable and effortless. The kitchen’s U-shaped design includes a peninsula eating bar and nearby breakfast nook for everyday meals. A spacious primary suite on the main floor offers a peaceful retreat with dual closets and a well-appointed bath. With added spaces like a nursery room, rec room, and unfinished storage areas, the layout adapts easily to changing needs. Welcoming porch spaces and thoughtful interior planning make this home an inviting place to settle in and enjoy.
Designed for relaxed living, this home features 1,488 square feet of heated space with a split-bedroom layout that balances privacy and connection. The central living areas open naturally to the dining room and kitchen, making gatherings feel comfortable and effortless. The kitchen’s U-shaped design includes a peninsula eating bar and nearby breakfast nook for everyday meals. A spacious primary suite on the main floor offers a peaceful retreat with dual closets and a well-appointed bath. With added spaces like a nursery room, rec room, and unfinished storage areas, the layout adapts easily to changing needs. Welcoming porch spaces and thoughtful interior planning make this home an inviting place to settle in and enjoy.