15% off ALL House Plans Sitewide
15% off ALL House Plans Sitewide

House Plan: DFD-12201

See All 9 Photos > (photographs may reflect modified homes)
© copyright by designer
SQ FT
2,000
BEDS
3
BATHS
2.5
STORIES
1
CARS
2
HOUSE PLANS SALE 
START AT  $1,228.25
For questions and help, live chat, email or call us at 877-895-5299
Floor Plans
Click to Zoom In on Floor Plan
 
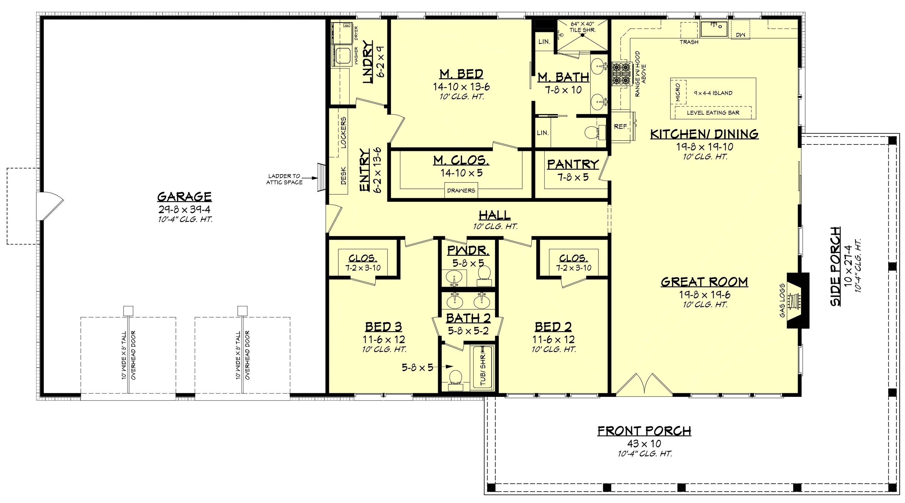
About House Plan 12201:
Designed for connection and comfort, this home provides 2,000 square feet of heated space with 3 bedrooms and 2.5 baths in a family-style layout. The great room anchors the open floor plan, offering a fireplace and easy flow into the kitchen and dining areas. The kitchen features an island, peninsula eating bar, and walk-in pantry, creating a functional space for both daily meals and entertaining. The main-floor primary suite delivers privacy and ease with a walk-in closet and double vanity bath. Practical features like a mud room and first-floor laundry support busy routines without sacrificing style. A covered front porch and wraparound porch extend the living space outdoors, offering plenty of room to unwind or host guests. This inviting home blends open living with timeless comfort, making it a place that truly feels like home.
House Plan Pricing
STEP 1 Select Your Package

5 Printed Sets + PDF


Includes 5 physical printed blueprint sets, shipped free via UPS within the Continental U.S. Printed sets ship within 1 business day and are delivered within 3 – 5 business days. A complimentary PDF plan set is also emailed within 1 business day for easy sharing and local printing. These plans may be used to construct one home.

5 Printed Sets + PDF $1,695
5 Printed Sets + PDF

PDF Single Build


Digital plans emailed to you in PDF format that allows for printing copies and sharing electronically with contractors, subs, decorators, and more. This package includes a license to build the home one time.

PDF Single Build $1,445
Most recommended package

PDF Unlimited Build


Digital plans with an unlimited build license emailed in PDF format, that allows for printing copies on a home printer or local print shop and sharing with contractors, subs, decorators and more 

PDF Unlimited Build $2,145
Digital plans including unlimited build license

CAD + PDF Unlimited Build


This plan package is created in AutoCAD and delivered in .DWG format. CAD files are intended for use by design professionals, structural engineers, and builders to update plans for local building codes or to make revisions based on specific needs, lot requirements, and budget considerations. A complimentary PDF copy is included with this package for reference. CAD packages are delivered within 1 to 2 business days.
 
This package also comes with a multi-use building license, granting permission to construct the home an unlimited number of times, along with a copyright release for making revisions and printing unlimited copies.
 
For details on the specific CAD program used, please refer to the PLAN DETAILS section located above the floor plan on each plan page.

CAD + PDF Unlimited Build $2,545
2D electronic editable computer files
STEP 2 Need To Reverse This Plan?
STEP 3 CHOOSE YOUR FOUNDATION
STEP 4 OPTIONAL ADD-ONS
Subtotal:
$1695
FREE SHIPPING
 
Plan Details
See All Details
Finished Square Footage
2,000 Sq. Ft.
Main Level:
2,000 Sq. Ft.
Total:
Room Details
3
Bedrooms:
2
Full Baths:
1
Half Baths:
General House Information
1
Number of Stories:
90' 0"
Width:
50' 0"
Depth:
Single
Dwelling Number:
Unfinished Square Footage
1200 Sq. Ft.
Garage:
703 Sq. Ft.
Front Porch:
GARAGE
Side
Garage Location:
2
Garage Size:
Exterior Style
Barndominium
Country
Farmhouse
Modern Farmhouse
Traditional
Collections
Open Floor Plan
Outdoor Living
Split Bedroom
Foundation
Basement
Crawl Space
Slab
Walkout Basement
Framing Information
Stick
Roof Framing:
2x4
Exterior Wall Framing:
Roof Pitch
8/12
Primary:
2/12
Secondary:
Insulation (R)
House And Ceiling Heights
10
First Floor Ceiling:
24' 0"
Maximum House Height:
Key Features
Attached
Covered Front Porch
Double Vanity Sink
Family Style
Fireplace
Front-entry
Great Room
Kitchen Island
Laundry 1st Fl
L-Shaped
Primary Bdrm Main Floor
Mud Room
Open Floor Plan
Outdoor Living Space
Peninsula / Eating Bar
Suited for corner lot
Walk-in Closet
Walk-in Pantry
Wraparound Porch

Our Guarantees

  • Only the highest quality plans
  • Int’l Residential Code Compliant
  • Full structural details on all plans
  • Best plan price guarantee
  • Free modification Estimates
  • Builder-ready construction drawings
  • Expert advice from leading designers
  •  PDFs NOW!™ plans in minutes
  • 100% satisfaction guarantee
  • Free Home Building Organizer