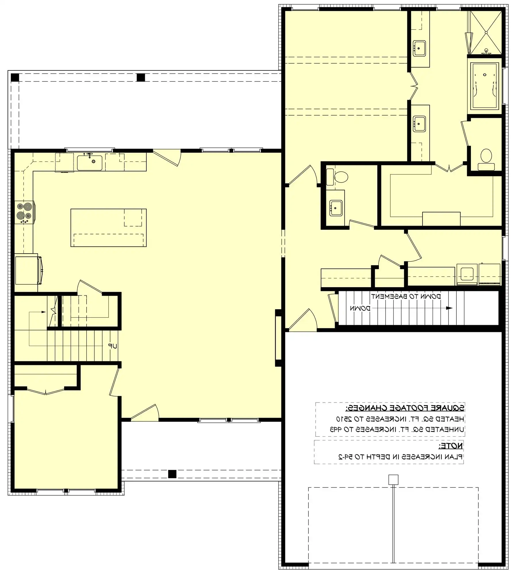
With 2,486 square feet of heated space, this home balances openness and privacy across 5 bedrooms and 2.5 baths. The great room serves as the heart of the home, warmed by a fireplace and open to the dining room for effortless entertaining. A well-appointed kitchen includes a center island, peninsula eating bar, and walk-in pantry designed to support both daily routines and gatherings. The main-floor primary suite offers a peaceful retreat with a spacious walk-in closet and a bath featuring a separate tub and shower. Additional bedrooms are arranged in a split layout to enhance comfort and flexibility. Covered outdoor living areas at both the front and rear of the home create welcoming spaces to enjoy time outside while staying connected to the indoors.
With 2,486 square feet of heated space, this home balances openness and privacy across 5 bedrooms and 2.5 baths. The great room serves as the heart of the home, warmed by a fireplace and open to the dining room for effortless entertaining. A well-appointed kitchen includes a center island, peninsula eating bar, and walk-in pantry designed to support both daily routines and gatherings. The main-floor primary suite offers a peaceful retreat with a spacious walk-in closet and a bath featuring a separate tub and shower. Additional bedrooms are arranged in a split layout to enhance comfort and flexibility. Covered outdoor living areas at both the front and rear of the home create welcoming spaces to enjoy time outside while staying connected to the indoors.