15% off ALL House Plans Sitewide
15% off ALL House Plans Sitewide

House Plan: DFD-12240

See All 11 Photos > (photographs may reflect modified homes)
© copyright by designer
SQ FT
2,250
BEDS
3
BATHS
3.5
STORIES
1.5
CARS
2
HOUSE PLANS SALE 
START AT  $1,228.25
For questions and help, live chat, email or call us at 877-895-5299
Floor Plans
Click to Zoom In on Floor Plan
 
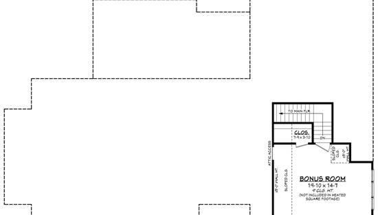
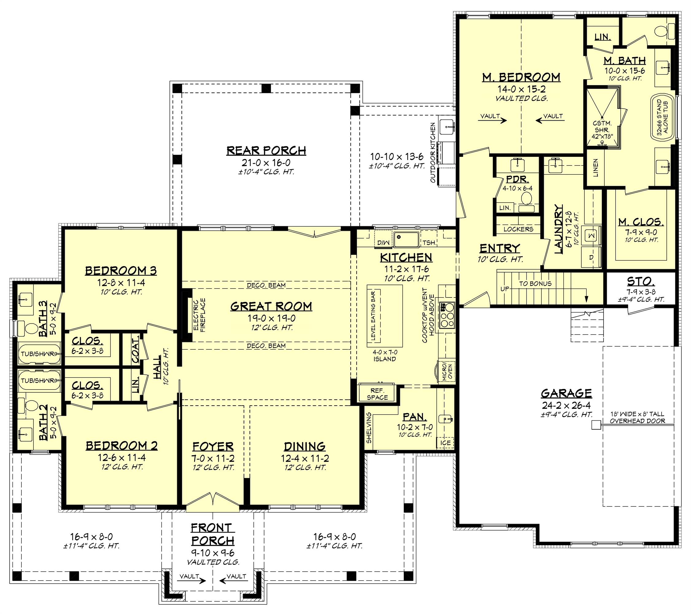
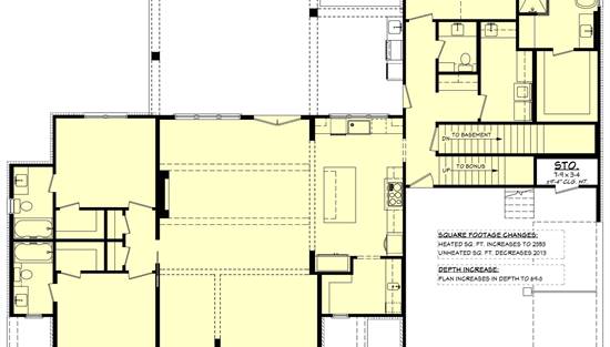
About House Plan 12240:
Designed for relaxed living and easy entertaining, this home features 2,250 square feet of heated space with 3 bedrooms and 3.5 baths. The great room serves as the heart of the home, highlighted by a fireplace and an open connection to the dining room and kitchen. The kitchen includes an island, peninsula eating bar, and butler’s pantry, offering both efficiency and flexibility for gatherings large or small. A main-floor primary suite provides a quiet retreat with a vaulted ceiling, walk-in closet, and a well-appointed bath with double vanities and a separate tub and shower. Additional bedrooms are thoughtfully separated to enhance privacy and comfort. With a bonus room, first-floor laundry, ample storage, and covered outdoor living spaces including an outdoor kitchen, this home is designed to feel welcoming, practical, and ready for everyday life.
House Plan Pricing
STEP 1 Select Your Package

PDF Single Build


Digital plans emailed to you in PDF format that allows for printing copies and sharing electronically with contractors, subs, decorators, and more. This package includes a license to build the home one time.

PDF Single Build $1,445
Most recommended package

5 Printed Sets + PDF


Includes 5 physical printed blueprint sets, shipped free via UPS within the U.S. Printed sets ship within 1 business day and are delivered within 3 – 5 business days. A complimentary PDF plan set is also emailed within 1 business day for easy sharing and local printing. These plans may be used to construct one home.

5 Printed Sets + PDF $1,695
5 Printed Sets + PDF

PDF Unlimited Build


Digital plans with an unlimited build license emailed in PDF format, that allows for printing copies on a home printer or local print shop and sharing with contractors, subs, decorators and more 

PDF Unlimited Build $2,145
Digital plans including unlimited build license

CAD + PDF Unlimited Build


This plan package is created in AutoCAD and delivered in .DWG format. CAD files are intended for use by design professionals, structural engineers, and builders to update plans for local building codes or to make revisions based on specific needs, lot requirements, and budget considerations. A complimentary PDF copy is included with this package for reference. CAD packages are delivered within 1 to 2 business days.
 
This package also comes with a multi-use building license, granting permission to construct the home an unlimited number of times, along with a copyright release for making revisions and printing unlimited copies.
 
For details on the specific CAD program used, please refer to the PLAN DETAILS section located above the floor plan on each plan page.

CAD + PDF Unlimited Build $2,545
2D electronic editable computer files
STEP 2 Need To Reverse This Plan?
STEP 3 CHOOSE YOUR FOUNDATION
STEP 4 OPTIONAL ADD-ONS
Subtotal:
$1445
FREE SHIPPING
 
Plan Details
See All Details
Finished Square Footage
2,250 Sq. Ft.
Main Level:
2,250 Sq. Ft.
Total:
Room Details
3
Bedrooms:
3
Full Baths:
1
Half Baths:
General House Information
1.5
Number of Stories:
74' 10"
Width:
65' 8"
Depth:
Single
Dwelling Number:
1st Floor
Bonus Access:
Unfinished Square Footage
643 Sq. Ft.
Garage:
32 Sq. Ft.
Storage:
933 Sq. Ft.
Porch:
451 Sq. Ft.
Front Porch:
482 Sq. Ft.
Rear Porch:
407 Sq. Ft.
Bonus Room:
GARAGE
Front
Garage Location:
2
Garage Size:
Exterior Style
Country
Farmhouse
Modern Farmhouse
Southern
Transitional
Collections
Open Floor Plan
Outdoor Living
Split Bedroom
Foundation
Basement
Crawl Space
Slab
Walkout Basement
Framing Information
Stick
Roof Framing:
2x4
Exterior Wall Framing:
Roof Pitch
9/12
Primary:
Insulation (R)
House And Ceiling Heights
10
First Floor Ceiling:
27' 0"
Maximum House Height:
Key Features
Attached
Butler's Pantry
Covered Front Porch
Covered Rear Porch
Dining Room
Double Vanity Sink
Fireplace
Foyer
Great Room
Kitchen Island
Laundry 1st Fl
L-Shaped
Primary Bdrm Main Floor
Mud Room
Open Floor Plan
Outdoor Kitchen
Outdoor Living Space
Peninsula / Eating Bar
Separate Tub and Shower
Side-entry
Split Bedrooms
Storage Space
Suited for corner lot
Vaulted Primary
Walk-in Closet

Our Guarantees

  • Only the highest quality plans
  • Int’l Residential Code Compliant
  • Full structural details on all plans
  • Best plan price guarantee
  • Free modification Estimates
  • Builder-ready construction drawings
  • Expert advice from leading designers
  •  PDFs NOW!™ plans in minutes
  • 100% satisfaction guarantee
  • Free Home Building Organizer