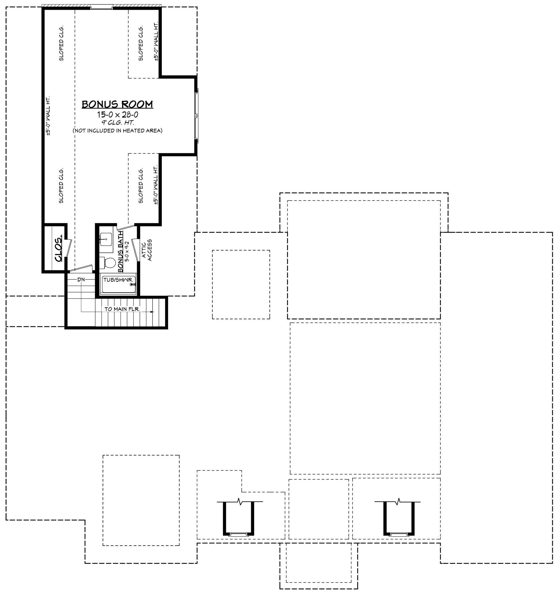
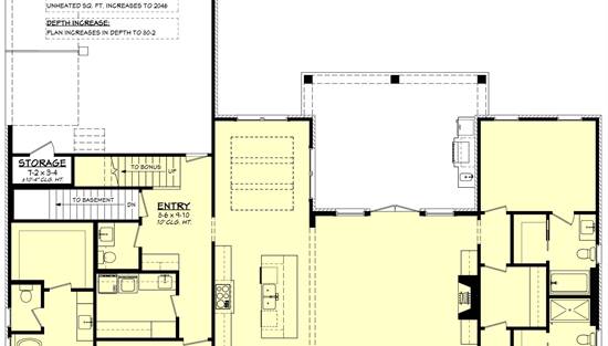
With 2492 square feet of heated space, this home delivers a well-balanced layout featuring 3 bedrooms and 3.5 baths across a carefully planned design. The great room is enhanced by a fireplace and flows naturally into the dining area and kitchen, all highlighted by soaring ceilings that add openness and light. Designed for both function and entertaining, the kitchen includes a large island, peninsula seating, and a generous walk-in pantry. The main-level primary suite offers a private retreat with a spacious walk-in closet and a bath complete with separate tub and shower. Two additional bedrooms are thoughtfully split from the primary suite for added comfort. Everyday conveniences such as a first-floor laundry, mud room, and ample storage support an organized lifestyle. From the expansive covered porches to the outdoor kitchen and flexible bonus space, this home blends comfort and practicality in a warm and inviting way.
With 2492 square feet of heated space, this home delivers a well-balanced layout featuring 3 bedrooms and 3.5 baths across a carefully planned design. The great room is enhanced by a fireplace and flows naturally into the dining area and kitchen, all highlighted by soaring ceilings that add openness and light. Designed for both function and entertaining, the kitchen includes a large island, peninsula seating, and a generous walk-in pantry. The main-level primary suite offers a private retreat with a spacious walk-in closet and a bath complete with separate tub and shower. Two additional bedrooms are thoughtfully split from the primary suite for added comfort. Everyday conveniences such as a first-floor laundry, mud room, and ample storage support an organized lifestyle. From the expansive covered porches to the outdoor kitchen and flexible bonus space, this home blends comfort and practicality in a warm and inviting way.