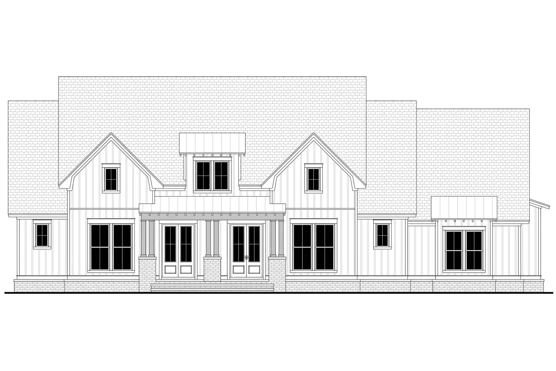
House Plan: DFD-12272

See All 7 Photos > (photographs may reflect modified homes)
© copyright by designer
SQ FT
2,668
BEDS
4
BATHS
3.5
STORIES
1
CARS
2
PLANS FROM $1,495
For questions and help, live chat, email or call us at 877-895-5299
Floor Plans
Click to Zoom In on Floor Plan
 
About House Plan 12272:
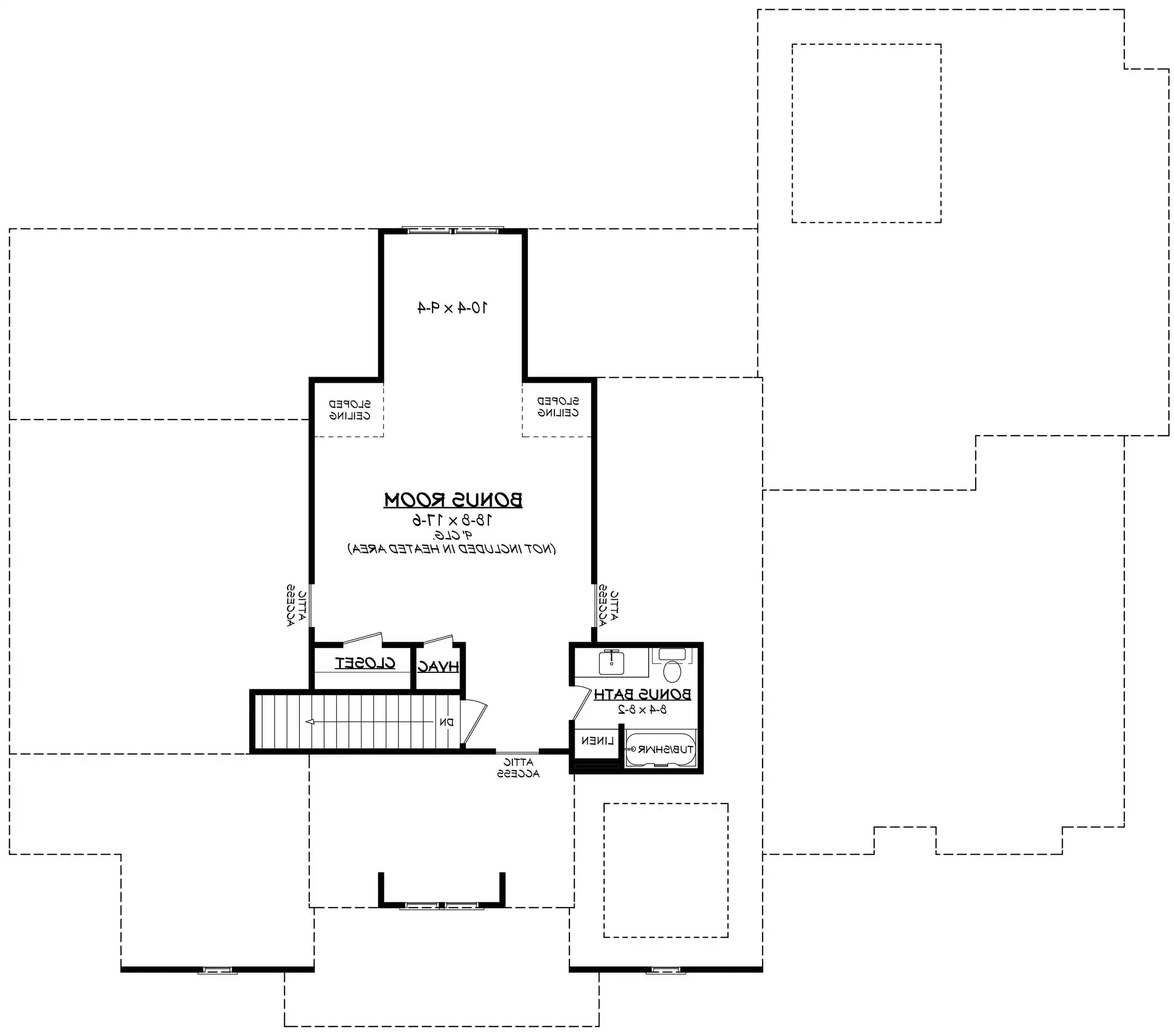
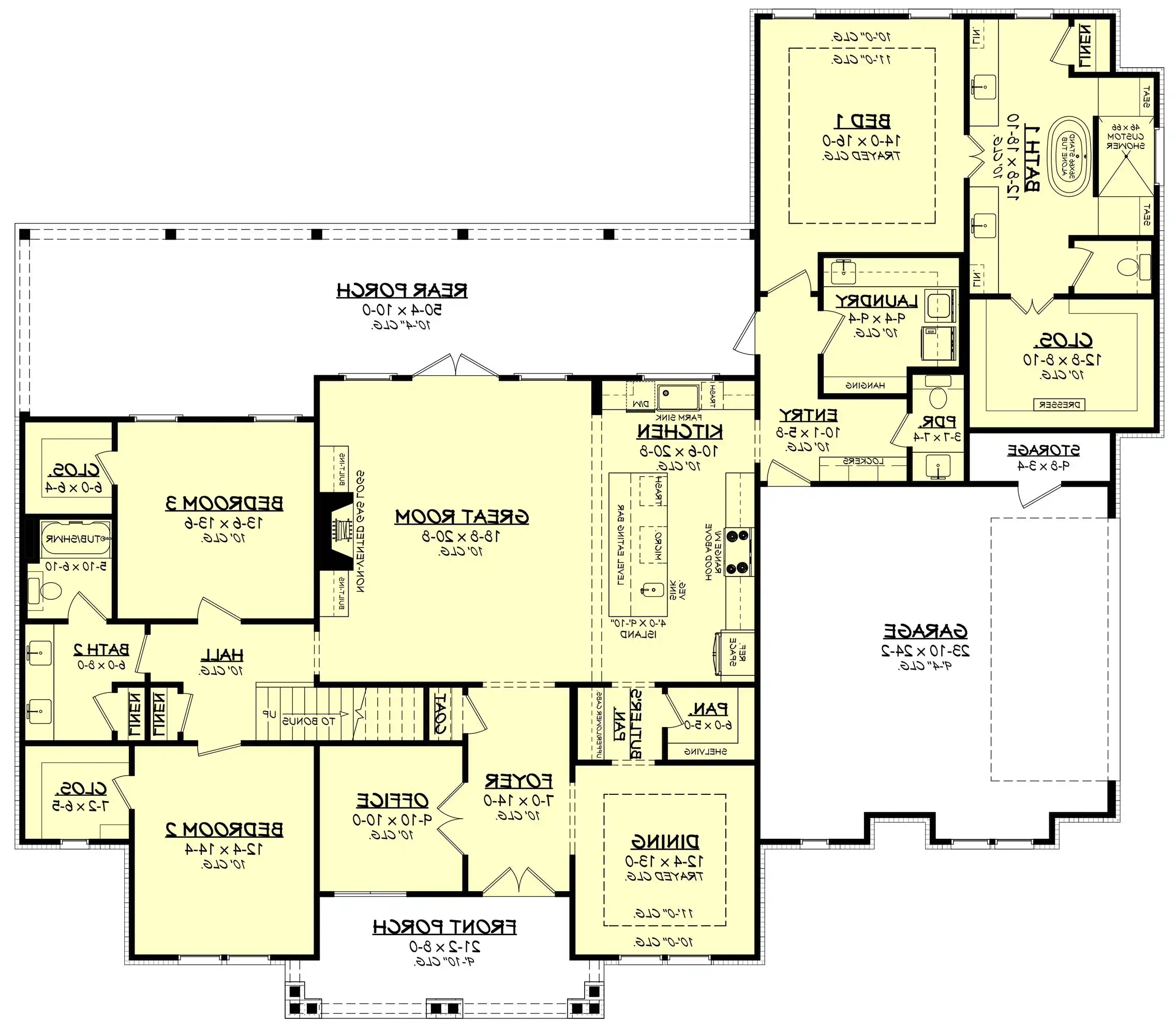
With 2668 square feet of heated space, this 4 bedroom, 3.5 bath home delivers a well-balanced layout across two comfortable levels. The foyer opens into a bright great room with fireplace that flows naturally into the dining area and kitchen. Designed for both entertaining and daily life, the kitchen includes a generous island, peninsula seating, walk-in pantry, and convenient butler’s pantry. The main-level primary suite provides a peaceful retreat with a large walk-in closet and a well-appointed bath featuring separate tub and shower. Additional bedrooms are thoughtfully split to enhance comfort and privacy. Practical features such as a first-floor laundry, mud room, and ample storage make everyday living easier. From the versatile bonus room to the inviting covered porches, this home blends space, warmth, and functionality in a way that truly feels like home.
House Plan Pricing
STEP 1 Select Your Package

PDF Single Build


Digital plans emailed to you in PDF format that allows for printing copies and sharing electronically with contractors, subs, decorators, and more. This package includes a license to build the home one time.

PDF Single Build $1,495
Most recommended package

5 Printed Sets + PDF


Includes 5 physical printed blueprint sets, shipped free via UPS within the U.S. Printed sets ship within 1 business day and are delivered within 3 – 5 business days. A complimentary PDF plan set is also emailed within 1 business day for easy sharing and local printing. These plans may be used to construct one home.

5 Printed Sets + PDF $1,745
5 Printed Sets + PDF

PDF Unlimited Build


Digital plans with an unlimited build license emailed in PDF format, that allows for printing copies on a home printer or local print shop and sharing with contractors, subs, decorators and more 

PDF Unlimited Build $2,195
Digital plans including unlimited build license

CAD + PDF Unlimited Build


This plan package is created in AutoCAD and delivered in .DWG format. CAD files are intended for use by design professionals, structural engineers, and builders to update plans for local building codes or to make revisions based on specific needs, lot requirements, and budget considerations. A complimentary PDF copy is included with this package for reference. CAD packages are delivered within 1 to 2 business days.
 
This package also comes with a multi-use building license, granting permission to construct the home an unlimited number of times, along with a copyright release for making revisions and printing unlimited copies.
 
For details on the specific CAD program used, please refer to the PLAN DETAILS section located above the floor plan on each plan page.

CAD + PDF Unlimited Build $2,595
2D electronic editable computer files
STEP 2 Need To Reverse This Plan?
STEP 3 CHOOSE YOUR FOUNDATION
STEP 4 OPTIONAL ADD-ONS
Subtotal:
$1495
FREE SHIPPING
 
Plan Details
See All Details
Finished Square Footage
2,668 Sq. Ft.
Main Level:
2,668 Sq. Ft.
Total:
Room Details
4
Bedrooms:
3
Full Baths:
1
Half Baths:
General House Information
1
Number of Stories:
78' 0"
Width:
68' 5"
Depth:
Single
Dwelling Number:
2nd Floor
Bonus Access:
Unfinished Square Footage
571 Sq. Ft.
Garage:
37 Sq. Ft.
Storage:
712 Sq. Ft.
Porch:
152 Sq. Ft.
Front Porch:
560 Sq. Ft.
Rear Porch:
615 Sq. Ft.
Bonus Room:
GARAGE
Front
Garage Location:
2
Garage Size:
Exterior Style
Cottage
Country
Farmhouse
Modern Farmhouse
Southern
Traditional
Collections
Kitchens
Primary Suites
Open Floor Plan
Split Bedroom
Foundation
Basement
Crawl Space
Slab
Walkout Basement
Framing Information
Stick
Roof Framing:
2x4
Exterior Wall Framing:
Roof Pitch
9/12
Primary:
12/12
Secondary:
Roof Load
30 psf
Live:
Insulation (R)
House And Ceiling Heights
10
First Floor Ceiling:
9
Second Floor Ceiling:
30' 0"
Maximum House Height:
Key Features
Attached
Bonus Room
Butler's Pantry
Covered Front Porch
Covered Rear Porch
Dining Room
Double Vanity Sink
Fireplace
Foyer
Great Room
Home Office
Kitchen Island
Laundry 1st Fl
L-Shaped
Primary Bdrm Main Floor
Mud Room
Open Floor Plan
Peninsula / Eating Bar
Separate Tub and Shower
Side-entry
Split Bedrooms
Storage Space
Suited for corner lot
Walk-in Closet
Walk-in Pantry

Our Guarantees

  • Only the highest quality plans
  • Int’l Residential Code Compliant
  • Full structural details on all plans
  • Best plan price guarantee
  • Free modification Estimates
  • Builder-ready construction drawings
  • Expert advice from leading designers
  •  PDFs NOW!™ plans in minutes
  • 100% satisfaction guarantee
  • Free Home Building Organizer