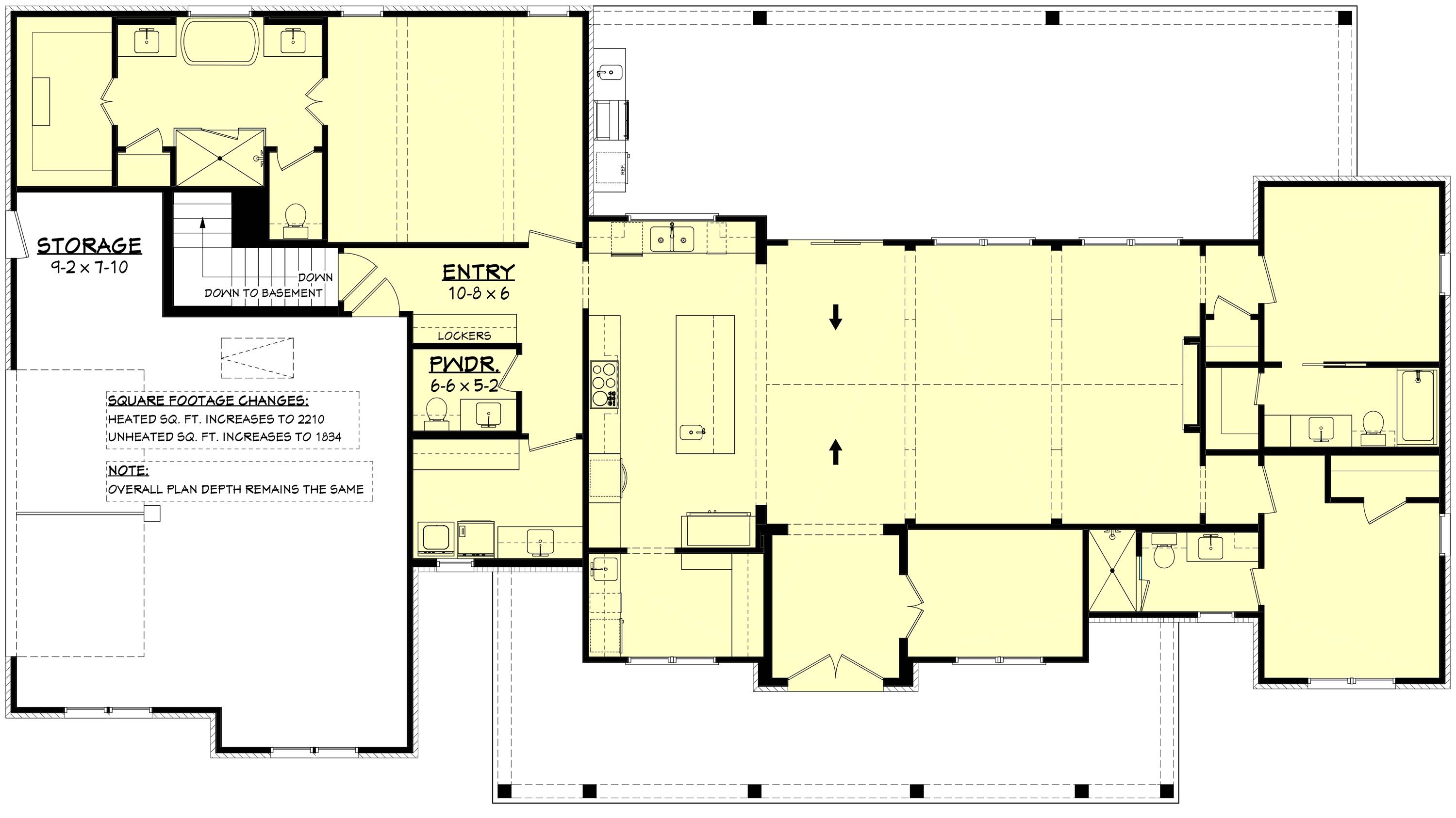
With 2191 square feet of heated space, this 3 bedroom, 3.5 bath home blends open design with thoughtfully defined areas. The foyer welcomes you into a soaring vaulted great room that flows naturally into the dining area and kitchen. Designed for both hosting and everyday life, the kitchen includes an island, peninsula seating, and a butler’s pantry for seamless organization. The primary bedroom is located on the main floor and features a spacious walk-in closet and a well-appointed bath with separate tub and shower. Additional bedrooms are split to offer flexibility and privacy for family or guests. Practical spaces such as a home office, mud room, and first-floor laundry support a smooth daily routine. With generous covered porches and a fully equipped outdoor kitchen, this home offers warmth, functionality, and inviting spaces inside and out.