20% off ALL House Plans Sitewide
20% off ALL House Plans Sitewide

House Plan: DFD-12325

See All 12 Photos > (photographs may reflect modified homes)
© copyright by designer
SQ FT
1,368
BEDS
2
BATHS
2
STORIES
1
CARS
1
HOUSE PLANS SALE 
START AT  $1,036.00
For questions and help, live chat, email or call us at 877-895-5299
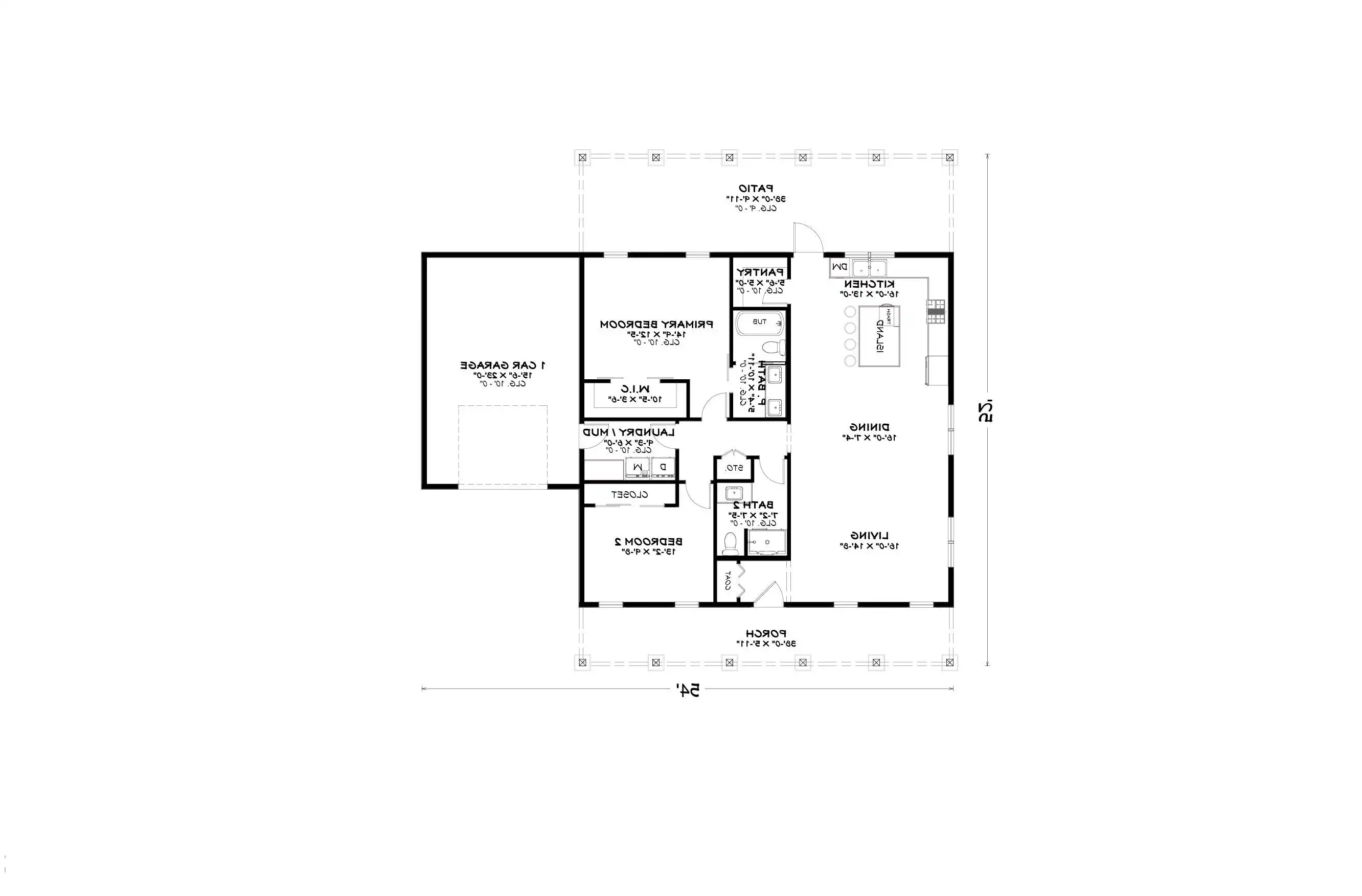
Floor Plans
Click to Zoom In on Floor Plan
 
About House Plan 12325:
Designed for efficiency and comfort, this 1368 square feet single story home plan includes 2 bedrooms and 2 baths arranged within a smart open layout. The great room connects easily to the dining area and L-shaped kitchen, encouraging natural flow and interaction. The kitchen is equipped with a spacious island, peninsula eating bar, and walk-in pantry to support daily routines and entertaining. The main level primary suite offers privacy with a walk-in closet and dual vanity bath. A second bedroom accommodates guests or family with ease. A mud room and first-floor laundry provide everyday convenience, while covered front and rear porches create inviting outdoor spaces. The attached side-positioned garage with front-entry access completes this thoughtfully designed home.
House Plan Pricing
STEP 1 Select Your Package

PDF Single Build


Digital plans emailed to you in PDF format that allows for printing copies and sharing electronically with contractors, subs, decorators, and more. This package includes a license to build the home one time.

PDF Single Build $1,295
Most recommended package

PDF + 5 Sets


Five Printed Sets of Residential Construction Drawings that are typically 24” x 36” documents and come with a license to construct a single residence shipped to a physical address. Most jurisdictions require up to four copies of your house plans when applying for a building permit. Also includes a PDF Plan Package, are our most popular choice which allows you to print as many copies as you need and to electronically send files to your builder, subcontractors, bank/mortgage reps, material stores, decorators, and more.
PDF + 5 Sets $1,545
A five set package

PDF Unlimited Build


Digital plans with an unlimited build license emailed in PDF format, that allows for printing copies on a home printer or local print shop and sharing with contractors, subs, decorators and more 

PDF Unlimited Build $1,895
Digital plans including unlimited build license

CAD + PDF Unlimited Build


This plan package is created in AutoCAD and delivered in .DWG format. CAD files are intended for use by design professionals, structural engineers, and builders to update plans for local building codes or to make revisions based on specific needs, lot requirements, and budget considerations. A complimentary PDF copy is included with this package for reference. CAD packages are delivered within 1 to 2 business days.
 
This package also comes with a multi-use building license, granting permission to construct the home an unlimited number of times, along with a copyright release for making revisions and printing unlimited copies.
 
For details on the specific CAD program used, please refer to the PLAN DETAILS section located above the floor plan on each plan page.

CAD + PDF Unlimited Build $2,295
2D electronic editable computer files
STEP 2 Need To Reverse This Plan?
STEP 3 CHOOSE YOUR FOUNDATION
STEP 4 OPTIONAL ADD-ONS
Subtotal:
$1295
FREE SHIPPING
 
Plan Details
See All Details
Finished Square Footage
1,368 Sq. Ft.
Main Level:
1,368 Sq. Ft.
Total:
Room Details
2
Bedrooms:
2
Full Baths:
General House Information
1
Number of Stories:
54' 0"
Width:
52' 0"
Depth:
Single
Dwelling Number:
Unfinished Square Footage
381 Sq. Ft.
Garage:
228 Sq. Ft.
Porch:
383 Sq. Ft.
Patio:
GARAGE
Side
Garage Location:
1
Garage Size:
Exterior Style
Contemporary
Modern
Ranch
Collections
First Home
Kitchens
Primary Suites
Open Floor Plan
Outdoor Living
Foundation
Basement
Crawl Space
Slab (Free)
Framing Information
Truss
Roof Framing:
2x6
Exterior Wall Framing:
Roof Pitch
2/12
Primary:
Insulation (R)
House And Ceiling Heights
10
First Floor Ceiling:
16' 9"
Maximum House Height:
Key Features
Attached
Covered Front Porch
Covered Rear Porch
Double Vanity Sink
Family Style
Front-entry
Kitchen Island
Laundry 1st Fl
L-Shaped
Primary Bdrm Main Floor
Mud Room
Open Floor Plan
Outdoor Living Space
Peninsula / Eating Bar
Suited for corner lot
Walk-in Closet
Walk-in Pantry

Our Guarantees

  • Only the highest quality plans
  • Int’l Residential Code Compliant
  • Full structural details on all plans
  • Best plan price guarantee
  • Free modification Estimates
  • Builder-ready construction drawings
  • Expert advice from leading designers
  •  PDFs NOW!™ plans in minutes
  • 100% satisfaction guarantee
  • Free Home Building Organizer